
Treen Road, Astley, M29

- PROPERTY TYPE
Detached
- BEDROOMS
4
- BATHROOMS
4
- SIZE
Ask agent
- TENUREDescribes how you own a property. There are different types of tenure - freehold, leasehold, and commonhold.Read more about tenure in our glossary page.
Freehold
Key features
- Beautifully Extended & Renovated Home
- Prestigious Astley Location Backing Onto Woodland
- Five Bedrooms & Three Bathrooms
- Immaculate Open Plan Kitchen/Dining/Living Space
- Swim Spa & Hot Tub With Air Source Heat Pumps
- Large Rear & Side Gardens
- Block Paved & Gravel Entertaining Areas
- Insulated Log Cabin
- Extensive Parking-Two Driveways, Carport & Garage
- Book Viewings Online 24/7
Description
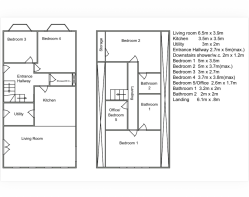
This beautifully extended five bedroom home is located in one of Astley’s most desirable areas and must be viewed to be truly appreciated. Five bedrooms, three bathrooms, generous open plan living and an exceptional garden, the property is presented in immaculate condition throughout. A standout feature is the impressive outdoor space, with a pergola housing a swim spa and hot tub, as well as a large log cabin used as a gym.
With a spacious entrance hall filled with natural light and a galleried landing. 2 ground floor bedrooms 1 double with fitted wardrobes,1 single and a family bathroom. The open plan kitchen, dining and living area enjoys views over the large rear garden backing onto woodland for complete privacy.
The kitchen has white gloss and blue glass cabinetry, oak worktops, built in appliances (oven, microwave, coffee machine, 6 burner hob and sink) with a lowered breakfast bar flowing into the dining and lounge area, with French doors opening onto the garden.
A utility room, fitted with matching cabinetry, offers space for a washing machine, dryer, dishwasher and fridge freezer, along with a double ceramic sink and boiler with door to garden.
The galleried landing leads to 3 further bedrooms. The master suite features a picture window overlooking the garden and Velux window with a luxurious ensuite with freestanding bath, separate shower, WC and sink. A second spacious double bedroom with 2 Velux windows, ensuite with shower ,WC and sink. A further bedroom currently used as a walk in wardrobe.
Parking for up to 6 cars with 2 driveways, a double carport and single garage.
To the rear is a larger than average garden. To the side is a patio with a metal pergola, windproof blinds/privacy panels, with swim spa and hot tub both fitted with air source heat pumps.
There is a lawned garden with borders, fruit trees and a pathway leading to a 3m high wall that has a log cabin used as a gym or office space and 2 sheds. The property is not overlooked at the rear.
Property Description Disclaimer
This is a general description of the property only, and is not intended to constitute part of an offer or contract. It has been verified by the seller(s), unless marked as 'draft'. Purplebricks conducts some valuations online and some of our customers prepare their own property descriptions, so if you decide to proceed with a viewing or an offer, please note this information may have been provided solely by the vendor, and we may not have been able to visit the property to confirm it. If you require clarification on any point then please contact us, especially if you’re traveling some distance to view. All information should be checked by your solicitor prior to exchange of contracts.
Successful buyers will be required to complete anti-money laundering and proof of funds checks. Our partner, Lifetime Legal Limited, will carry out the initial checks on our behalf. The current non-refundable cost is £80 inc. VAT per offer. You’ll need to pay this to Lifetime Legal and complete all checks before we can issue a memorandum of sale. The cost includes obtaining relevant data and any manual checks and monitoring which might be required, and includes a range of benefits. Purplebricks will receive some of the fee taken by Lifetime Legal to compensate for its role in providing these checks.
Brochures
Brochure- COUNCIL TAXA payment made to your local authority in order to pay for local services like schools, libraries, and refuse collection. The amount you pay depends on the value of the property.Read more about council Tax in our glossary page.
- Band: D
- PARKINGDetails of how and where vehicles can be parked, and any associated costs.Read more about parking in our glossary page.
- Garage,Driveway
- GARDENA property has access to an outdoor space, which could be private or shared.
- Private garden
- ACCESSIBILITYHow a property has been adapted to meet the needs of vulnerable or disabled individuals.Read more about accessibility in our glossary page.
- Ask agent
Treen Road, Astley, M29
Add an important place to see how long it'd take to get there from our property listings.
__mins driving to your place
Get an instant, personalised result:
- Show sellers you’re serious
- Secure viewings faster with agents
- No impact on your credit score
Affordability
Notes
Staying secure when looking for property
Ensure you're up to date with our latest advice on how to avoid fraud or scams when looking for property online.
Visit our security centre to find out moreDisclaimer - Property reference 2066376-1. The information displayed about this property comprises a property advertisement. Rightmove.co.uk makes no warranty as to the accuracy or completeness of the advertisement or any linked or associated information, and Rightmove has no control over the content. This property advertisement does not constitute property particulars. The information is provided and maintained by Purplebricks, covering Manchester. Please contact the selling agent or developer directly to obtain any information which may be available under the terms of The Energy Performance of Buildings (Certificates and Inspections) (England and Wales) Regulations 2007 or the Home Report if in relation to a residential property in Scotland.
*This is the average speed from the provider with the fastest broadband package available at this postcode. The average speed displayed is based on the download speeds of at least 50% of customers at peak time (8pm to 10pm). Fibre/cable services at the postcode are subject to availability and may differ between properties within a postcode. Speeds can be affected by a range of technical and environmental factors. The speed at the property may be lower than that listed above. You can check the estimated speed and confirm availability to a property prior to purchasing on the broadband provider's website. Providers may increase charges. The information is provided and maintained by Decision Technologies Limited. **This is indicative only and based on a 2-person household with multiple devices and simultaneous usage. Broadband performance is affected by multiple factors including number of occupants and devices, simultaneous usage, router range etc. For more information speak to your broadband provider.
Map data ©OpenStreetMap contributors.





