Checketts Lane, Worcester, Worcestershire.

- PROPERTY TYPE
End of Terrace
- BEDROOMS
2
- BATHROOMS
1
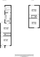
- SIZE
743 sq ft
69 sq m
- TENUREDescribes how you own a property. There are different types of tenure - freehold, leasehold, and commonhold.Read more about tenure in our glossary page.
Freehold
Key features
- Located in a sought-after pocket of North Worcester (WR3), popular for its convenience and strong local amenities.
- End of terrace position offering additional privacy and side access potential compared to mid-terrace homes.
- Welcoming porch leading into a well-proportioned living room, creating a comfortable first impression.
- Separate dining room with French doors opening onto the courtyard, ideal for entertaining and everyday living.
- Two generous double bedrooms, with built-in storage to bedroom two.
- Ground floor bathroom adding practicality and ease of use.
- Courtyard garden leading through to a further lawned garden with patio area, offering versatile outdoor space.
- Excellent access to Worcester city centre, local schools, parks and transport links, making it ideal for a range of buyers.
- Council Tax Band - B.
- EPC Rating - D.
Description
The property is entered via a useful porch, leading into a comfortable living room which flows through to a separate dining room, creating a well-balanced and sociable ground floor layout. From the dining area, French doors open onto a private courtyard, providing an excellent space for indoor-outdoor living during the warmer months.
The kitchen is positioned to the rear and offers a range of fitted units with ample worktop space, while the ground floor is further complemented by a bathroom, adding to the overall practicality of the home.
Upstairs, there are two well-proportioned double bedrooms, with bedroom two benefitting from built-in storage.
Externally, the property enjoys a courtyard garden which leads through to a further garden area, mainly laid to lawn with a patio seating space — ideal for relaxing or entertaining.
The WR3 postcode is highly regarded for its excellent access into Worcester city centre, a range of nearby amenities including shops, schools and parks, as well as strong transport links, making it a consistently popular choice for buyers seeking both convenience and community.
- COUNCIL TAXA payment made to your local authority in order to pay for local services like schools, libraries, and refuse collection. The amount you pay depends on the value of the property.Read more about council Tax in our glossary page.
- Band: B
- PARKINGDetails of how and where vehicles can be parked, and any associated costs.Read more about parking in our glossary page.
- On street
- GARDENA property has access to an outdoor space, which could be private or shared.
- Back garden
- ACCESSIBILITYHow a property has been adapted to meet the needs of vulnerable or disabled individuals.Read more about accessibility in our glossary page.
- Ask agent
Checketts Lane, Worcester, Worcestershire.
Add an important place to see how long it'd take to get there from our property listings.
__mins driving to your place
Get an instant, personalised result:
- Show sellers you’re serious
- Secure viewings faster with agents
- No impact on your credit score
About WR Estate Agents, Worcestershire
Oak House Everoak Industrial Estate Oak House Workspace Worcester WR2 5HP

Affordability
Notes
Staying secure when looking for property
Ensure you're up to date with our latest advice on how to avoid fraud or scams when looking for property online.
Visit our security centre to find out moreDisclaimer - Property reference WWO-83597564. The information displayed about this property comprises a property advertisement. Rightmove.co.uk makes no warranty as to the accuracy or completeness of the advertisement or any linked or associated information, and Rightmove has no control over the content. This property advertisement does not constitute property particulars. The information is provided and maintained by WR Estate Agents, Worcestershire. Please contact the selling agent or developer directly to obtain any information which may be available under the terms of The Energy Performance of Buildings (Certificates and Inspections) (England and Wales) Regulations 2007 or the Home Report if in relation to a residential property in Scotland.
*This is the average speed from the provider with the fastest broadband package available at this postcode. The average speed displayed is based on the download speeds of at least 50% of customers at peak time (8pm to 10pm). Fibre/cable services at the postcode are subject to availability and may differ between properties within a postcode. Speeds can be affected by a range of technical and environmental factors. The speed at the property may be lower than that listed above. You can check the estimated speed and confirm availability to a property prior to purchasing on the broadband provider's website. Providers may increase charges. The information is provided and maintained by Decision Technologies Limited. **This is indicative only and based on a 2-person household with multiple devices and simultaneous usage. Broadband performance is affected by multiple factors including number of occupants and devices, simultaneous usage, router range etc. For more information speak to your broadband provider.
Map data ©OpenStreetMap contributors.




