
The Drive, HOVE, BN3

- PROPERTY TYPE
Flat
- BEDROOMS
2
- BATHROOMS
1
- SIZE
935 sq ft
87 sq m
Key features
- 2 Bedrooms
- 1 Bathroom
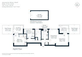
- Sitting Room
- Dining Room
- Kitchen
- Two Sun Rooms
- Two Roof Terraces
- Garage
- Total of approx. 935sq ft. Sea views
- Live-in Caretaker
Description
The main reception room is cleverly delineated into semi-separate dining and sitting areas, which combine to create a sociable, dual aspect sitting and living space, perfect for enjoying the splendid outlook or for socialising together with family and friends. At the southern end, French doors invite you into a wonderful sun room, offering further reception space, with wrap-around floor-ceiling windows and doors out to the generous southerly sun terrace. A fantastically well-appointed, fully fitted kitchen with sleek handle-less cabinets housing an array of appliances including dishwasher, wine fridge and washing machine, along with a microwave, oven and hob.
Along the hallway are both bedrooms, each with fabulous high-end fitted wardrobes and bookshelves, with the marvellous principal bedroom boasting a further sun room with access onto a second sun terrace with far reaching views. Both bedrooms share a glorious, deluxe bathroom with contemporary suite comprising floating basin and L-shaped bath with overhead waterfall shower.
* Unfortunately No Pets.
Outside
The colourful murals of the building’s facade instantly add plenty of character to its mid-century design, while steps lead up to a beautifully maintained lobby that has a secure video-entry system. Residents of Bowen Court benefit from two lifts and a live in caretaker. This particular apartment also has the added bonus of a private garage.
Occupying either end and one full side of this fabulous home, are a duo of private roof terraces to the north and south, offering breath-taking vistas that sweep across the cityscape and down to the sea. Each of these enviable outdoor spaces are the ideal spot to recline in the sun or catch up with friends over dinner and drinks.
Situation
Bowen Court is in a fantastically central location, with the high street, Hove Lawns and the beach just at the end of the road to the south. Church Road and its continuation, Western Road, offer an array of boutique shops, cafés, bars and restaurants and central Brighton, with its more extensive shopping and Churchill Square, are easily accessible. Hove Station is 0.6 miles and Brighton Station is 1.5 miles away, both with fast direct trains to London and Gatwick.
Property Ref Number:
HAM-38310Additional Information
Brighton & Hove City Council, Council Tax Band: E
Flat Lease Term: 999 years from 24 June 1961, Lease expires 2960.
Garage Lease Term: 999 years from 24 June 1961
Annual service charges £5,520
Annual ground rent £45.00 Flat
Annual ground rent £3.00
Brochures
Brochure- COUNCIL TAXA payment made to your local authority in order to pay for local services like schools, libraries, and refuse collection. The amount you pay depends on the value of the property.Read more about council Tax in our glossary page.
- Band: E
- PARKINGDetails of how and where vehicles can be parked, and any associated costs.Read more about parking in our glossary page.
- Garage
- GARDENA property has access to an outdoor space, which could be private or shared.
- Terrace
- ACCESSIBILITYHow a property has been adapted to meet the needs of vulnerable or disabled individuals.Read more about accessibility in our glossary page.
- Ask agent
The Drive, HOVE, BN3
Add an important place to see how long it'd take to get there from our property listings.
__mins driving to your place
Get an instant, personalised result:
- Show sellers you’re serious
- Secure viewings faster with agents
- No impact on your credit score
Affordability
Notes
Staying secure when looking for property
Ensure you're up to date with our latest advice on how to avoid fraud or scams when looking for property online.
Visit our security centre to find out moreDisclaimer - Property reference a1n8d000000i6D1AAI. The information displayed about this property comprises a property advertisement. Rightmove.co.uk makes no warranty as to the accuracy or completeness of the advertisement or any linked or associated information, and Rightmove has no control over the content. This property advertisement does not constitute property particulars. The information is provided and maintained by Hamptons, Brighton & Hove. Please contact the selling agent or developer directly to obtain any information which may be available under the terms of The Energy Performance of Buildings (Certificates and Inspections) (England and Wales) Regulations 2007 or the Home Report if in relation to a residential property in Scotland.
*This is the average speed from the provider with the fastest broadband package available at this postcode. The average speed displayed is based on the download speeds of at least 50% of customers at peak time (8pm to 10pm). Fibre/cable services at the postcode are subject to availability and may differ between properties within a postcode. Speeds can be affected by a range of technical and environmental factors. The speed at the property may be lower than that listed above. You can check the estimated speed and confirm availability to a property prior to purchasing on the broadband provider's website. Providers may increase charges. The information is provided and maintained by Decision Technologies Limited. **This is indicative only and based on a 2-person household with multiple devices and simultaneous usage. Broadband performance is affected by multiple factors including number of occupants and devices, simultaneous usage, router range etc. For more information speak to your broadband provider.
Map data ©OpenStreetMap contributors.








