Skip to content

Longmoor Road, Greatham, Liss, Hampshire, GU33

£375,000
Kingswood Property & Financial Services, Bordon
PROPERTY TYPE

Plot

BEDROOMS

3

BATHROOMS

2

SIZE

Ask agent

Description

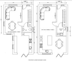
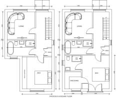
An unique opportunity to acquire two individual building plots with planning permission in the sought-after village of Greatham, located within the South Downs National Park.

Each plot benefits from planning consent for the construction of a private residential dwelling, offering an ideal prospect for self-builders, developers, or investors.

Greatham is a highly desirable rural village with excellent access to nearby towns such as Petersfield and Liphook, while also providing convenient links to the A3 for London and the South Coast. Within the village is a local pub, church, primary school and nearby in the village of Liss is main line rail link to London Waterloo.

For further details in relation to the plots and the planning permission that has been granted please contact our office. 

We have been advised by the owner that the plots can be purchased individually or as a pair for £700,000.00

Longmoor Road, Greatham, Liss, Hampshire, GU33

Approximate location

NEAREST STATIONS

Distances are straight line measurements from the centre of the postcode
  • Liss Station2.1 miles
  • Liphook Station3.6 miles

About Kingswood Property & Financial Services, Bordon

4 Chalet Hill, Bordon, GU35 0TQ
Industry affiliations:Industry affiliation logo 0Industry affiliation logo 1Industry affiliation logo 2

Kingswood Property & Financial Services are a family-run estate agency, specialising in the local areas of Bordon, Whitehill, Lindford and surrounding villages. At the our core of our business is traditional estate agency, with the individual personal touch and the expanding combination of current marketing trends and materials.

We are the only local estate agent that offers a totally independent service on Sales, Lettings, Mortgage Advice and Financial Services under one roof.

As agents we appreciate that buying, selling or renting a property is one of the biggest decision's that is made and every seller or purchaser, landlord or tenant has individual requirements and needs that we believe are best served with our understanding, enthusiastic and friendly approach.

With over 80 years combined local experience and our established reputation within the local community we are able to provide a personal service tailor made to suit each individual client. With the most prominent estate agent office in Bordon we can be found easily and it's also where our local staff will be on hand to offer their exceptional knowledge of the local property market, local area and local amenities.

PROPERTY SALES

Our sales department are dedicated to providing a service that makes moving as smooth and stress free as possible for both sellers and purchasers.

Buying and selling a property is a significant step for anybody, whether it be for the first time or the tenth time it usually involves a persons biggest financial asset. The question is often asked, how do you choose between different estate agents ? Selecting an estate agent can be a confusing and daunting task, especially with so many to choose from and the fact that choosing the right estate agent is normally critical to the successful purchase and sale of a property.

Members of the Kingswood team will always work with you to understand your needs and objectives before offering any advice. With a reputation for honesty and a friendly approach, we pride ourselves on actively listening, building relationships and encourage all our clients to ' ask questions ' if unsure on anything, we do not want anybody not to ask something because they think it is a ' silly ' question, that's what we and our years of experience are here for. All advice is free and without obligation.

If selling a property with a carefully managed marketing programme we can guarantee all of the properties we market are advertised to the highest standard with colour pictures and Floorplans and we are placed in more areas than by any other local agent.

If buying our aim is to transform any stress that may come into making the purchase of your property an exciting and memorable experience.

LETTINGS AND PROPERTY MANAGEMENT

Our lettings department prides itself on the reputation and praise received from existing and past clients.

As the most experienced agent in the local area Kingswood are expertly placed to help and our aim is to take the stress and worries away from landlords and tenants. Our branch is staffed by local people so you can be sure of receiving the best local knowledge and service.

We provide the highest standard in property management to all landlords with very strict tenant selection and credit scoring.

Our lettings staff are always on hand to offer friendly help and advice at every stage of the tenancy for both landlords and tenants

As an independent company we set our own standards in conjunction with working with many of the industries trade bodies ' codes of conduct ' to provide all our clients re assurance.

MORTGAGE ADVICE AND FINANCIAL SERVICES

When it comes to obtaining advice on any aspect of mortgage or financial advice we feel the key words are ' Free ' and ' Independent '.

We can offer unbiased advice as we are not owned or controlled by any of the banks or building societies - ensuring that we find the right product for each client and that the mortgage will suit your requirements.

All mortgage enquires and related financial services enquiries are researched through our computerised system which is update daily. We have access to hundreds of mortgage products, including all the high street Banks and Building Societies. By offering free advice we can offer you the best independent advise at save you time by taking the leg work out of finding the most suitable mortgage.

Notes

These notes are private, only you can see them.

Disclaimer - Property reference 10754070. The information displayed about this property comprises a property advertisement. Rightmove.co.uk makes no warranty as to the accuracy or completeness of the advertisement or any linked or associated information, and Rightmove has no control over the content. This property advertisement does not constitute property particulars. The information is provided and maintained by Kingswood Property & Financial Services, Bordon. Please contact the selling agent or developer directly to obtain any information which may be available under the terms of The Energy Performance of Buildings (Certificates and Inspections) (England and Wales) Regulations 2007 or the Home Report if in relation to a residential property in Scotland.

Map data ©OpenStreetMap contributors.