
Langton Close, Selsey, PO20

- PROPERTY TYPE
Detached Bungalow
- BEDROOMS
3
- BATHROOMS
1
- SIZE
1,185 sq ft
110 sq m
- TENUREDescribes how you own a property. There are different types of tenure - freehold, leasehold, and commonhold.Read more about tenure in our glossary page.
Freehold
Key features
- Detached bungalow on corner plot
- Three bedrooms
- L-shaped living/dining room
- Two conservatories ( one used as utility space )
- Modern and well presented throughout
- Wet Room
- Corner plot with wrap around gardens
- Close proximity to high street amenities
- Gated double driveway
- Larger than average garage with electric door
Description
This impressive detached bungalow occupies a desirable corner plot, offering both privacy and convenience within close proximity to high street amenities. The property is thoughtfully arranged and presented to a good standard throughout, featuring three bedrooms and a modern wet room. The heart of the home is an inviting L-shaped living and dining room, providing a versatile space for relaxation and entertaining. Two conservatories enhance the living accommodation, one of which is currently utilised as a practical utility area being located off the kitchen. The interior is tastefully decorated, blending modern finishes with a comfortable and welcoming atmosphere. Designed for ease of living, this bungalow is ideal for those seeking a single-level home with ample space, ease access by way of ramped access to the front door, flexibility and effortless access to local shops, cafes and services.
The bungalow’s outside space is a true highlight, with wrap-around gardens extending to three sides of the property. The front and main gardens are predominantly laid to lawn, with established flower and shrub borders. To the rear, the garden has been attractively landscaped with block paving for minimal maintenance, complemented by additional flower borders. A gated, block-paved driveway offers secure off-road parking for two vehicles and leads directly to a larger-than-average garage, which is equipped with an electric roller door, lighting and power. The garage also benefits from a personal door opening onto the rear, providing convenient access for gardening or storage needs. This superb outdoor space ensures the perfect balance of practicality, privacy and year-round enjoyment.
EPC Rating: D
Entrance Hall
Benefiting from a ramped entrance allowing for easy access with a wheelchair if required, a doubled glazed front door opens to the hallway with doors to all principal rooms.
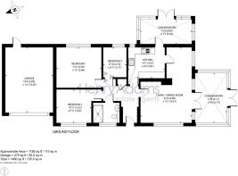
Living/Dining Room (4.61m x 6.8m)
L-shaped, max measurements. Doorway to the kitchen and doorway into the conservatory. Living Area - 4.61 x 3.84 Dining Area - 2.81 x 2.61
Main conservatory (2.73m x 4.17m)
Kitchen (2.81m x 3.07m)
Opening to the 2nd conservatory/utility space.
2nd conservatory/utility space (2.22m x 4.65m)
Bedroom One (3.66m x 4.09m)
Bedroom Two (currently used as a sitting room) (3.02m x 3.32m)
excluding the doorway.
Bedroom Three (2.11m x 2.7m)
Wet Room
Fully tiled walls, wall mounted shower, w/c and wash hand basin
Garden
Wrapping around 3 sides of the home with areas of lawn, flower & shrub borders. To the rear of the bungalow the gardens are laid to block paving for ease of upkeep along with flower borders.
Parking - Driveway
Gated block paved driveway providing off road parking for 2 cars & leads to:
Parking - Garage
Larger than average garage with electric roller door, light & power, personal door to the rear section of garden
- COUNCIL TAXA payment made to your local authority in order to pay for local services like schools, libraries, and refuse collection. The amount you pay depends on the value of the property.Read more about council Tax in our glossary page.
- Band: D
- PARKINGDetails of how and where vehicles can be parked, and any associated costs.Read more about parking in our glossary page.
- Garage,Driveway
- GARDENA property has access to an outdoor space, which could be private or shared.
- Private garden
- ACCESSIBILITYHow a property has been adapted to meet the needs of vulnerable or disabled individuals.Read more about accessibility in our glossary page.
- Step-free access,Wet room
Langton Close, Selsey, PO20
Add an important place to see how long it'd take to get there from our property listings.
__mins driving to your place
Get an instant, personalised result:
- Show sellers you’re serious
- Secure viewings faster with agents
- No impact on your credit score
Affordability
Notes
Staying secure when looking for property
Ensure you're up to date with our latest advice on how to avoid fraud or scams when looking for property online.
Visit our security centre to find out moreDisclaimer - Property reference 780b7b58-e79f-4304-ae03-5087c882ab90. The information displayed about this property comprises a property advertisement. Rightmove.co.uk makes no warranty as to the accuracy or completeness of the advertisement or any linked or associated information, and Rightmove has no control over the content. This property advertisement does not constitute property particulars. The information is provided and maintained by Henry Adams, Selsey. Please contact the selling agent or developer directly to obtain any information which may be available under the terms of The Energy Performance of Buildings (Certificates and Inspections) (England and Wales) Regulations 2007 or the Home Report if in relation to a residential property in Scotland.
*This is the average speed from the provider with the fastest broadband package available at this postcode. The average speed displayed is based on the download speeds of at least 50% of customers at peak time (8pm to 10pm). Fibre/cable services at the postcode are subject to availability and may differ between properties within a postcode. Speeds can be affected by a range of technical and environmental factors. The speed at the property may be lower than that listed above. You can check the estimated speed and confirm availability to a property prior to purchasing on the broadband provider's website. Providers may increase charges. The information is provided and maintained by Decision Technologies Limited. **This is indicative only and based on a 2-person household with multiple devices and simultaneous usage. Broadband performance is affected by multiple factors including number of occupants and devices, simultaneous usage, router range etc. For more information speak to your broadband provider.
Map data ©OpenStreetMap contributors.








