Box, Stroud

- PROPERTY TYPE
Detached
- BEDROOMS
5
- BATHROOMS
2
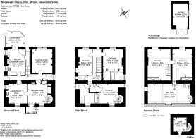
- SIZE
2,218 sq ft
206 sq m
- TENUREDescribes how you own a property. There are different types of tenure - freehold, leasehold, and commonhold.Read more about tenure in our glossary page.
Freehold
Key features
- Charming Period Home
- Central Village Location
- 5 Bedrooms
- 3 Receptions
- Stunning Views
- English Country Garden
- Period Features
- Parking
- Garage
Description
Description - Nestled in the heart of the Cotswold village of Box, Woodleaze House offers practical living alongside exceptional period charm. Parts of the house date back to 1603 including the main reception hall where aged flagstone flooring tells a story and a Jacobean spice cupboard sets the tone for the remainder of the property - this is a home steeped in historic interest and exuding character around every turn with original beams and fireplaces, wonderful shutters and aged flagstone and wooden flooring.
The property opens to an impressive reception hall which the vendors also use as an occasional dining room. A large fireplace adds warmth, ideal for cosy supper parties in the colder months. A spacious cellar with domed full-height ceiling makes an ideal wine cellar or overflow storage room.
The kitchen is part of a later Victorian addition to the property and is clearly the heart of the home. Aged flagstone flooring adds character and a green Rayburn allows for cooking up a feast, as well as providing a warm focal point to the room. Bespoke oak units made by local kitchen firm, Stroud Furniture Makers, provide ample discreet storage and there is room for a good sized table, perfect for informal suppers and family gatherings. A walk-in pantry with the original stone shelf in situ, offers useful additional storage. A conservatory leads off the kitchen, with direct access to the garden, an ideal spot for a morning coffee or lazy afternoon reading a book.
The two receptions comprise a family room/snug and a more formal drawing room. Both rooms benefit from fireplaces with a wood burner in the snug and an open fire in the drawing room. The drawing room is part of the later Victorian section of the house and as such, benefits from a wonderful high ceiling, typical of the era and a large window overlooking the garden.
Five bedrooms are spread across the upper floors with 3 bedrooms and a large family bathroom on the first floor and a further two bedrooms plus a spacious attic room, on the second floor; this section of the house is ideal for a home office. The first floor principal bedroom has a good-sized en-suite and stunning views over the garden and fields beyond. All of the bedrooms have been thoughtfully laid out to provide both comfort and plenty of useful storage space.
The garden is a real feature of the property providing an enclosed tranquil haven of privacy. Enveloping three sides of the house, the garden exudes English country charm with well-stocked borders, mature trees and a choice of seating areas.
The property also benefits from a single garage and parking space just a short walk from the house and an additional parking space directly to the side of the property.
Brochures
Box, Stroud- COUNCIL TAXA payment made to your local authority in order to pay for local services like schools, libraries, and refuse collection. The amount you pay depends on the value of the property.Read more about council Tax in our glossary page.
- Band: G
- PARKINGDetails of how and where vehicles can be parked, and any associated costs.Read more about parking in our glossary page.
- Yes
- GARDENA property has access to an outdoor space, which could be private or shared.
- Yes
- ACCESSIBILITYHow a property has been adapted to meet the needs of vulnerable or disabled individuals.Read more about accessibility in our glossary page.
- Ask agent
Box, Stroud
Add an important place to see how long it'd take to get there from our property listings.
__mins driving to your place
Get an instant, personalised result:
- Show sellers you’re serious
- Secure viewings faster with agents
- No impact on your credit score
Affordability
Notes
Staying secure when looking for property
Ensure you're up to date with our latest advice on how to avoid fraud or scams when looking for property online.
Visit our security centre to find out moreDisclaimer - Property reference 34575134. The information displayed about this property comprises a property advertisement. Rightmove.co.uk makes no warranty as to the accuracy or completeness of the advertisement or any linked or associated information, and Rightmove has no control over the content. This property advertisement does not constitute property particulars. The information is provided and maintained by Murrays Estate Agents, Minchinhampton. Please contact the selling agent or developer directly to obtain any information which may be available under the terms of The Energy Performance of Buildings (Certificates and Inspections) (England and Wales) Regulations 2007 or the Home Report if in relation to a residential property in Scotland.
*This is the average speed from the provider with the fastest broadband package available at this postcode. The average speed displayed is based on the download speeds of at least 50% of customers at peak time (8pm to 10pm). Fibre/cable services at the postcode are subject to availability and may differ between properties within a postcode. Speeds can be affected by a range of technical and environmental factors. The speed at the property may be lower than that listed above. You can check the estimated speed and confirm availability to a property prior to purchasing on the broadband provider's website. Providers may increase charges. The information is provided and maintained by Decision Technologies Limited. **This is indicative only and based on a 2-person household with multiple devices and simultaneous usage. Broadband performance is affected by multiple factors including number of occupants and devices, simultaneous usage, router range etc. For more information speak to your broadband provider.
Map data ©OpenStreetMap contributors.




