St. Albans Road, City Centre, Leicester

- PROPERTY TYPE
Terraced
- BEDROOMS
5
- BATHROOMS
3
- SIZE
1,087 sq ft
101 sq m
- TENUREDescribes how you own a property. There are different types of tenure - freehold, leasehold, and commonhold.Read more about tenure in our glossary page.
Freehold
Key features
- Ideal Investment Opportunity - Main House And Separate Coach House
- Main House Generates £24,000 Per Year; Coach House Generates £9,600 Per Year
- Modern Style Kitchens and Bathrooms
- Ideal for Access to Leicester University and Leicester City Centre
- Lounge Furniture Included
- Photos Taken Pre-Tenancy
- Front Garden with Gated Access to Paved Frontage
- Rear Garden with Double Gates Leading to Paved Courtyard-Style Seating Area
Description
Offered for sale as an investment opportunity, this mid-terraced property on St. Albans Road includes a main house and a separate coach house, currently generating a combined annual income of approximately £33,600.
The main house provides well-arranged accommodation comprising an entrance hall with under-stairs storage, a communal sitting room with fitted kitchen units and appliances, and a ground floor bedroom/reception room. To the first floor, there are three further bedrooms, a bathroom, and a separate shower room, offering practical living arrangements for multiple occupants.
The coach house is self-contained and features an open-plan living, kitchen, and dining space to the ground floor, along with a shower room. To the first floor is a double bedroom, creating an additional income-generating unit.
Externally, the property benefits from a front garden with gated access leading to a paved frontage, while to the rear, there is a courtyard-style garden with double gates providing access.
Located within the city centre, the property offers convenient access to local amenities, transport links, and Leicester University, making it well placed for ongoing rental demand.
Please note that the photographs were taken before the current tenancy.
EPC Rating: E
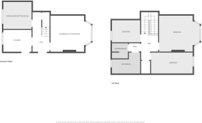
Entrance Hall
Stairs to the first floor, under-stairs storage cupboard, lino flooring, and radiator.
Communal Sitting Room
4.71m x 4.25m
Window to rear elevation, door to side elevation. Stainless steel sink and drainer unit, range of wall and base units with work surfaces over, built-in oven and electric hob, and built-in dishwasher.
Ground Floor Bedroom Four / Reception Room
3.19m x 2.94m
Window to rear elevation and radiator.
Bedroom One
4.74m x 4.22m
Bay window to front elevation and radiator.
Bedroom Two
3.1m x 3.01m
Window to rear elevation and radiator.
Bedroom Three
5m x 2.53m
Window to front elevation and radiator.
Bathroom
3m x 1.69m
Window to rear elevation, bath with mixer tap shower attachment, wash hand basin, low-level WC, and heated towel rail.
Shower Room
1.82m x 1.7m
(narrowing to 0.8m). Window to rear elevation. Shower cubicle, low-level WC, wash hand basin, lino flooring, and heated towel rail.
Open Plan Living/Kitchen/Dining Room
7.37m x 3.78m
(narrowing to 2.4m). Stairs to the first floor. Sink and drainer unit, wall and base units with work surfaces over, built-in oven and electric hob with filter hood over, plumbing for washing machine. The living area includes a double-glazed door and window on the front elevation and storage heaters.
Shower Room
2.54m x 1.04m
Shower cubicle, wash hand basin, low-level WC, and heated towel rail
First Floor Bedroom
4.66m x 3.8m
Double-glazed window to front elevation and wall heater.
Garden
Paved courtyard seating area.
Parking - Permit
Permit Parking Zones
The property is within a controlled parking zone. Buyers should make their own enquiries with the local council regarding permit availability and associated costs.
Disclaimer
Measurements are taken electronically and are for guidance only — not to be relied upon as exact. Services, appliances, and fittings have not been tested. Buyers must satisfy themselves through inspection. Floor plans are not to scale and are for layout guidance only. Knightsbridge Estate Agents make no warranties regarding the property. By law, we must carry out anti-money laundering checks for buyers and sellers. These are handled on our behalf by Kotini. A £70 fee (incl. VAT) charge applies. This must be paid before we can publish your property (for vendors) or issue a memorandum of sale (for buyers). The fee is non-refundable and paid directly to Lifetime Legal. We receive a portion of this fee for facilitating the checks.
Brochures
Property Brochure- COUNCIL TAXA payment made to your local authority in order to pay for local services like schools, libraries, and refuse collection. The amount you pay depends on the value of the property.Read more about council Tax in our glossary page.
- Ask agent
- PARKINGDetails of how and where vehicles can be parked, and any associated costs.Read more about parking in our glossary page.
- Permit
- GARDENA property has access to an outdoor space, which could be private or shared.
- Private garden
- ACCESSIBILITYHow a property has been adapted to meet the needs of vulnerable or disabled individuals.Read more about accessibility in our glossary page.
- Ask agent
Energy performance certificate - ask agent
St. Albans Road, City Centre, Leicester
Add an important place to see how long it'd take to get there from our property listings.
__mins driving to your place
Get an instant, personalised result:
- Show sellers you’re serious
- Secure viewings faster with agents
- No impact on your credit score



Affordability
Notes
Staying secure when looking for property
Ensure you're up to date with our latest advice on how to avoid fraud or scams when looking for property online.
Visit our security centre to find out moreDisclaimer - Property reference d4fb3b55-79c8-49b4-9fa0-ead90ff733a4. The information displayed about this property comprises a property advertisement. Rightmove.co.uk makes no warranty as to the accuracy or completeness of the advertisement or any linked or associated information, and Rightmove has no control over the content. This property advertisement does not constitute property particulars. The information is provided and maintained by Knightsbridge Estate Agents & Valuers, Leicester. Please contact the selling agent or developer directly to obtain any information which may be available under the terms of The Energy Performance of Buildings (Certificates and Inspections) (England and Wales) Regulations 2007 or the Home Report if in relation to a residential property in Scotland.
*This is the average speed from the provider with the fastest broadband package available at this postcode. The average speed displayed is based on the download speeds of at least 50% of customers at peak time (8pm to 10pm). Fibre/cable services at the postcode are subject to availability and may differ between properties within a postcode. Speeds can be affected by a range of technical and environmental factors. The speed at the property may be lower than that listed above. You can check the estimated speed and confirm availability to a property prior to purchasing on the broadband provider's website. Providers may increase charges. The information is provided and maintained by Decision Technologies Limited. **This is indicative only and based on a 2-person household with multiple devices and simultaneous usage. Broadband performance is affected by multiple factors including number of occupants and devices, simultaneous usage, router range etc. For more information speak to your broadband provider.
Map data ©OpenStreetMap contributors.





