Tetbury Street, Minchinhampton, Stroud

- PROPERTY TYPE
House
- BEDROOMS
3
- BATHROOMS
2
- SIZE
1,883 sq ft
175 sq m
- TENUREDescribes how you own a property. There are different types of tenure - freehold, leasehold, and commonhold.Read more about tenure in our glossary page.
Freehold
Key features
- Beautifully Presented
- 3 Double Bedrooms
- Sitting Room with Bi-fold Doors
- Eat-in Kitchen/Diner
- 2 Bathrooms
- Private South Facing Patio Garden
- Garage
- Off-Street Parking for 2 Cars
- Centre of Minchinhampton
- No onward chain
Description
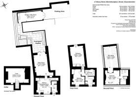
Description - 2 Tetbury Street, is a Grade II Listed house believed to have 18th c origins and unusually for the centre of Minchinhampton, it not only has private parking but also a garage.
The cottage is deceptively spacious and has been sympathetically renovated and updated by the current owners. The front door opens directly into the entrance hall with a useful bespoke storage bench and cloakroom leading off.
Beyond this, at the front of the property is a large kitchen/diner with wooden floors, new wooden sash windows and plentiful storage including a larder. There is also a hidden trap door to the cellar. Steps lead down from the kitchen to a 20 ft sitting room, light and spacious with the benefit of a newly exposed Inglenook fireplace with wood burning stove. Bi-fold doors covering the entire width of the room lead out to the south-facing and landscaped patio garden.
This unexpected sun-trap, perfect for entertaining, links the property to the large garage. This useful space includes a utility area and leads through to the off-street parking beyond (located on Well Hill).
On the first floor, at the front of the property, is a large double bedroom and the family bathroom with airing cupboard. The principal bedroom, with an almost identical footprint to the sitting room, is a delightful light filled room at the rear of the property on this floor.
A wooden staircase leads up to the second floor where another double beamed bedroom and adjacent shower room are found.
Brochures
Tetbury Street, Minchinhampton, Stroud- COUNCIL TAXA payment made to your local authority in order to pay for local services like schools, libraries, and refuse collection. The amount you pay depends on the value of the property.Read more about council Tax in our glossary page.
- Band: E
- PARKINGDetails of how and where vehicles can be parked, and any associated costs.Read more about parking in our glossary page.
- Yes
- GARDENA property has access to an outdoor space, which could be private or shared.
- Yes
- ACCESSIBILITYHow a property has been adapted to meet the needs of vulnerable or disabled individuals.Read more about accessibility in our glossary page.
- Ask agent
Tetbury Street, Minchinhampton, Stroud
Add an important place to see how long it'd take to get there from our property listings.
__mins driving to your place
Get an instant, personalised result:
- Show sellers you’re serious
- Secure viewings faster with agents
- No impact on your credit score
Affordability
Notes
Staying secure when looking for property
Ensure you're up to date with our latest advice on how to avoid fraud or scams when looking for property online.
Visit our security centre to find out moreDisclaimer - Property reference 34575766. The information displayed about this property comprises a property advertisement. Rightmove.co.uk makes no warranty as to the accuracy or completeness of the advertisement or any linked or associated information, and Rightmove has no control over the content. This property advertisement does not constitute property particulars. The information is provided and maintained by Murrays Estate Agents, Minchinhampton. Please contact the selling agent or developer directly to obtain any information which may be available under the terms of The Energy Performance of Buildings (Certificates and Inspections) (England and Wales) Regulations 2007 or the Home Report if in relation to a residential property in Scotland.
*This is the average speed from the provider with the fastest broadband package available at this postcode. The average speed displayed is based on the download speeds of at least 50% of customers at peak time (8pm to 10pm). Fibre/cable services at the postcode are subject to availability and may differ between properties within a postcode. Speeds can be affected by a range of technical and environmental factors. The speed at the property may be lower than that listed above. You can check the estimated speed and confirm availability to a property prior to purchasing on the broadband provider's website. Providers may increase charges. The information is provided and maintained by Decision Technologies Limited. **This is indicative only and based on a 2-person household with multiple devices and simultaneous usage. Broadband performance is affected by multiple factors including number of occupants and devices, simultaneous usage, router range etc. For more information speak to your broadband provider.
Map data ©OpenStreetMap contributors.




