Lombardy, Como, Moltrasio, Italy
- PROPERTY TYPE
Apartment
- BEDROOMS
1
- BATHROOMS
1
- SIZE
Ask agent
Key features
- View : Exterior
- Orientations : South-east
Description
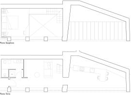
The property is currently divided into two independent units, a layout that offers a high level of flexibility.
The unit (74 cadastral sqm) comprises an entrance hall, living area, mezzanine sleeping area, and a dining area with kitchen set within a striking glass conservatory, a distinctive architectural feature that enhances and characterises the space.
The recent renovation involved the entire property, enhancing the ceiling heights, natural light and typical loft-style layout, resulting in well-organised and functional interiors. The outdoor area represents an additional value, ideal as a private relaxation space.
The current configuration makes the property ideal for short-term rentals, while also being easily adaptable as a primary residence, .The property will be delivered fully completed.
There is the possibility to purchase an adjacent garage (currently under construction) or an outdoor parking space. Should there be interest, it is also possible to rent a boat mooring.
Lombardy, Como, Moltrasio, Italy
NEAREST AIRPORTS
Distances are straight line measurements- Milano (Malpensa)(International)24.3 miles
- Linate(Local)29.7 miles
- Città di Torino(International)83.3 miles
- Villafranca Veronese(International)92.6 miles
Advice on buying Italian property
Learn everything you need to know to successfully find and buy a property in Italy.
Notes
This is a property advertisement provided and maintained by Sara Gregoria Cilia Immobililare, Menaggio (reference 86881094) and does not constitute property particulars. Whilst we require advertisers to act with best practice and provide accurate information, we can only publish advertisements in good faith and have not verified any claims or statements or inspected any of the properties, locations or opportunities promoted. Rightmove does not own or control and is not responsible for the properties, opportunities, website content, products or services provided or promoted by third parties and makes no warranties or representations as to the accuracy, completeness, legality, performance or suitability of any of the foregoing. We therefore accept no liability arising from any reliance made by any reader or person to whom this information is made available to. You must perform your own research and seek independent professional advice before making any decision to purchase or invest in overseas property.





