Unit 2b, Forthside Way, Stirling, FK8 1QZ
- SIZE AVAILABLE
4,434 sq ft
412 sq m
- SECTOR
Commercial property to lease
Lease details
- Lease available date:
- Now
Key features
- Prominent location
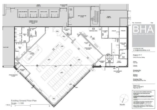
- Extends to 412.08 Sq. M. (4,434 Sq.Ft.)
- On the fringe of Stirling City Centre
- Client would consider alternative uses including retail, gym etc.
Description
Prominent location
Extends to 412.08 Sq. M. (4,434 Sq.Ft.)
On the fringe of Stirling City Centre
Client would consider alternative uses including retail, gym etc.
Graham + Sibbald are delighted to bring to the market Unit 2B, The Barracks, To Let. The subjects are located directly north of Stirling City Centre and are within a short walk of all shopping and leisure amenities, as well as the mainline Railway and Bus Stations.
The subjects comprise a self-contained restaurant unit. Internally the subjects comprise open plan service/sales for approximately 120 seated covers, with kitchen and stores to the rear. The subjects benefit from having washroom facilities and remain partially fitted with the previous tenant's fixtures and fittings.
The restaurant forms part of the Forthside Leisure Complex, that includes Vue Cinema, Nando's and Toast Coffee Shop/Café. Premier Inn is located opposite the subjects and the Forthside Barracks, with 4 office buildings and Conference Centre is immediately adjacent.
The terms of the lease are open to negotiation.
Brochures
Unit 2b, Forthside Way, Stirling, FK8 1QZ
NEAREST STATIONS
Distances are straight line measurements from the centre of the postcode- Stirling Station0.2 miles
- Bridge of Allan Station2.7 miles
- Dunblane Station4.8 miles
Notes
Disclaimer - Property reference 138281LH. The information displayed about this property comprises a property advertisement. Rightmove.co.uk makes no warranty as to the accuracy or completeness of the advertisement or any linked or associated information, and Rightmove has no control over the content. This property advertisement does not constitute property particulars. The information is provided and maintained by Graham & Sibbald, Hotels. Please contact the selling agent or developer directly to obtain any information which may be available under the terms of The Energy Performance of Buildings (Certificates and Inspections) (England and Wales) Regulations 2007 or the Home Report if in relation to a residential property in Scotland.
Map data ©OpenStreetMap contributors.



