Liverpool Lawn, Ramsgate, CT11 9HJ

- PROPERTY TYPE
Terraced
- BEDROOMS
3
- BATHROOMS
2
- SIZE
Ask agent
- TENUREDescribes how you own a property. There are different types of tenure - freehold, leasehold, and commonhold.Read more about tenure in our glossary page.
Freehold
Key features
- Grade II Listed
- Bespoke Design Features
- Three/Four Bedrooms
- Close to the Royal Harbour
- Close to Town Centre
- Ideal for Commuter's
- Ramsgate Railway Station Near By
- Immaculate Condition Throughout
Description
Immaculately Renovated Georgian Home in Prestigious Liverpool Lawn, Moments from the Royal Harbour
Nestled in the heart of Ramsgate’s highly sought-after Liverpool Lawn, this beautifully restored Grade II listed Georgian townhouse blends refined period charm with contemporary design. Built in 1828, the property is part of an elegant crescent that surrounds a private, gated lawn and enjoys a partial sea view to the right—offering one of the town’s most desirable residential settings.
Meticulously refurbished by renowned London design studio Zachary Pulman, the home retains its historical character while embracing a modern, understated aesthetic. The interior has been carefully crafted to combine original architectural features with clean, contemporary finishes. Updates include new heating, wiring, flooring, and a thoughtfully designed kitchen and bathrooms—all executed to an exceptional standard.
Spanning four floors, the layout is flexible and can accommodate up to four bedrooms, depending on your needs. Currently configured to suit modern living, the space allows for generous bedrooms, a home office, or a guest suite. Highlights include bespoke under-lit solid oak shelving in the kitchen, a custom concrete display feature in the drawing room, and integrated wardrobes with a refined shadow-gap design in the top-floor bedroom.
There are two luxurious bathrooms, each offering both a bath and an open walk-in shower, plus double basins. A separate ground floor cloakroom adds further convenience. The rear garden is private and accessible from both the ground and lower ground floors, and has been landscaped for low-maintenance enjoyment.
Perfectly positioned on the West Cliff, the home is just a short walk from Waitrose, the town centre, and the vibrant Royal Harbour—with its mix of cafes, galleries, and waterfront charm. Whether as a main residence or a stylish weekend retreat, this property offers a rare opportunity to enjoy the best of Ramsgate in one of its most prestigious and peaceful enclaves.
Location
Ramsgate is a historic coastal town known for its distinctive Royal Harbour, the only one of its kind in England. It offers a lively mix of cafes, independent shops, and waterfront bars, alongside beautiful sandy beaches and scenic promenades. The town centre is rich in amenities, and Westwood Cross shopping centre is just under three miles away.
For commuters, Ramsgate’s mainline station provides high-speed services to London St Pancras. The area also offers a range of well-regarded primary and secondary schools in both the state and private sectors.
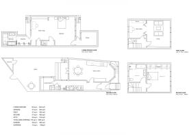
Entrance Hall
Leading to:
Kitchen/Dining Room
3.86 x 7.59
Utility Room
2.24 x 2.44
Guest WC
Lower Ground Floor
Leading to:
Cellar
2.26 x 2.31
Study Area/Bedroom
2.62 x 5.00
Bedroom
3.84 x 4.80
Bathroom
Dressing Area
First Floor
Leading to:
Lounge
3.96 x 4.78
Office/Bedroom
3.07 x 3.12
Second Floor
Leading to:
Bedroom
3.96 x 4.78
Bathroom
- COUNCIL TAXA payment made to your local authority in order to pay for local services like schools, libraries, and refuse collection. The amount you pay depends on the value of the property.Read more about council Tax in our glossary page.
- Band: C
- PARKINGDetails of how and where vehicles can be parked, and any associated costs.Read more about parking in our glossary page.
- Ask agent
- GARDENA property has access to an outdoor space, which could be private or shared.
- Yes
- ACCESSIBILITYHow a property has been adapted to meet the needs of vulnerable or disabled individuals.Read more about accessibility in our glossary page.
- Ask agent
Liverpool Lawn, Ramsgate, CT11 9HJ
Add an important place to see how long it'd take to get there from our property listings.
__mins driving to your place
Get an instant, personalised result:
- Show sellers you’re serious
- Secure viewings faster with agents
- No impact on your credit score
Affordability
Notes
Staying secure when looking for property
Ensure you're up to date with our latest advice on how to avoid fraud or scams when looking for property online.
Visit our security centre to find out moreDisclaimer - Property reference S1327904. The information displayed about this property comprises a property advertisement. Rightmove.co.uk makes no warranty as to the accuracy or completeness of the advertisement or any linked or associated information, and Rightmove has no control over the content. This property advertisement does not constitute property particulars. The information is provided and maintained by Footprints, Powered by eXp UK, Covering Thanet. Please contact the selling agent or developer directly to obtain any information which may be available under the terms of The Energy Performance of Buildings (Certificates and Inspections) (England and Wales) Regulations 2007 or the Home Report if in relation to a residential property in Scotland.
*This is the average speed from the provider with the fastest broadband package available at this postcode. The average speed displayed is based on the download speeds of at least 50% of customers at peak time (8pm to 10pm). Fibre/cable services at the postcode are subject to availability and may differ between properties within a postcode. Speeds can be affected by a range of technical and environmental factors. The speed at the property may be lower than that listed above. You can check the estimated speed and confirm availability to a property prior to purchasing on the broadband provider's website. Providers may increase charges. The information is provided and maintained by Decision Technologies Limited. **This is indicative only and based on a 2-person household with multiple devices and simultaneous usage. Broadband performance is affected by multiple factors including number of occupants and devices, simultaneous usage, router range etc. For more information speak to your broadband provider.
Map data ©OpenStreetMap contributors.




