
Trinity, Park Street, Trowbridge

- PROPERTY TYPE
Terraced
- BEDROOMS
3
- BATHROOMS
2
- SIZE
1,096 sq ft
102 sq m
- TENUREDescribes how you own a property. There are different types of tenure - freehold, leasehold, and commonhold.Read more about tenure in our glossary page.
Freehold
Key features
- Brand New Conversion
- Converted 19th Century School
- 3 Bedrooms
- 2 Bathrooms
- 1096 Sq. Ft.
- Reserve Now for £1000
- £1000 Contribution Toward Legal Fees
- Seven Units Available
- Customisable Finishes
- Built By Reputable Local Developer
Description
Property Introduction
Historic charm meets high-end modern living in this stunning three-bedroom school conversion featuring an original bell tower and bespoke designer finishes. Reserve now and secure this bespoke home.
Unit 5, Trinity, Trowbridge | Guide Price £300,000 – £325,000
Unit 5 at Trinity is a standout home within a bespoke collection of just seven unique properties. Originally a 19th-century school, this thoughtfully executed conversion seamlessly blends historic character - complete with the building’s original bell tower - with the ease of living of a high-specification modern home.
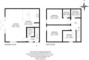
Unit 5 is bright and brilliantly finished, approximately 1,096 sq. ft., designed for both style and practicality. The ground floor features a beautifully finished Wren Infinity kitchen with integrated appliances, including an induction hob, electric oven, fridge freezer, and dishwasher.
This space is complemented by elegant herringbone flooring and high-quality finishes throughout. For added convenience, there is a dedicated utility room and a separate downstairs WC.
The Layout
Ground Floor: A large open-plan kitchen and living area with patio doors that open onto the garden. There is also a downstairs WC and utility cupboard.
First Floor: Two generous double bedrooms and a versatile third single bedroom, perfect for a home study or nursery.
Bathrooms: A high-end finish featuring Porcelanosa tiling, including a family bathroom and a private en-suite to the principal bedroom.
Outdoor & Practicalities: The property benefits from its own private garden and patio area, alongside allocated parking with access to EV charging points. The home is serviced by a new gas central heating system.
A Rare Opportunity: Trinity offers a genuinely individual alternative to conventional new-builds, providing architectural identity and solid stone construction in a well-connected Wiltshire location.
Secure Your Future with Confidence - Gazeal Deposit & Reservation Agreements
Reserve any of the seven units at Trinity for just £1,000: Through our partnership with Gazeal, you can secure this home or any of the other six units with a reservation deposit scheme.
Legal Fee Incentive: We are pleased to offer £1,000 towards your legal fees when using one of the recommended solicitors trusted by both the developer - Stone Developments - and Flower Property.
Trinity Trowbridge
Consisting of seven units, also available in the development are:
Unit 1 - 2-bed, 2-bath
Unit 2 - 2-bed, 2-bath
Unit 3 - 2-bed, 1-bath
Unit 4 - 2-bed, 1-bath
Unit 5 - (Show Home) 3-bed, 2-bath
Unit 6 - 3-bed, 3-bath
Unit 7 - 2-bed, 2-bath
The units in the development will range from £240,000 - £325,000
More details can be shared in the brochure we have for the development, please ask if you would like this to be shared.
All can be reserved now, please reach out to Flower Property for more information.
Launch Party at the Show Home - Friday 17th April from 16:00
Join Our Launch Party Come and experience the quality of this development first-hand at our Launch Party on Friday 17th April from 16:00. It’s a fantastic opportunity to tour the site, meet Project Manager Matt, and enjoy food, drinks, and music.
About the Area: Park Street, Trowbridge
Trowbridge is a historic market town that has seen significant investment and regeneration in recent years, making it an increasingly popular choice for professionals and families alike. Trinity is perfectly positioned on Park Street, offering a quiet residential feel while remaining within easy walking distance of the town’s core amenities.
Transport & Connectivity: The development is ideally located for commuters. Trowbridge Railway Station is just a short walk away, providing direct links to Bath (approx. 20 minutes), Bristol, and London Paddington. For those who drive, the town offers excellent road access to the A350 and A36, connecting you to the wider West Country.
Culture & Leisure: Just moments away is the beautiful Trowbridge Park, providing green space and leisure facilities right on your doorstep. The town centre features a vibrant mix of independent shops, high-street brands, and the St Stephens Place complex, which hosts an Odeon cinema and a variety of popular restaurants.
History & Community: Trowbridge is full of architectural interest. Trinity itself sits within a converted 19th-century school, allowing residents to own a piece of the town's history while enjoying a modern, community-focused lifestyle.
Please note:
All CGI images and floor plans are designed to give an impression of the development and our house types - they may not reflect a specific plot and do not form part of
any contract. Final finishes, landscaping and detail will vary. This information has been provided in good faith, however all layouts and measurements are approximate
only. Some house types include areas of reduced headroom. Bathroom and kitchen layouts are indicative only and designs may change due to our process of continuous
product development. Images used in marketing materials may be computer generated or photography of previous developments. Maps are not to scale. Travel times and distances quoted are approximate only.
Stone Developments subscribe and comply with the Consumer Code for Home Builders.
The property may not includes the fixtures and fittings seen in the marketing materials. Anything mentioned in the description should be checked further. If purchasing the property, please instruct your Solicitor to review everything or reach out to your Property Agent for clarification.
Brochures
Brochure 1- COUNCIL TAXA payment made to your local authority in order to pay for local services like schools, libraries, and refuse collection. The amount you pay depends on the value of the property.Read more about council Tax in our glossary page.
- Ask agent
- PARKINGDetails of how and where vehicles can be parked, and any associated costs.Read more about parking in our glossary page.
- Allocated
- GARDENA property has access to an outdoor space, which could be private or shared.
- Private garden,Patio
- ACCESSIBILITYHow a property has been adapted to meet the needs of vulnerable or disabled individuals.Read more about accessibility in our glossary page.
- No wheelchair access
Energy performance certificate - ask agent
Trinity, Park Street, Trowbridge
Add an important place to see how long it'd take to get there from our property listings.
__mins driving to your place
Get an instant, personalised result:
- Show sellers you’re serious
- Secure viewings faster with agents
- No impact on your credit score
Affordability
Notes
Staying secure when looking for property
Ensure you're up to date with our latest advice on how to avoid fraud or scams when looking for property online.
Visit our security centre to find out moreDisclaimer - Property reference S1676932. The information displayed about this property comprises a property advertisement. Rightmove.co.uk makes no warranty as to the accuracy or completeness of the advertisement or any linked or associated information, and Rightmove has no control over the content. This property advertisement does not constitute property particulars. The information is provided and maintained by Flower Property, Bath. Please contact the selling agent or developer directly to obtain any information which may be available under the terms of The Energy Performance of Buildings (Certificates and Inspections) (England and Wales) Regulations 2007 or the Home Report if in relation to a residential property in Scotland.
*This is the average speed from the provider with the fastest broadband package available at this postcode. The average speed displayed is based on the download speeds of at least 50% of customers at peak time (8pm to 10pm). Fibre/cable services at the postcode are subject to availability and may differ between properties within a postcode. Speeds can be affected by a range of technical and environmental factors. The speed at the property may be lower than that listed above. You can check the estimated speed and confirm availability to a property prior to purchasing on the broadband provider's website. Providers may increase charges. The information is provided and maintained by Decision Technologies Limited. **This is indicative only and based on a 2-person household with multiple devices and simultaneous usage. Broadband performance is affected by multiple factors including number of occupants and devices, simultaneous usage, router range etc. For more information speak to your broadband provider.
Map data ©OpenStreetMap contributors.








