
Archway Court, Cambridge

- PROPERTY TYPE
Flat
- BEDROOMS
3
- BATHROOMS
1
- SIZE
Ask agent
Key features
- Recently renovated
- 3 bedrooms
- Bathroom and cloakroom
- Spacious living room
- Fitted kitchen
- Gas central heating
- Garage
- Communal Gardens
- No upward chain
Description
Newnham is well served in terms of everyday shopping facilities which include a chemist, butcher, bakery, post office, mini supermarket, church and a popular pub, The Red Bull. Newnham Croft Primary School is nearby along Chedworth Street which is the 'feeder' school into Parkside Secondary School whilst independent schools including St John's and Kings College Schools and The Leys are within walking/cycling distance (for most).
Offered with no upward chain, the accommodation comprises;
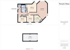
Communal entrance
with stairs to first floor. Part glazed door to
Entrance lobby
with door to hallway (see later) Karndean flooring and door to
Cloakroom
with skylight, wc, vanity wash handbasin and tiled splashbacks, mirror fronted cabinet over, Karndean flooring.
Entrance hallway
with feature full length window, built in cupboard with slatted wood shelving, further deep built in cupboard with clothes hanging rail, LVT flooring.
Living room
7.22 m x 4.03 m (23'8" x 13'3")
full length window and glazed panels to two aspects, two radiators, Karndean flooring, sliding glazed door to
Kitchen
2.85 m x 2.72 m (9'4" x 8'11")
with window to side, good range of fitted wall and base units with roll top work surfaces and tiled splashbacks, one and a quarter bowl stainless steel sink unit and drainer with mixer tap, Hotpoint washer/dryer, Beko fridge/freezer, Bosch electric hob extractor hood over, Karndean flooring, built in shelved pantry cupboard, radiator, extractor fan.
Bedroom 1
3.62 m x 3.03 m (11'11" x 9'11")
with full length window to side, radiator, sliding doors to built in wardrobe cupboard with shelving and clothes hanging rail.
Bedroom 2
2.72 m x 2.64 m (8'11" x 8'8")
with full length window to one wall, radiator, built in wardrobe cupboard with clothes hanging rail and shelf.
Bedroom 3
3.33 m x 1.99 m (10'11" x 6'6")
with full length window to one wall, radiator, built in wardrobe cupboard with clothes hanging rail and shelf.
Bathroom
with skylight, panelled bath with fully tiled surround, glass shower screen and dual head shower unit over, wc, wash handbasin with mirror fronted cabinet over, chrome heated towel rail, extractor fan, cupboard housing the gas combination boiler.
Outside
Landscaped communal gardens. Single garage.
Services
All mains services.
Tenure
The property is leasehold and enjoys the residue of a long lease with 944 years remaining with no ground rent to pay and benefits from shares in Archway Court Freehold Limited. We understand there is an annual maintenance charge of around £1000.00which is reviewed annually by the Archway Court Residents Society.
Council tax
Band D
Viewing
By arrangement with Pocock & Shaw
Brochures
Brochure of 3 Archway Court- COUNCIL TAXA payment made to your local authority in order to pay for local services like schools, libraries, and refuse collection. The amount you pay depends on the value of the property.Read more about council Tax in our glossary page.
- Band: D
- PARKINGDetails of how and where vehicles can be parked, and any associated costs.Read more about parking in our glossary page.
- Yes
- GARDENA property has access to an outdoor space, which could be private or shared.
- Ask agent
- ACCESSIBILITYHow a property has been adapted to meet the needs of vulnerable or disabled individuals.Read more about accessibility in our glossary page.
- Ask agent
Archway Court, Cambridge
Add an important place to see how long it'd take to get there from our property listings.
__mins driving to your place
Get an instant, personalised result:
- Show sellers you’re serious
- Secure viewings faster with agents
- No impact on your credit score
Affordability
Notes
Staying secure when looking for property
Ensure you're up to date with our latest advice on how to avoid fraud or scams when looking for property online.
Visit our security centre to find out moreDisclaimer - Property reference PCZ-8983998. The information displayed about this property comprises a property advertisement. Rightmove.co.uk makes no warranty as to the accuracy or completeness of the advertisement or any linked or associated information, and Rightmove has no control over the content. This property advertisement does not constitute property particulars. The information is provided and maintained by Pocock & Shaw, Cambridge. Please contact the selling agent or developer directly to obtain any information which may be available under the terms of The Energy Performance of Buildings (Certificates and Inspections) (England and Wales) Regulations 2007 or the Home Report if in relation to a residential property in Scotland.
*This is the average speed from the provider with the fastest broadband package available at this postcode. The average speed displayed is based on the download speeds of at least 50% of customers at peak time (8pm to 10pm). Fibre/cable services at the postcode are subject to availability and may differ between properties within a postcode. Speeds can be affected by a range of technical and environmental factors. The speed at the property may be lower than that listed above. You can check the estimated speed and confirm availability to a property prior to purchasing on the broadband provider's website. Providers may increase charges. The information is provided and maintained by Decision Technologies Limited. **This is indicative only and based on a 2-person household with multiple devices and simultaneous usage. Broadband performance is affected by multiple factors including number of occupants and devices, simultaneous usage, router range etc. For more information speak to your broadband provider.
Map data ©OpenStreetMap contributors.









