
Somerset Street, Kingsdown, Bristol, Somerset, BS2

Letting details
- Let available date:
- Now
- Deposit:
- £5,884A deposit provides security for a landlord against damage, or unpaid rent by a tenant.Read more about deposit in our glossary page.
- Min. Tenancy:
- 6 months How long the landlord offers to let the property for.Read more about tenancy length in our glossary page.
- Let type:
- Long term
- Furnish type:
- Furnished or unfurnished, landlord is flexible
- Council Tax:
- Ask agent
- PROPERTY TYPE
Terraced
- BEDROOMS
4
- BATHROOMS
3
- SIZE
1,742 sq ft
162 sq m
Key features
- A distinguished bay-fronted Georgian townhouse of exceptional elegance
- Part furnished
- Versatile and generously proportioned accommodation with adaptable layout
- Beautifully preserved period character complemented by refined original features
- Impressive open-plan kitchen, dining and family space, ideal for entertaining
- Breathtaking panoramic cityscape views
- Set within a welcoming, well-connected neighbourhood, moments from local amenities
- EPC Rating = C
Description
Description
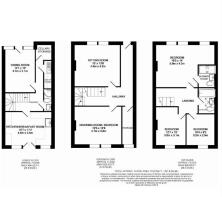
This exceptional Grade II listed Victorian/Georgian townhouse occupies a picturesque cobbled street opposite Fremantle Square, in the highly sought-after Kingsdown area. The property is finished to a high standard, the property combines elegant period character with contemporary finishes, offering flexible accommodation across four floors. Making the house perfect for a family home.
Upon entering, a grand hallway leads to a spacious sitting room and a generous drawing room, which could serve as an additional bedroom if desired, alongside a substantial walk-in storage area. The lower floor features a bespoke kitchen and breakfast room with integrated appliances, flowing seamlessly onto a beautifully landscaped garden, complemented by a dining room, utility room, shower room, and further storage.
The first floor hosts three well-proportioned double bedrooms, including a superb principal suite with en-suite facilities, alongside a stylish family bathroom. A versatile study or occasional fourth bedroom completes the accommodation, providing a perfect home office or guest space. Throughout, the home benefits from gas central heating and retains many fine period features, offering a harmonious blend of comfort, style, and historic charm.
Externally, the south-easterly facing walled garden extends to approximately 40–50 feet, providing a private, sun-drenched retreat. Carefully landscaped, the space features a patio, lawn, mature planting, and inviting seating areas, ideal for entertaining or quiet relaxation.
Somerset Street enjoys convenient access to Gloucester Road, Whiteladies Road, and the city centre, while the property is ideally situated for the University of Bristol, Bristol Royal Infirmary, the BBC, and the amenities of Clifton Village. A residents’ parking scheme is available through the local council.
Available immediately on an Part furnished basis, this remarkable period home offers a rare opportunity to secure a property in one of Bristol’s most prestigious residential locations.
Location
Superbly positioned for convenient access to the City Centre, the property also lies moments from the vibrant independent boutiques, cafés and restaurants of Cotham Hill and Stokes Croft.
The area is exceptionally well served by a selection of highly regarded schools, including Cotham School, further enhancing its appeal as an outstanding family home within one of Bristol’s most desirable and established locations.
Square Footage: 1,742 sq ft
Additional Info
Holding Deposit : £980.77 ( 1 week )
Deposit Payable : £5,884.62 ( 6 weeks )
Minimum Term : 6 months
Rent must be paid monthly in advance
Brochures
Web DetailsParticulars- COUNCIL TAXA payment made to your local authority in order to pay for local services like schools, libraries, and refuse collection. The amount you pay depends on the value of the property.Read more about council Tax in our glossary page.
- Band: E
- PARKINGDetails of how and where vehicles can be parked, and any associated costs.Read more about parking in our glossary page.
- Yes
- GARDENA property has access to an outdoor space, which could be private or shared.
- Yes
- ACCESSIBILITYHow a property has been adapted to meet the needs of vulnerable or disabled individuals.Read more about accessibility in our glossary page.
- Ask agent
Somerset Street, Kingsdown, Bristol, Somerset, BS2
Add an important place to see how long it'd take to get there from our property listings.
__mins driving to your place
Notes
Staying secure when looking for property
Ensure you're up to date with our latest advice on how to avoid fraud or scams when looking for property online.
Visit our security centre to find out moreDisclaimer - Property reference CFL260018_L. The information displayed about this property comprises a property advertisement. Rightmove.co.uk makes no warranty as to the accuracy or completeness of the advertisement or any linked or associated information, and Rightmove has no control over the content. This property advertisement does not constitute property particulars. The information is provided and maintained by Savills Lettings, Clifton. Please contact the selling agent or developer directly to obtain any information which may be available under the terms of The Energy Performance of Buildings (Certificates and Inspections) (England and Wales) Regulations 2007 or the Home Report if in relation to a residential property in Scotland.
*This is the average speed from the provider with the fastest broadband package available at this postcode. The average speed displayed is based on the download speeds of at least 50% of customers at peak time (8pm to 10pm). Fibre/cable services at the postcode are subject to availability and may differ between properties within a postcode. Speeds can be affected by a range of technical and environmental factors. The speed at the property may be lower than that listed above. You can check the estimated speed and confirm availability to a property prior to purchasing on the broadband provider's website. Providers may increase charges. The information is provided and maintained by Decision Technologies Limited. **This is indicative only and based on a 2-person household with multiple devices and simultaneous usage. Broadband performance is affected by multiple factors including number of occupants and devices, simultaneous usage, router range etc. For more information speak to your broadband provider.
Map data ©OpenStreetMap contributors.





