
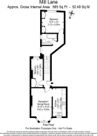
Mill Lane, West Hampstead, NW6

- PROPERTY TYPE
Apartment
- BEDROOMS
2
- BATHROOMS
1
- SIZE
565 sq ft
52 sq m
Key features
- Two bedrooms
- Reception/dining room
- Circa 565 Sq Ft / 52 Sq M
- Gas Central Heating
- Amazing multiple transport links
- Lease over 150 years
Description
Situated on the first floor of a charming conversion, this modern, split-level two bedroom apartment is located just off West End Lane in the heart of West Hampstead.
The front-facing reception room features high ceilings and a large bay window providing lots of natural light. The modern, interconnected kitchen features an integrated dishwasher and fridge/freezer. Bedroom 2 is perfect as a guest room and/or a work from home space with the principle bedroom being at the rear of the property giving minimal outside disturbance.
The bathroom is well placed in the middle of the apartment and features a shower over the bath-tub.
Mill Lane is located conveniently to the shops, restaurants and amenities of West End Lane. The Jubilee Line, Thameslink and London Overground are all situated on West End Lane making the major travel hubs, West End and The City easily accessible.
Tenure: Leaseshold 152 years (189 years from 24 June 1989)
Service charge: £600 pa
Ground rent: £1 (Nominal)
EPC Rating: C
- COUNCIL TAXA payment made to your local authority in order to pay for local services like schools, libraries, and refuse collection. The amount you pay depends on the value of the property.Read more about council Tax in our glossary page.
- Band: D
- PARKINGDetails of how and where vehicles can be parked, and any associated costs.Read more about parking in our glossary page.
- Ask agent
- GARDENA property has access to an outdoor space, which could be private or shared.
- Ask agent
- ACCESSIBILITYHow a property has been adapted to meet the needs of vulnerable or disabled individuals.Read more about accessibility in our glossary page.
- Ask agent
Mill Lane, West Hampstead, NW6
Add an important place to see how long it'd take to get there from our property listings.
__mins driving to your place
Get an instant, personalised result:
- Show sellers you’re serious
- Secure viewings faster with agents
- No impact on your credit score
Affordability
Notes
Staying secure when looking for property
Ensure you're up to date with our latest advice on how to avoid fraud or scams when looking for property online.
Visit our security centre to find out moreDisclaimer - Property reference L809954. The information displayed about this property comprises a property advertisement. Rightmove.co.uk makes no warranty as to the accuracy or completeness of the advertisement or any linked or associated information, and Rightmove has no control over the content. This property advertisement does not constitute property particulars. The information is provided and maintained by Charles David Casson, Chelmsford. Please contact the selling agent or developer directly to obtain any information which may be available under the terms of The Energy Performance of Buildings (Certificates and Inspections) (England and Wales) Regulations 2007 or the Home Report if in relation to a residential property in Scotland.
*This is the average speed from the provider with the fastest broadband package available at this postcode. The average speed displayed is based on the download speeds of at least 50% of customers at peak time (8pm to 10pm). Fibre/cable services at the postcode are subject to availability and may differ between properties within a postcode. Speeds can be affected by a range of technical and environmental factors. The speed at the property may be lower than that listed above. You can check the estimated speed and confirm availability to a property prior to purchasing on the broadband provider's website. Providers may increase charges. The information is provided and maintained by Decision Technologies Limited. **This is indicative only and based on a 2-person household with multiple devices and simultaneous usage. Broadband performance is affected by multiple factors including number of occupants and devices, simultaneous usage, router range etc. For more information speak to your broadband provider.
Map data ©OpenStreetMap contributors.





