
10 Drumain Crescent, Glenrothes, KY7 5BY

- PROPERTY TYPE
Detached
- BEDROOMS
4
- BATHROOMS
2
- SIZE
Ask agent
- TENUREDescribes how you own a property. There are different types of tenure - freehold, leasehold, and commonhold.Read more about tenure in our glossary page.
Freehold
Description
The property has been thoughtfully designed to maximise both privacy and natural light, resulting in a contemporary and welcoming atmosphere.
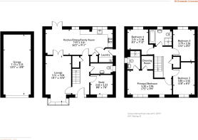
The accommodation comprises a welcoming entrance hallway leading to a spacious lounge, which benefits from abundant natural light through a large front window and overlooks the rear garden. The modern, high-specification kitchen features a comprehensive range of floor and wall-mounted units, a gas hob, an electric oven, and ample work surfaces. Positioned at the front of the property, the versatile dining room provides an elegant space for entertaining and family meals and could alternatively serve as a fifth bedroom or home office. A guest cloakroom and a utility room complete the ground-floor layout.
The first floor accommodates four well-proportioned bedrooms, including a master suite with an en-suite shower room and dressing room. A generously sized family bathroom, fitted with a white four-piece suite and a separate shower unit, is also located on this level. The property benefits from gas central heating and double glazing throughout.
Externally, the enclosed rear garden is landscaped and fully fenced, offering a secure space for outdoor recreation, children, and pets. To the front, there is parking for multiple vehicles, complemented by a single garage.
Electricity Supply: SP Energy Networks
Water Supply: Scottish Water
Sewerage: Scottish Water
Broadband / Mobile Coverage: Full 4G coverage, limited 3G and 5G.
Brochures
Brochure 1- COUNCIL TAXA payment made to your local authority in order to pay for local services like schools, libraries, and refuse collection. The amount you pay depends on the value of the property.Read more about council Tax in our glossary page.
- Ask agent
- PARKINGDetails of how and where vehicles can be parked, and any associated costs.Read more about parking in our glossary page.
- Yes
- GARDENA property has access to an outdoor space, which could be private or shared.
- Yes
- ACCESSIBILITYHow a property has been adapted to meet the needs of vulnerable or disabled individuals.Read more about accessibility in our glossary page.
- Ask agent
Energy performance certificate - ask agent
10 Drumain Crescent, Glenrothes, KY7 5BY
Add an important place to see how long it'd take to get there from our property listings.
__mins driving to your place
Get an instant, personalised result:
- Show sellers you’re serious
- Secure viewings faster with agents
- No impact on your credit score



Affordability
Notes
Staying secure when looking for property
Ensure you're up to date with our latest advice on how to avoid fraud or scams when looking for property online.
Visit our security centre to find out moreDisclaimer - Property reference MFL3242189. The information displayed about this property comprises a property advertisement. Rightmove.co.uk makes no warranty as to the accuracy or completeness of the advertisement or any linked or associated information, and Rightmove has no control over the content. This property advertisement does not constitute property particulars. The information is provided and maintained by McEwan Fraser Legal, Edinburgh. Please contact the selling agent or developer directly to obtain any information which may be available under the terms of The Energy Performance of Buildings (Certificates and Inspections) (England and Wales) Regulations 2007 or the Home Report if in relation to a residential property in Scotland.
*This is the average speed from the provider with the fastest broadband package available at this postcode. The average speed displayed is based on the download speeds of at least 50% of customers at peak time (8pm to 10pm). Fibre/cable services at the postcode are subject to availability and may differ between properties within a postcode. Speeds can be affected by a range of technical and environmental factors. The speed at the property may be lower than that listed above. You can check the estimated speed and confirm availability to a property prior to purchasing on the broadband provider's website. Providers may increase charges. The information is provided and maintained by Decision Technologies Limited. **This is indicative only and based on a 2-person household with multiple devices and simultaneous usage. Broadband performance is affected by multiple factors including number of occupants and devices, simultaneous usage, router range etc. For more information speak to your broadband provider.
Map data ©OpenStreetMap contributors.





