The Courtyard, Sheffield Park, Uckfield, East Sussex

- PROPERTY TYPE
Terraced
- BEDROOMS
3
- BATHROOMS
2
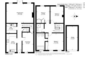
- SIZE
1,344 sq ft
125 sq m
Key features
- Hall, Kitchen, Sitting room, Dining room, Cloakroom, Utility room.
- Principal bedroom with en suite bathroom, 2 further bedrooms, Family shower room.
- Garage, Allocated parking space, Private west facing garden.
- Shared use of communal gardens, tennis courts and about 30 acres of parkland.
Description
Hall, Kitchen, Sitting room, Dining room, Cloakroom, Utility room.
Principal bedroom with en suite bathroom, 2 further bedrooms, Family shower room.
Garage, Allocated parking space, Private west facing garden.
Shared use of communal gardens, tennis courts and about 30 acres of parkland.
Property
A delightful and beautifully presented house set in this prestigious courtyard development in the grounds of the stunning 18th century, Grade I listed Sheffield Park House.
From the courtyard the front door opens into an attractive hallway with engineered oak flooring which covers much of the ground floor. Off the hall is a well-appointed cloakroom and a utility room with fitted wall and floor units, sink with mixer tap and, space for washing machine and dryer. The kitchen has a tiled floor, fitted wall and floor units, granite worktop, dishwasher, wine cooler, fridge, freezer and Rangemaster with 6 hobs, 2 ovens, grill and warming drawer. Across the hall is the dining room. The delightful, well-proportioned sitting room has an open fire and French doors to the private garden.
Upstairs, the principal bedroom is an excellent size with a range of fitted wardrobes with mirrored doors to a well-appointed en-suite bathroom. The family shower room is beautifully fitted. There are 2 further good-size bedrooms, one with fitted cupboards.
Private Garden
French doors from the sitting room open into a delightful garden with a paved terrace. Steps lead up, flanked by flowerbeds with a water feature, to the top of the garden. Here there is a gate which opens onto a gravel path leading to the communal gardens and the garage block where there is a garage and an allocated parking space for this property.
Communal Gardens and Grounds
Sheffield Park has excellent security with two gated entrances and long driveways with the main one sweeping through the parkland and past Sheffield Park House to The Courtyard. The properties enjoy shared use of the 2 tennis courts and about 30 acres of parkland.
Tenure
999 year lease dating from 1/1/89. The leaseholder has a share in the freehold company. An annual charge is payable towards the cost of the maintenance of the shared facilities. The charge for 2025 is £2978.32.
Directions
From East Grinstead head south on the A22 through Forest Row. At Wych Cross fork right onto the A275 and after about 4 miles continue past the main entrance to Sheffield Park House to the National Trust drive. Continue straight down the drive past the Tea Rooms on your left to electric gates at the end.
Local Amenities
Sheffield Park House stands in parkland adjoining The National Trust gardens with its lakes, shop and tea room. Other local amenities at Sheffield Park include Trading Boundaries, with its courtyard of individual designer boutiques, tearoom and children’s play area and Sheffield Park Station from which the Bluebell steam railway runs to East Grinstead. The nearby village of Fletching also has a very popular pub. A more comprehensive range of facilities can be found in Haywards Heath, Uckfield, Lewes, East Grinstead, Tunbridge Wells and Brighton. There are some excellent schools in the area including Cumnor House, Ardingly College and Worth.
Communications
The mainline railway station at Haywards Heath provides a service to London Bridge/Victoria in about 45 minutes. The M23 provides good access to Gatwick and the M25.
Local Authorities and Services
East Sussex C.C. . Wealden D.C. . Council Tax band G. Mains electricity and water. Shared private drainage. Oil fired central heating.
Brochures
Web DetailsParticulars- COUNCIL TAXA payment made to your local authority in order to pay for local services like schools, libraries, and refuse collection. The amount you pay depends on the value of the property.Read more about council Tax in our glossary page.
- Band: G
- PARKINGDetails of how and where vehicles can be parked, and any associated costs.Read more about parking in our glossary page.
- Allocated
- GARDENA property has access to an outdoor space, which could be private or shared.
- Yes
- ACCESSIBILITYHow a property has been adapted to meet the needs of vulnerable or disabled individuals.Read more about accessibility in our glossary page.
- No wheelchair access
The Courtyard, Sheffield Park, Uckfield, East Sussex
Add an important place to see how long it'd take to get there from our property listings.
__mins driving to your place
Get an instant, personalised result:
- Show sellers you’re serious
- Secure viewings faster with agents
- No impact on your credit score
Affordability
Notes
Staying secure when looking for property
Ensure you're up to date with our latest advice on how to avoid fraud or scams when looking for property online.
Visit our security centre to find out moreDisclaimer - Property reference EGD190086. The information displayed about this property comprises a property advertisement. Rightmove.co.uk makes no warranty as to the accuracy or completeness of the advertisement or any linked or associated information, and Rightmove has no control over the content. This property advertisement does not constitute property particulars. The information is provided and maintained by Humberts, Forest Row. Please contact the selling agent or developer directly to obtain any information which may be available under the terms of The Energy Performance of Buildings (Certificates and Inspections) (England and Wales) Regulations 2007 or the Home Report if in relation to a residential property in Scotland.
*This is the average speed from the provider with the fastest broadband package available at this postcode. The average speed displayed is based on the download speeds of at least 50% of customers at peak time (8pm to 10pm). Fibre/cable services at the postcode are subject to availability and may differ between properties within a postcode. Speeds can be affected by a range of technical and environmental factors. The speed at the property may be lower than that listed above. You can check the estimated speed and confirm availability to a property prior to purchasing on the broadband provider's website. Providers may increase charges. The information is provided and maintained by Decision Technologies Limited. **This is indicative only and based on a 2-person household with multiple devices and simultaneous usage. Broadband performance is affected by multiple factors including number of occupants and devices, simultaneous usage, router range etc. For more information speak to your broadband provider.
Map data ©OpenStreetMap contributors.




