
Ground Floor and Land at 375 Lewisham High Street, Lewisham, London SE13 6NZ
- PROPERTY TYPE
Commercial Property
- SIZE
Ask agent
Key features
- To be offered on Wednesday 22 April
- Virtual Freehold Shop Investment
- Comprising shop with land to the rear
- Well located on Lewisham High Street
- Shop holding over with new 10 year lease to October 2034 agreed
- Head lease permits Class E use or Residential
- Maybe suitable for redevelopment subject to consents
- Investment let at £15,600 p.a. (10.75% GIY on Guide Price)
Description
StrapLine
Auction Sale - 21/04/2026 - To book viewings, view the legal pack and register to bid please refer to the full sales particulars on the Savills Auctions websiteWell positioned virtual freehold shop and land to the rear. Shop holding over with new 10 year lease to October 2034 agreed with future devleopment potential subject to consents. Current Rent Reserved £15,600 p.a.
Description
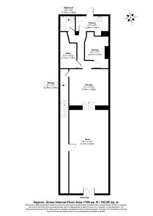
The property is arranged over ground floor only to provide a ground floor shop along with land to the rear.
Location
The property occupies a prominent position on Lewisham High Street in South East London, set within a busy stretch of established local shops, services, and amenities. The area benefits from strong footfall and good connectivity, with Ladywell rail station providing convenient transport links nearby. The open green spaces of Ladywell Fields are also easily accessible, enhancing the appeal of the wider location.
Transport
Railway - Ladywell rail station provides convenient mainline services within close proximity, offering direct links into Central London and wider South East London.
Bus - The location is also well served by numerous local bus routes running along Lewisham High Street, ensuring excellent accessibility for commuters, shoppers, and residents.
Tenancy
Let to an individual (t/a Precious Sprouts) on a lease that expired in October 2024. A lease renewal for a term of 10 years from October 2024 has been agreed but not yet completed. The current rent payable is £15,600 per annum.
Previous Sprouts website
Accommodation
Site area approximately 102.80 sq m (1,106 sq ft)
Planning
The property lies within the jurisdiction of the London Borough of Lewisham and is subject to its planning policies and guidance.
The head lease permits use as Class E (shop) or residential, providing flexibility for a purchaser who may wish to convert part of the building in the future, subject to obtaining the necessary planning consents (STPP).
The rear of the shop benefits from a licence to alter permitting the shop to be converted into a flat.
In addition, the land at the rear offers potential for future extension or could be utilised as private amenity space for a residential unit, again subject to planning permission.
Interested parties are advised to make their own enquiries with Lewisham Council to confirm that any proposed works or changes of use are acceptable.
Website: London Borough of Lewisham
Ground Floor and Land at 375 Lewisham High Street, Lewisham, London SE13 6NZ
NEAREST STATIONS
Distances are straight line measurements from the centre of the postcode- Ladywell Station0.4 miles
- Catford Bridge Station0.6 miles
- Catford Station0.6 miles
Notes
Disclaimer - Property reference 221-21677. The information displayed about this property comprises a property advertisement. Rightmove.co.uk makes no warranty as to the accuracy or completeness of the advertisement or any linked or associated information, and Rightmove has no control over the content. This property advertisement does not constitute property particulars. The information is provided and maintained by Savills Auctions, London. Please contact the selling agent or developer directly to obtain any information which may be available under the terms of The Energy Performance of Buildings (Certificates and Inspections) (England and Wales) Regulations 2007 or the Home Report if in relation to a residential property in Scotland.
Auction Fees: The purchase of this property may include associated fees not listed here, as it is to be sold via auction. To find out more about the fees associated with this property please call Savills Auctions, London on 020 3909 6715.
*Guide Price: An indication of a seller's minimum expectation at auction and given as a Guide Price or a range of Guide Prices. This is not necessarily the figure a property will sell for and is subject to change prior to the auction.
Reserve Price: Each auction property will be subject to a Reserve Price below which the property cannot be sold at auction. Normally the Reserve Price will be set within the range of Guide Prices or no more than 10% above a single Guide Price.
Map data ©OpenStreetMap contributors.





