
Low Road, Harwich

- PROPERTY TYPE
Lodge
- BEDROOMS
3
- BATHROOMS
3
- SIZE
Ask agent
Key features
- 3 Bedroom Lodge
- Occupancy 11 & 1/2 months of the year
- 2 En-Suites & Bathroom
- Decking Area
- Well Presented Throughout
Description
SUMMARY
Situated on Dovercourt Holiday is this three bedroom 2024 lodge over looking a lake. The property can be occupied 11 & 1/2 months of the year. The property is very well presented and benefits from two en-suites and bathroom as well as decking area. The property has pipe gas and a 36 year lease.
DESCRIPTION
Harwich is an attractive, historic and unique town steeped in a wealth of maritime history. The town is ideally located with excellent road, rail and ferry links. The town is home to the historic Mayflower. Harwich entices visitors with its stunning history and heritage, it is also home to a great selection of restaurants, bars, cafes and pubs.
The seaside at Dovercourt Bay boasts an award winning Blue Flag beach of which the Lighthouse's are a unique feature. Marine Parade links the town to a range of seafront facilities and unspoilt beauty, where you can embark on long walks or cycle rides
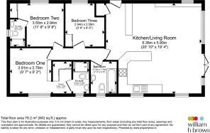
Entrance Hall
UPVC double glazed entrance door, radiator, storage cupboard.
Lounge/ Kitchen/ Diner
Four UPVC double glazed windows to side and rear, French doors to rear leading to decking, spotlights, composite one and a half bowl sink and drainer with mixer tap, two radiators, matching wall and base units with square edge work top and splashback, integrated washing machine, dishwasher, fridge/freezer, double oven, hob, hood and microwave.
Bedroom One
UPVC double glazed window to side, radiator, walk in wardrobe.
En-Suite
Low level WC, vanity sink, shower cubicle, heated towel rail, obscure UPVC double glazed window to side, extractor fan.
Bedroom Two
UPVC double glazed window to side, radiator, fitted wardrobe.
En-Suite
Low level WC, vanity sink, shower cubicle, heated towel rail, obscure UPVC double glazed window to rear, extractor fan.
Bedroom Three
UPVC double glazed window to side, radiator.
Bathroom
Low level WC, vanity sink, bath with mixer tap and shower attachment, extractor fan, spotlights, heated towel rail.
Outside
The property has decking to side and rear. The lodge is situated in a quiet corner of the site overlooking a lake.
We currently hold lease details as displayed above, should you require further information please contact the branch. Please note additional fees could be incurred for items such as leasehold packs.
1. MONEY LAUNDERING REGULATIONS: Intending purchasers will be asked to produce identification documentation at a later stage and we would ask for your co-operation in order that there will be no delay in agreeing the sale.
2. General: While we endeavour to make our sales particulars fair, accurate and reliable, they are only a general guide to the property and, accordingly, if there is any point which is of particular importance to you, please contact the office and we will be pleased to check the position for you, especially if you are contemplating travelling some distance to view the property.
3. The measurements indicated are supplied for guidance only and as such must be considered incorrect.
4. Services: Please note we have not tested the services or any of the equipment or appliances in this property, accordingly we strongly advise prospective buyers to commission their own survey or service reports before finalising their offer to purchase.
5. THESE PARTICULARS ARE ISSUED IN GOOD FAITH BUT DO NOT CONSTITUTE REPRESENTATIONS OF FACT OR FORM PART OF ANY OFFER OR CONTRACT. THE MATTERS REFERRED TO IN THESE PARTICULARS SHOULD BE INDEPENDENTLY VERIFIED BY PROSPECTIVE BUYERS OR TENANTS. NEITHER SEQUENCE (UK) LIMITED NOR ANY OF ITS EMPLOYEES OR AGENTS HAS ANY AUTHORITY TO MAKE OR GIVE ANY REPRESENTATION OR WARRANTY WHATEVER IN RELATION TO THIS PROPERTY.
Brochures
PDF Property ParticularsFull Details- COUNCIL TAXA payment made to your local authority in order to pay for local services like schools, libraries, and refuse collection. The amount you pay depends on the value of the property.Read more about council Tax in our glossary page.
- Band: DELETED
- PARKINGDetails of how and where vehicles can be parked, and any associated costs.Read more about parking in our glossary page.
- Ask agent
- GARDENA property has access to an outdoor space, which could be private or shared.
- Ask agent
- ACCESSIBILITYHow a property has been adapted to meet the needs of vulnerable or disabled individuals.Read more about accessibility in our glossary page.
- Ask agent
Energy performance certificate - ask agent
Low Road, Harwich
Add an important place to see how long it'd take to get there from our property listings.
__mins driving to your place
Get an instant, personalised result:
- Show sellers you’re serious
- Secure viewings faster with agents
- No impact on your credit score


Affordability
Notes
Staying secure when looking for property
Ensure you're up to date with our latest advice on how to avoid fraud or scams when looking for property online.
Visit our security centre to find out moreDisclaimer - Property reference HAW110634. The information displayed about this property comprises a property advertisement. Rightmove.co.uk makes no warranty as to the accuracy or completeness of the advertisement or any linked or associated information, and Rightmove has no control over the content. This property advertisement does not constitute property particulars. The information is provided and maintained by William H. Brown, Harwich. Please contact the selling agent or developer directly to obtain any information which may be available under the terms of The Energy Performance of Buildings (Certificates and Inspections) (England and Wales) Regulations 2007 or the Home Report if in relation to a residential property in Scotland.
*This is the average speed from the provider with the fastest broadband package available at this postcode. The average speed displayed is based on the download speeds of at least 50% of customers at peak time (8pm to 10pm). Fibre/cable services at the postcode are subject to availability and may differ between properties within a postcode. Speeds can be affected by a range of technical and environmental factors. The speed at the property may be lower than that listed above. You can check the estimated speed and confirm availability to a property prior to purchasing on the broadband provider's website. Providers may increase charges. The information is provided and maintained by Decision Technologies Limited. **This is indicative only and based on a 2-person household with multiple devices and simultaneous usage. Broadband performance is affected by multiple factors including number of occupants and devices, simultaneous usage, router range etc. For more information speak to your broadband provider.
Map data ©OpenStreetMap contributors.





