
Winnington Road, Hampstead Garden Suburb, London, N2

- PROPERTY TYPE
Detached
- BEDROOMS
8
- BATHROOMS
9
- SIZE
12,820 sq ft
1,191 sq m
- TENUREDescribes how you own a property. There are different types of tenure - freehold, leasehold, and commonhold.Read more about tenure in our glossary page.
Freehold
Key features
- Planning consent for demolition and development
- Consent for c. 12,820 sq ft
- 0.45 acre plot (approx)
- Highly desirable location
- Large garden
- EPC Rating = F
Description
Description
Gaywoods is set on 0.45 acres, south-east facing plot with planning consent (25/2665/FUL) to demolish the existing house and construct a new 8 bedroom, state of the art mansion which would extend to circa 12,820sqft. The house is one of the few remaining properties of its type to qualify for such planning permission and would replace the existing 1960 house (2682 sqft / 249 sqm) which has been in the same family ownership since first construction. The proposed redevelopment would create a striking family home with the ability to create extensive leisure amenity to include private spa including a large swimming pool, gymnasium and media/home cinema.
The property is offered for sale as a development site with a guide price of £5,450,000, subject to contract and exclusive of any development costs.
The £12,300,000 figure quoted in this listing is provided strictly for illustrative purposes and represents an estimated total project cost, comprising the guide price for the property and indicative construction costs based on the existing planning permission.
No representation or warranty is given as to the accuracy or completeness of these cost estimates, and they should not be relied upon as a statement of fact. All figures are subject to change and may vary depending on specification, procurement route, market conditions, and other factors.
Prospective purchasers must rely on their own investigations and the advice of their professional advisers in respect of all aspects of the acquisition and proposed development.
NB. The images are computer generated to provide an indicative guide as to how the house could look. The house is not constructed and would allow an incoming buyer to work with their own contractors to personalise the specification and obtain formal HGS Trust consent which is required.
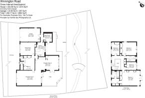
Proposed Accommodation & Features:
Large Entrance Hall
Formal Living Room
Formal Dining Room
Large Family Kitchen
Family Living Room
Home Office / Study
Principal Bedroom with Two Dressing Rooms and Bathroom
Seven Further Bedrooms Suites
Guest Cloakroom / WC
Swimming Pool
Gym/Studio
Jacuzzi / Sauna / Steam
Utility / Laundry Room
Garden to front and rear
Driveway with Parking
Garage
Location
Winnington Road is one of Hampstead’s most popular residential avenues and is located off Hampstead Lane (B519) at its southern junction and Lyttelton Road (A1) at its northern end. It is located close to London’s major road network, affording access to London’s Heathrow Airport, together with London Stansted, Luton & Gatwick. The property is within 500m of Hampstead Heath and Hampstead Golf Course is immediately opposite.
This highly sought after location has much to offer from the impressive shopping at Hampstead and Highgate Villages with their abundance of stylish boutiques, independent shops and artisan food stores to the idyllic green spaces of Hampstead Heath and Kenwood. The area also boasts an excellent selection of top-performing schools, many of which regularly achieve some of the best exam results in the country.
Square Footage: 12,820 sq ft
Acreage: 0.45 Acres
Brochures
Web DetailsParticulars- COUNCIL TAXA payment made to your local authority in order to pay for local services like schools, libraries, and refuse collection. The amount you pay depends on the value of the property.Read more about council Tax in our glossary page.
- Band: H
- PARKINGDetails of how and where vehicles can be parked, and any associated costs.Read more about parking in our glossary page.
- Yes
- GARDENA property has access to an outdoor space, which could be private or shared.
- Yes
- ACCESSIBILITYHow a property has been adapted to meet the needs of vulnerable or disabled individuals.Read more about accessibility in our glossary page.
- Ask agent
Winnington Road, Hampstead Garden Suburb, London, N2
Add an important place to see how long it'd take to get there from our property listings.
__mins driving to your place
Get an instant, personalised result:
- Show sellers you’re serious
- Secure viewings faster with agents
- No impact on your credit score
Affordability
Notes
Staying secure when looking for property
Ensure you're up to date with our latest advice on how to avoid fraud or scams when looking for property online.
Visit our security centre to find out moreDisclaimer - Property reference HAH260070. The information displayed about this property comprises a property advertisement. Rightmove.co.uk makes no warranty as to the accuracy or completeness of the advertisement or any linked or associated information, and Rightmove has no control over the content. This property advertisement does not constitute property particulars. The information is provided and maintained by Savills, Hampstead. Please contact the selling agent or developer directly to obtain any information which may be available under the terms of The Energy Performance of Buildings (Certificates and Inspections) (England and Wales) Regulations 2007 or the Home Report if in relation to a residential property in Scotland.
*This is the average speed from the provider with the fastest broadband package available at this postcode. The average speed displayed is based on the download speeds of at least 50% of customers at peak time (8pm to 10pm). Fibre/cable services at the postcode are subject to availability and may differ between properties within a postcode. Speeds can be affected by a range of technical and environmental factors. The speed at the property may be lower than that listed above. You can check the estimated speed and confirm availability to a property prior to purchasing on the broadband provider's website. Providers may increase charges. The information is provided and maintained by Decision Technologies Limited. **This is indicative only and based on a 2-person household with multiple devices and simultaneous usage. Broadband performance is affected by multiple factors including number of occupants and devices, simultaneous usage, router range etc. For more information speak to your broadband provider.
Map data ©OpenStreetMap contributors.





