Marlborough Avenue, Broomhill

- PROPERTY TYPE
Flat
- BEDROOMS
2
- BATHROOMS
1
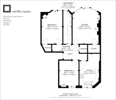
- SIZE
1,004 sq ft
93 sq m
- TENUREDescribes how you own a property. There are different types of tenure - freehold, leasehold, and commonhold.Read more about tenure in our glossary page.
Freehold
Description
Set on the oval with stunning residents' gardens to the front and a quiet no-through road, this property enjoys a peaceful, leafy setting whilst being just moments from the heart of Broomhill's vibrant shops, bars, and restaurants. Popular local spots such as Kothel are just across the road, perfect for a morning coffee. The area also benefits from excellent schools, nurseries, and convenient public transport links, making it ideal for families, professionals, and anyone seeking the best of West End living.
Located on the preferred first floor of a handsome red sandstone tenement, the flat opens into a welcoming entrance hallway with a useful storage cupboard. Gorgeous wooden flooring flows through the lounge and one of the bedrooms, adding warmth and character throughout.
The lounge is exceptional, measuring almost 19ft in length, with a bay window overlooking the residents' gardens and a feature open fireplace, creating a cosy and inviting atmosphere. A handy study cupboard off the lounge provides the perfect space for a home office.
The kitchen is fitted with a range of wall and floor units, complementing worktops, an integrated gas hob and oven, and plenty of space for a dining table and chairs, ideal for entertaining.
There are two well-proportioned double bedrooms, each retaining original fireplaces, adding charm and character to the accommodation. The bathroom is fresh and modern, featuring a white three-piece suite and an over-bath shower.
Further benefits include gas central heating, double glazing, a security-controlled entrance, and well-maintained communal areas. Free on-street parking is currently available for residents and visitors on Marlborough Avenue.
Broomhill is one of Glasgow's most sought-after West End neighbourhoods, renowned for its leafy streets, beautiful period architecture, and strong sense of community. Residents enjoy easy access to boutique shops, cafés, and restaurants, alongside parks and excellent transport links. With its combination of charm, convenience, and vibrant local life, Broomhill remains a highly desirable location for families, professionals, and anyone looking to experience the best of Glasgow's West End.
EER band C
Brochures
Home Report- COUNCIL TAXA payment made to your local authority in order to pay for local services like schools, libraries, and refuse collection. The amount you pay depends on the value of the property.Read more about council Tax in our glossary page.
- Ask agent
- PARKINGDetails of how and where vehicles can be parked, and any associated costs.Read more about parking in our glossary page.
- Ask agent
- GARDENA property has access to an outdoor space, which could be private or shared.
- Yes
- ACCESSIBILITYHow a property has been adapted to meet the needs of vulnerable or disabled individuals.Read more about accessibility in our glossary page.
- Ask agent
Energy performance certificate - ask agent
Marlborough Avenue, Broomhill
Add an important place to see how long it'd take to get there from our property listings.
__mins driving to your place
Get an instant, personalised result:
- Show sellers you’re serious
- Secure viewings faster with agents
- No impact on your credit score
Affordability
Notes
Staying secure when looking for property
Ensure you're up to date with our latest advice on how to avoid fraud or scams when looking for property online.
Visit our security centre to find out moreDisclaimer - Property reference 101153005701. The information displayed about this property comprises a property advertisement. Rightmove.co.uk makes no warranty as to the accuracy or completeness of the advertisement or any linked or associated information, and Rightmove has no control over the content. This property advertisement does not constitute property particulars. The information is provided and maintained by Vanilla Square, Glasgow. Please contact the selling agent or developer directly to obtain any information which may be available under the terms of The Energy Performance of Buildings (Certificates and Inspections) (England and Wales) Regulations 2007 or the Home Report if in relation to a residential property in Scotland.
*This is the average speed from the provider with the fastest broadband package available at this postcode. The average speed displayed is based on the download speeds of at least 50% of customers at peak time (8pm to 10pm). Fibre/cable services at the postcode are subject to availability and may differ between properties within a postcode. Speeds can be affected by a range of technical and environmental factors. The speed at the property may be lower than that listed above. You can check the estimated speed and confirm availability to a property prior to purchasing on the broadband provider's website. Providers may increase charges. The information is provided and maintained by Decision Technologies Limited. **This is indicative only and based on a 2-person household with multiple devices and simultaneous usage. Broadband performance is affected by multiple factors including number of occupants and devices, simultaneous usage, router range etc. For more information speak to your broadband provider.
Map data ©OpenStreetMap contributors.




