
Kingstonia Lodge, Quarry Moor Lane, HG4
- PROPERTY TYPE
Plot
- SIZE
Ask agent
Description
KEY FEATURES
• Residential Development Site
• Planning Permission
• 5 Dwellings
DESCRIPTION
The site currently comprises a detached 2 bed bungalow and detached single garage.
Planning Permission, Decision No: 25/03316/FUL, has been granted for demolition of existing bungalow and detached garage and construction of 5 dwellings including new vehicular access, parking, and associated gardens.
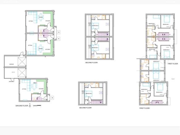
The developed site will comprise 5 townhouses - 2x 4 beds, 3x 3 beds, plus 3x garages. Total developed site GDV = 6,114 sq ft. See images for site plan, layouts, and elevations.
LOCATION
The site is strategically placed between two established roads in Ripon, close to a wide range of local amenities including a large supermarket, with the nearby A61 Ripon bypass providing easy access to the A1(M). The historic city centre, with its iconic cathedral, market square, wide range of shops, cafes, and restaurants is just a short distance away from the site. Schooling in the area is excellent for all ages and includes notably Ripon Grammar.
EPC Rating: E
Kingstonia Lodge, Quarry Moor Lane, HG4
NEAREST STATIONS
Distances are straight line measurements from the centre of the postcode- Knaresborough Station8.2 miles
Notes
Disclaimer - Property reference 28e1c173-505c-4e77-8481-2748c781fd44. The information displayed about this property comprises a property advertisement. Rightmove.co.uk makes no warranty as to the accuracy or completeness of the advertisement or any linked or associated information, and Rightmove has no control over the content. This property advertisement does not constitute property particulars. The information is provided and maintained by Verity Frearson, Harrogate. Please contact the selling agent or developer directly to obtain any information which may be available under the terms of The Energy Performance of Buildings (Certificates and Inspections) (England and Wales) Regulations 2007 or the Home Report if in relation to a residential property in Scotland.
Map data ©OpenStreetMap contributors.








