
Bracken Way, Harworth, Doncaster

- PROPERTY TYPE
Detached
- BEDROOMS
4
- BATHROOMS
2
- SIZE
Ask agent
Description
JUST LISTED………IMMACULATE 4 BEDROOM DETACHED FAMILY HOME / FANTASTIC ORANGERY OVERLOOKING LANDSCAPED REAR GARDEN / DOUBLE LENGTH DRIVEWAY & DETACHED GARAGE / ULTRA MODERN FITTED KITCHEN /LARGE SPACIOUS S LOUNGE / DOWNSTAIRS WC / EN-SUITE SHOWER ROOM / SECOND CONTEMPORARY SHOWER ROOM / GOOD ACCESS TO LOCAL AMENITIES INCLUDING THE A1 / VIEWING HIGHLY RECOMMENDED //
Viewing is highly recommended on this immaculate, extended ‘turn key style’ 4 bedroom detached family house. It has a gas central heating system, pvc double glazing and comprises: Entrance hall, ground floor wc, spacious full width lounge which opens into a large orangery, ultra modern fitted kitchen and a separate utility room. First floor landing, 4 bedrooms, the main bedroom has a contemporary en-suite shower room and plus a modern second shower room. Outside, to the rear is a double length driveway leading to a detached garage, with electric door, and a very smart modern landscaped rear garden. The location of the property means good access to amenities all round, including the A1 and local amenities within the village, including schools, bus routes etc. PRICED TO SELL.
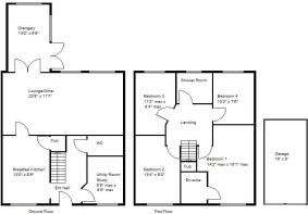
Accommodation - A composite type double glazed entrance door leads into the property’s entrance hall.
Entrance Hall - 3.96m max x 3.23m max (13'0" max x 10'7" max) - The entrance hall is all smartly finished and sets a theme for the remainder of the house. There is a staircase to the first floor accommodation, laminate flooring, ceiling light, central heating radiator and door to ground floor wc.
Ground Floor Wc - This is fitted with a modern 2 piece white suite comprising of a low flush wc, wash hand basin, pvc double glazed window, ceiling light, central heating radiator and a vinyl floor covering.
Lounge - 6.91m x 3.53m (22'8" x 11'7") - This is a good sized room, it extends the full width of the house, it has a two pvc double glazed windows, a further set of double doors which lead into the orangery, laminate flooring, central heating radiator and two central ceiling lights.
Orangery - 3.96m x 2.59m (13'0" x 8'6") - The orangery is a more recent addition which is all beautifully finished including a lantern style roof, inset spotlighting to the ceiling, laminate flooring, two pvc double glazed double opening doors which give access into the rear garden.
Ultra Modern Kitchen - 3.96m x 2.67m (13'0" x 8'9") - The kitchen is fitted with a range of modern high and low level units finished with a white handleless style cabinet door, a coordinating work surface and incorporates a five ring ceramic hob with glass splashback and an extractor hood above. There is double integrated oven with an integrated dishwasher and integrated fridge. There is a pvc double glazed window with an outlook to the front, a composite style single drainer sink with a chrome style tap over, it is all finished with a tiled floor covering, central heating radiator, spotlight fitment and a door to an understairs storage cupboard.
Utility Room - 2.67m x 2.26m (8'9" x 7'5") - This has matching kitchen cabinets, plumbing for an automatic washing machine, room for under counter fridge freezers etc. There is a continuation of the laminate flooring, central heating radiator, pvc double glazed window and a central ceiling light fitment.
First Floor Landing - This has an access point into the loft space, central heating radiator and doors leading to the bedrooms and bathroom.
Bedroom 1 - 4.32m max x 3.07m max (14'2" max x 10'1" max) - This is a large double bedroom which has a pvc double glazed window to the front, central heating radiator and a central ceiling light.
En-Suite Shower Room - This is all beautifully presented with a modern suite which comprises of a walk-in shower with rainfall shower head, wash basin set onto a vanity top and a low flush wc. There is tiling to the four walls, matching floor tiles, a contrasting black radiator, pvc double glazed window, extractor fan and inset spotlighting to a waterproof ceiling.
Bedroom 2 - 4.06m x 2.74m (13'4" x 9'0") - This has a pvc double glazed window to the front, central heating radiator, central ceiling light, built-in cupboard which houses a gas fired combination type boiler which supplies the domestic hot water and central heating systems.
Bedroom 3 - 3.40m x 2.54m (11'2" x 8'4") - This has a pvc double glazed window to the rear, central heating radiator and a central ceiling light.
Bedroom 4 - 3.15m x 2.29m (10'4" x 7'6") - This has a pvc double glazed window to the rear, central heating radiator and a central ceiling light.
Contemporary Shower Room - This has been remodelled over the years to create a beautiful contemporary space, it has a walk-in shower with modern waterproof walling, wash hand basin and a low flush wc set into bathroom furniture There is tiling, vinyl flooring, pvc double glazed window, extractor fan and a central heating radiator.
Outside - The property stands on a corner plot, to the front is mainly lawned, there is a paved pedestrian pathway to the front door.
Rear Garden - Again, this is all nicely enclosed, it has brick walling and fencing to the perimeters, it has all been hard landscaped and designed for easier and lower maintenance. It has a paved patio and sitting area with central artificial lawn, further shaped flower bed, a gate in the rear boundary gives access to a double length driveway which in turn leads to a detached brick garage approx 18’0 x 9’0 which has an electric roller shutter door, power and light laid on.
Agents Notes: - TENURE - LEASEHOLD - Terms of lease 999 years from 2007. Ground Rent £ 150.00 pa tbc.
SERVICES - All mains services are connected.
DOUBLE GLAZING - PVC double glazing, where stated. Age of units various.
HEATING - Gas radiator central heating. Age of boiler TBC.
COUNCIL TAX - Band C
BROADBAND - Ultrafast broadband is available with download speeds of up to 2000 mbps and upload speeds of up to 2000 mbps.
MOBILE COVERAGE - Coverage is available with EE, Three, 02 and Vodafone.
VIEWING - By prior telephone appointment with horton knights estate agents.
MEASUREMENTS - Please note all measurements are approximate and for guidance purposes only, with a six inch tolerance. Therefore please do NOT rely upon them for carpet measurements, furniture and the like. Similarly, the floor plan is designed as a visual reference and is NOT a scale drawing.
PROPERTY PARTICULARS - We endeavour to make our property particulars accurate and reliable, however if there is a point that is especially important to you, please contact ourselves prior to exchange of contracts, so that we may further clarify that point. We DO NOT give any warranty to the suitability of any part, including fixtures and fittings of this property, prospective buyers are kindly asked to take specific advice from their professional advisors.
OPENING HOURS - Monday - Friday 9:00 - 5:30 Saturday 9:00 - 3:00 Sunday
FREE VALUATIONS - If you need to sell a house then please take advantage of our FREE VALUATION service, contact our Doncaster Office for a prompt and efficient service.
Brochures
Bracken Way, Harworth, DoncasterBrochure- COUNCIL TAXA payment made to your local authority in order to pay for local services like schools, libraries, and refuse collection. The amount you pay depends on the value of the property.Read more about council Tax in our glossary page.
- Ask agent
- PARKINGDetails of how and where vehicles can be parked, and any associated costs.Read more about parking in our glossary page.
- Garage
- GARDENA property has access to an outdoor space, which could be private or shared.
- Yes
- ACCESSIBILITYHow a property has been adapted to meet the needs of vulnerable or disabled individuals.Read more about accessibility in our glossary page.
- Ask agent
Energy performance certificate - ask agent
Bracken Way, Harworth, Doncaster
Add an important place to see how long it'd take to get there from our property listings.
__mins driving to your place
Get an instant, personalised result:
- Show sellers you’re serious
- Secure viewings faster with agents
- No impact on your credit score



Affordability
Notes
Staying secure when looking for property
Ensure you're up to date with our latest advice on how to avoid fraud or scams when looking for property online.
Visit our security centre to find out moreDisclaimer - Property reference 34594340. The information displayed about this property comprises a property advertisement. Rightmove.co.uk makes no warranty as to the accuracy or completeness of the advertisement or any linked or associated information, and Rightmove has no control over the content. This property advertisement does not constitute property particulars. The information is provided and maintained by Horton Knights, Doncaster. Please contact the selling agent or developer directly to obtain any information which may be available under the terms of The Energy Performance of Buildings (Certificates and Inspections) (England and Wales) Regulations 2007 or the Home Report if in relation to a residential property in Scotland.
*This is the average speed from the provider with the fastest broadband package available at this postcode. The average speed displayed is based on the download speeds of at least 50% of customers at peak time (8pm to 10pm). Fibre/cable services at the postcode are subject to availability and may differ between properties within a postcode. Speeds can be affected by a range of technical and environmental factors. The speed at the property may be lower than that listed above. You can check the estimated speed and confirm availability to a property prior to purchasing on the broadband provider's website. Providers may increase charges. The information is provided and maintained by Decision Technologies Limited. **This is indicative only and based on a 2-person household with multiple devices and simultaneous usage. Broadband performance is affected by multiple factors including number of occupants and devices, simultaneous usage, router range etc. For more information speak to your broadband provider.
Map data ©OpenStreetMap contributors.





