
Main Street, Allexton, Rutland

- PROPERTY TYPE
Character Property
- BEDROOMS
5
- BATHROOMS
3
- SIZE
4,295 sq ft
399 sq m
- TENUREDescribes how you own a property. There are different types of tenure - freehold, leasehold, and commonhold.Read more about tenure in our glossary page.
Freehold
Key features
- Open Plan Living Kitchen
- Three Reception Rooms
- Boot Room & Utility Room
- Downstairs Cloakroom
- Five Bedrooms
- Three Bathrooms
- Approx. 3 Acre Plot, Mature Garden & Paddock
- One-Bedroom Annexe, Games Room
- Private Driveway
- Countryside Views
Description
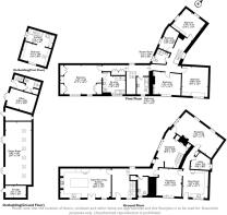
Ground Floor - This exceptional period residence, extending to over 4,000 ft² and set within beautifully landscaped grounds, offers elegant and versatile living space across the main house and a collection of charming, converted outbuildings.
A spacious entrance hall provides a wonderful introduction to the home, leading directly into the accommodation. To the left lies the expansive open-plan living kitchen, fitted with an extensive range of bespoke units, a selection of integrated appliances, and space for both a range-style cooker and an American-style fridge-freezer. A large central island with breakfast bar anchors the room, complemented by generous areas for soft seating and dining. French doors open directly to the gardens, seamlessly blending indoor and outdoor living.
An inner hallway leads to three characterful reception rooms, each with exposed beams and working fireplaces, creating warm and inviting spaces. Two of these rooms connect to the substantial boot room and adjoining utility area. The boot room itself is particularly spacious, featuring ample built-in storage and a stable door opening to the driveway and gardens. A downstairs cloakroom completes the ground floor accommodation.
First Floor - The home is served by two separate staircases, both rising to a spacious first-floor landing that connects all five bedrooms. Four of the bedrooms are generously proportioned doubles, and the floor is completed by three well-appointed bath/shower rooms.
Additional Accommodation - Beyond the main house, a range of beautifully converted traditional outbuildings offer superb additional space for living, leisure, and work. Closest to the house is the delightful two-storey one-bedroom annexe offering independent accommodation, comprising an entrance hall, kitchenette, bedroom, and shower room. Underneath the annexe is a bright office with French doors opening to the outside. Next to this is the large, vaulted games room with storerooms at either end.
Outside - Bridge House Farm enjoys an exceptional setting, with grounds that slope gently towards the Eyebrook and benefits from views over neighbouring woodland owned by a local Conservation Trust. A gravelled driveway offers ample off-road parking. The south-facing lawns are divided by mature hedging to provide privacy and lead to a summer house, paddock, and orchard. The gardens are richly planted, featuring a variety of mature shrubs and specimen trees that provide interest throughout the seasons.
The paddock, extending to approximately 2.25 acres, can be accessed directly from the garden or via Hallaton Road, making it ideal for equestrian or recreational use.
Location - Allexton is a small, picturesque village nestled in the Eyebrook Valley, just three miles from Uppingham and six miles from Rutland Water. Surrounded by rolling farmland and parkland, the village offers peaceful rural living with easy access to local amenities and superb schooling options, both state and private. Rutland Water provides a wide range of outdoor activities including sailing, cycling, and birdwatching. With charming ironstone cottages, historic architecture, and excellent transport links via the nearby A47 and Market Harborough station, Allexton blends country tranquillity with modern convenience.
Services & Council Tax - The property is offered to the market with mains water, electricity, private drainage and oil-fired central heating.
Harborough District Council – Tax Band G
Tenure - Freehold
Brochures
JS BrochureBrochure- COUNCIL TAXA payment made to your local authority in order to pay for local services like schools, libraries, and refuse collection. The amount you pay depends on the value of the property.Read more about council Tax in our glossary page.
- Band: G
- PARKINGDetails of how and where vehicles can be parked, and any associated costs.Read more about parking in our glossary page.
- Yes
- GARDENA property has access to an outdoor space, which could be private or shared.
- Yes
- ACCESSIBILITYHow a property has been adapted to meet the needs of vulnerable or disabled individuals.Read more about accessibility in our glossary page.
- Ask agent
Main Street, Allexton, Rutland
Add an important place to see how long it'd take to get there from our property listings.
__mins driving to your place
Get an instant, personalised result:
- Show sellers you’re serious
- Secure viewings faster with agents
- No impact on your credit score
Affordability
Notes
Staying secure when looking for property
Ensure you're up to date with our latest advice on how to avoid fraud or scams when looking for property online.
Visit our security centre to find out moreDisclaimer - Property reference 34593238. The information displayed about this property comprises a property advertisement. Rightmove.co.uk makes no warranty as to the accuracy or completeness of the advertisement or any linked or associated information, and Rightmove has no control over the content. This property advertisement does not constitute property particulars. The information is provided and maintained by James Sellicks Estate Agents, Oakham. Please contact the selling agent or developer directly to obtain any information which may be available under the terms of The Energy Performance of Buildings (Certificates and Inspections) (England and Wales) Regulations 2007 or the Home Report if in relation to a residential property in Scotland.
*This is the average speed from the provider with the fastest broadband package available at this postcode. The average speed displayed is based on the download speeds of at least 50% of customers at peak time (8pm to 10pm). Fibre/cable services at the postcode are subject to availability and may differ between properties within a postcode. Speeds can be affected by a range of technical and environmental factors. The speed at the property may be lower than that listed above. You can check the estimated speed and confirm availability to a property prior to purchasing on the broadband provider's website. Providers may increase charges. The information is provided and maintained by Decision Technologies Limited. **This is indicative only and based on a 2-person household with multiple devices and simultaneous usage. Broadband performance is affected by multiple factors including number of occupants and devices, simultaneous usage, router range etc. For more information speak to your broadband provider.
Map data ©OpenStreetMap contributors.







