Waterloo Street, Hove, BN3

- PROPERTY TYPE
Maisonette
- BEDROOMS
3
- BATHROOMS
2
- SIZE
1,841 sq ft
171 sq m
Key features
- OUTSTANDING GEORGIAN HOME
- LUXURY KITCHEN AND BATHROOMS
- WROUGHT IRON BALCONY
- WEST FACING ROOF TERRACE
- THREE DOUBLE BEDROOMS
- SHARE OF FREEHOLD
- HIGH CEILINGS, PERIOD COVING
- FLOOR TO CEILING SASH WINDOWS
- IMMACULATE CONDITION THROUGHOUT
- APPROX. 1 MIN WALK TO THE SEAFRONT
Description
EXCEPTIONAL GRADE II LISTED GEORGIAN MAISONETTE, WATERLOO STREET OFFERS DESIGN LED FINISHINGS, ROOF TERRACE AND CLOSE PROXIMITY TO AMENITIES AS WELL AS THE SEAFRONT.
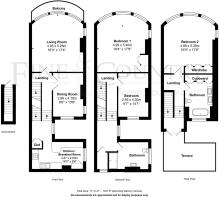
Waterloo Street, named to commemorate the great battle of 1815, was originally developed for the professionals who served the grand houses in the square. Today, this exceptional Grade II listed Georgian end of terrace maisonette, positioned in the very heart of the city, has been beautifully upgraded and is arranged over three floors with the additional benefit of a private roof terrace.
The stuccoed façade is classically elegant, with bow fronted bays and tall sash windows that give the building a wonderful sense of scale and presence. Internally, the home offers generous Georgian proportions and notably high ceilings, with an immaculate level of finish throughout. Period inspired detailing has been thoughtfully incorporated, including gilded cornicing to the principal rooms, selected Sherle Wagner Louis XVI doorknobs, Stephenson’s of Norwich ceiling roses and chandelier fittings.
The property is approached via its own private entrance, opening into a stairwell leading up to a first-floor landing with coat storage. The design makes clever use of the building’s shape, with the side elevation cutting in to create additional windows and draw natural light into the centre of the home.
The main reception space sits to the front of the house, where tall pocket sash windows open onto the front balcony and frame sea views. A Chesneys marble fireplace with gas fire provides an elegant focal point, topped by a gilded Overmantles mirror. The living area opens to the dining room, creating a superb arrangement for both day to day living and entertaining. The sitting room, dining room and landing are all finished with light wood flooring laid in Versailles panels.
To the rear, the kitchen is well equipped and thoughtfully finished, with a good range of fitted wooden cabinetry painted in cream, complemented by Oxford blue tiling and two exquisite Delft tiled panels. Granite stone composite worktops provide a durable finish, and integrated appliances include a gas fired Rangemaster stove, dishwasher, fridge freezer and an additional fridge. Underfloor heating provides further comfort.
On the second floor, a luxurious bathroom lies to the rear, with Portman cabinetry including a white wood vanity with marble top, a walk in shower, underfloor heating and excellent storage. A separate laundry closet sits to the side, with space and plumbing for a full sized washing machine and tumble dryer. The larger of the two bedrooms on this floor is generously proportioned. Sitting at the front of the property, finished with fitted wardrobes, a bay window and a stone Chesneys fireplace. The second bedroom is currently arranged as a study, offering excellent flexibility for home working or guest accommodation.
The third floor is dedicated to the principal suite. The bedroom occupies the front of the house with an elegant bow window, the original fireplace and a good range of fitted wardrobes. A separate bathroom provides further wardrobe and linen storage, and is beautifully appointed with a double sink marble topped vanity unit, a recessed free standing oval bath with marble surround and drencher shower over. It also has underfloor heating and plantation shutters to the west facing window.
A standout feature is the private roof terrace, accessed via French doors at the rear of the third floor. With fitted outdoor furniture and built in planters with an irrigation system, it offers a calm, secluded space for outdoor dining and relaxing, away from the energy of the city centre.
What our vendors say…
‘We’ve absolutely loved living here, being just a minute from the sea and able to enjoy long, easy walks along the seafront whenever we like. It’s such a special spot right in the heart of Brighton and Hove, with brilliant shops, restaurants and even our favourite local pub, the Southern Belle just steps away. The house itself has so much character, with its high ceilings and beautiful period features, but still feels relaxed and welcoming. The living space is perfect for hosting friends, especially with the light streaming in through the pocket windows. Having two outside spaces the balcony and the terrace has been a lovely place to unwind in the summer. It’s a home we’ll miss dearly.’
Waterloo Street is only moments from the seafront, and Hove Lawns along with the green open spaces of Brunswick Square, Palmeira Square and St. Ann’s Well Gardens. As well as the recently upgraded Hove Beach Park that offers padel, tennis as well as skate park, beach volleyball, bar/restaurant and cafes.
When it comes to shops, bars and restaurants there’s no shortage of choice as the amenities of Church Road, Western Road and Brighton’s famous Lanes are all only moments away. Offering everything from high street and independent stores to the unique coffee blends of local cafes, everything you need is right on your doorstep.
Plenty of bus services in the city provide access to all parts of Brighton and Hove as well as nearby outlying villages and up to Devil’s Dyke. Hove and Brighton train stations are both just over a mile away, providing convenient regular mainline links for commuters.
Situated in on street Parking Zone M
EPC rating - D
Council Tax - B
Broadband & Mobile Phone Coverage - Prospective buyers should check the Ofcom Checker website
Planning Permissions - Please check the local authority website for any planning permissions that may affect this property or properties close by.
TENURE & OUTGOINGS
Tenure: SHARE OF FREEHOLD
Years Remaining: 984 years
Term: 999 years commencing on and including 25 March 2011
Service Charge: 0
This is information has been provided by the seller. Please obtain verification via your legal representative.
EPC Rating: D
- COUNCIL TAXA payment made to your local authority in order to pay for local services like schools, libraries, and refuse collection. The amount you pay depends on the value of the property.Read more about council Tax in our glossary page.
- Band: B
- PARKINGDetails of how and where vehicles can be parked, and any associated costs.Read more about parking in our glossary page.
- Ask agent
- GARDENA property has access to an outdoor space, which could be private or shared.
- Terrace
- ACCESSIBILITYHow a property has been adapted to meet the needs of vulnerable or disabled individuals.Read more about accessibility in our glossary page.
- Ask agent
Energy performance certificate - ask agent
Waterloo Street, Hove, BN3
Add an important place to see how long it'd take to get there from our property listings.
__mins driving to your place
Get an instant, personalised result:
- Show sellers you’re serious
- Secure viewings faster with agents
- No impact on your credit score
Affordability
Notes
Staying secure when looking for property
Ensure you're up to date with our latest advice on how to avoid fraud or scams when looking for property online.
Visit our security centre to find out moreDisclaimer - Property reference 964297e2-084f-4744-9f74-14ddeb7bbc93. The information displayed about this property comprises a property advertisement. Rightmove.co.uk makes no warranty as to the accuracy or completeness of the advertisement or any linked or associated information, and Rightmove has no control over the content. This property advertisement does not constitute property particulars. The information is provided and maintained by Fine & Country, Hove. Please contact the selling agent or developer directly to obtain any information which may be available under the terms of The Energy Performance of Buildings (Certificates and Inspections) (England and Wales) Regulations 2007 or the Home Report if in relation to a residential property in Scotland.
*This is the average speed from the provider with the fastest broadband package available at this postcode. The average speed displayed is based on the download speeds of at least 50% of customers at peak time (8pm to 10pm). Fibre/cable services at the postcode are subject to availability and may differ between properties within a postcode. Speeds can be affected by a range of technical and environmental factors. The speed at the property may be lower than that listed above. You can check the estimated speed and confirm availability to a property prior to purchasing on the broadband provider's website. Providers may increase charges. The information is provided and maintained by Decision Technologies Limited. **This is indicative only and based on a 2-person household with multiple devices and simultaneous usage. Broadband performance is affected by multiple factors including number of occupants and devices, simultaneous usage, router range etc. For more information speak to your broadband provider.
Map data ©OpenStreetMap contributors.




