
Wood Street, Bushley, Tewkesbury, GL20

- PROPERTY TYPE
Detached
- BEDROOMS
5
- BATHROOMS
5
- SIZE
Ask agent
- TENUREDescribes how you own a property. There are different types of tenure - freehold, leasehold, and commonhold.Read more about tenure in our glossary page.
Freehold
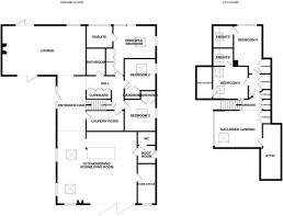
Key features
- 5 double bedrooms - 3 with ensuites
- Characterful, triple aspect lounge
- Large open plan kitchen/dining/sitting room
- Laundry room
- Boot room
- Galleried Landing
- Home Office
- Stunning views and gardens backing onto fields
- Air source heat pump and underfloor heating
Description
This is a unique and modern barn conversion unlike many you will have seen before, cleverly utilising the original footprint and maximising the stunning views that surround this contemporary home within this glorious location.
From the moment you enter the entrance hall with its vaulted ceiling, large floor to ceiling windows, which prevail throughout the property, you will not fail to appreciate the light and warmth provided by the efficient air source underfloor heating.
At the front of the property the original pigsty is now a characterful domed dual aspect lounge with a modern Dru Maestro gas fire and stunning views across Tewkesbury to Bredon Hill and the Cotswold Escarpment. The views stretch to include May Hill and even the Brecon beacons on clear days, with site of Tewkesbury Abbey and Gloucester Cathedral.
At the rear the open plan kitchen/dining/living room is the perfect family and entertaining space, with bi fold doors opening out to the garden. Further doors lead into a home office, another into the rear lobby with door out to the side garden and a guest wc; and a door into the laundry room.
The modern kitchen has a large central island housing the sink with Quooker boiling water tap, wine cooler, dishwasher and further base cupboards. Further wall and base cupboards house the American style fridge/freezer; electric hob and large electric fired Aga.
Also on the ground floor are three double bedrooms and a contemporary styled bathroom.
The dual aspect main bedroom benefits from fitted wardrobes and a large ensuite bath and shower room, with again stunning views.
On the first floor there is a large galleried landing useful as a further sitting or games area having access to the attic space and storage cupboards. There are a further two double bedrooms both benefitting from contemporary style ensuites.
Throughout this beautiful home has been finished to the highest standard from the remote controlled daylight and night time window blinds; thick insulation; air source heating; quality fittings and lots of storage cupboards and space.
Outside at the rear there is an attractive patio with walled border and steps leading up to the large lawns that back onto open fields providing a lovely countrywide view to the woods in the distance and being south west facing enjoy the sunshine and sunsets. At the front there is a further lawn and large gravel drive providing much parking for several vehicles.
Bushley Green is a sought after location up the hill above the village of Bushley. On the green is the village cricket square and pavilion set against a backdrop of woodland full of wild flowers. Further on through the hamlet is a popular independent school. In Bushley itself, there is an active community centre and the village church.
Located with easy access to both the M50 and M5 it is an ideal commuter base. Tewkesbury itself has a wealth of shop, leisure, health and education facilities situated centrally between Cheltenham (14m); Gloucester(15miles) Worcester (17miles)
Lounge
25' 6" x 15' 6" (7.77m x 4.72m)
Kitchen/dining/family room
26' 6" x 23' 3" (8.08m x 7.09m)
Laundry Room
12' 3" x 7' 4" (3.73m x 2.24m)
Home Office
13' 2" x 5' 11" (4.01m x 1.80m)
Boot Room
WC
Principle Bedroom
14' 0" x 10' 10" (4.27m x 3.30m)
Ensuite 1
8' 9" x 7' 6" (2.67m x 2.29m)
Bedroom 2
10' 5" x 10' 4" (3.17m x 3.15m)
Bedroom 3
10' 5" x 10' 4" (3.17m x 3.15m)
Main Bathroom
9' 1" x 6' 6" (2.77m x 1.98m)
Bedroom 4
15' 11" x 9' 4" (4.85m x 2.84m)
Ensuite
6' 11" x 6' 4" (2.11m x 1.93m)
Bedroom 5
11' 6" x 10' 11" (3.51m x 3.33m)
Ensuite 2
7' 0" x 7' 8" (2.13m x 2.34m)
Galleried Study area
14' 1" x 12' 7" (4.29m x 3.84m)
Brochures
Brochure 1- COUNCIL TAXA payment made to your local authority in order to pay for local services like schools, libraries, and refuse collection. The amount you pay depends on the value of the property.Read more about council Tax in our glossary page.
- Band: G
- PARKINGDetails of how and where vehicles can be parked, and any associated costs.Read more about parking in our glossary page.
- Driveway
- GARDENA property has access to an outdoor space, which could be private or shared.
- Yes
- ACCESSIBILITYHow a property has been adapted to meet the needs of vulnerable or disabled individuals.Read more about accessibility in our glossary page.
- Ask agent
Energy performance certificate - ask agent
Wood Street, Bushley, Tewkesbury, GL20
Add an important place to see how long it'd take to get there from our property listings.
__mins driving to your place
Get an instant, personalised result:
- Show sellers you’re serious
- Secure viewings faster with agents
- No impact on your credit score
Affordability
Notes
Staying secure when looking for property
Ensure you're up to date with our latest advice on how to avoid fraud or scams when looking for property online.
Visit our security centre to find out moreDisclaimer - Property reference 30156920. The information displayed about this property comprises a property advertisement. Rightmove.co.uk makes no warranty as to the accuracy or completeness of the advertisement or any linked or associated information, and Rightmove has no control over the content. This property advertisement does not constitute property particulars. The information is provided and maintained by Engall Castle, Tewkesbury. Please contact the selling agent or developer directly to obtain any information which may be available under the terms of The Energy Performance of Buildings (Certificates and Inspections) (England and Wales) Regulations 2007 or the Home Report if in relation to a residential property in Scotland.
*This is the average speed from the provider with the fastest broadband package available at this postcode. The average speed displayed is based on the download speeds of at least 50% of customers at peak time (8pm to 10pm). Fibre/cable services at the postcode are subject to availability and may differ between properties within a postcode. Speeds can be affected by a range of technical and environmental factors. The speed at the property may be lower than that listed above. You can check the estimated speed and confirm availability to a property prior to purchasing on the broadband provider's website. Providers may increase charges. The information is provided and maintained by Decision Technologies Limited. **This is indicative only and based on a 2-person household with multiple devices and simultaneous usage. Broadband performance is affected by multiple factors including number of occupants and devices, simultaneous usage, router range etc. For more information speak to your broadband provider.
Map data ©OpenStreetMap contributors.





