
Great Cornbow, Halesowen
- PROPERTY TYPE
Residential Development
- SIZE
Ask agent
Description
The property occupies a highly prominent and strategic position, located between Halesowen’s pedestrianised retail core and the surrounding ring road, providing excellent accessibility, visibility, and connectivity.
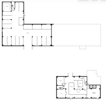
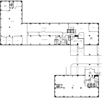
The site benefits from prior notification approval (Ref: P25/0468/PN3MA) for conversion from commercial use to residential, allowing for the creation of 90 apartments within the existing structure.
"The Dudley Metropolitan Borough Council hereby determines in accordance with Part 3 of
Schedule 2 to the Town & Country Planning (General Permitted Development) Order 2015 that
prior approval of the Local Planning Authority is REQUIRED AND IS APPROVED for the above
described development subject to conditions"
Previously utilised as office accommodation, the building has been comprehensively prepared for redevelopment, with internal services removed and asbestos remediation completed.
This presents a rare opportunity for developers to deliver a substantial residential scheme in a town centre location, with scope for a range of end uses including private apartments, build-to-rent, or specialist accommodation such as retirement or extra care living.
Prior Notification Consent - Application reference number
P25/0468/PN3MA
Prior Notification under Part 3 of the Town and Country Planning (GPDO) 2015 as amended for change of use from Commercial, Business and Service (Use Class E) to Dwellinghouses (Use Class C3) to convert the existing building to comprise of 90 no. residential units
Official copies of the proposed plans are available on request.
Brochures
Great Cornbow, HalesowenBrochureGreat Cornbow, Halesowen
NEAREST STATIONS
Distances are straight line measurements from the centre of the postcode- Old Hill Station1.6 miles
- Rowley Regis Station2.1 miles
- Cradley Heath Station2.4 miles
About Abode, Staffordshire & Derbyshire
Racecourse Chambers Town Meadows way Uttoxeter Staffordshire ST14 8EW


Notes
Disclaimer - Property reference 34595651. The information displayed about this property comprises a property advertisement. Rightmove.co.uk makes no warranty as to the accuracy or completeness of the advertisement or any linked or associated information, and Rightmove has no control over the content. This property advertisement does not constitute property particulars. The information is provided and maintained by Abode, Staffordshire & Derbyshire. Please contact the selling agent or developer directly to obtain any information which may be available under the terms of The Energy Performance of Buildings (Certificates and Inspections) (England and Wales) Regulations 2007 or the Home Report if in relation to a residential property in Scotland.
Map data ©OpenStreetMap contributors.






