
Albert Road, Queens Park, Glasgow

- PROPERTY TYPE
Apartment
- BEDROOMS
4
- BATHROOMS
1
- SIZE
Ask agent
- TENUREDescribes how you own a property. There are different types of tenure - freehold, leasehold, and commonhold.Read more about tenure in our glossary page.
Freehold
Description
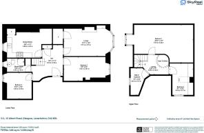
This outstanding four bedroom duplex flat occupies the top floor of a traditional blonde sandstone tenement and offers an impressive amount of space, character and flexibility.
The accommodation on the lower level is accessed via a generous reception hallway with excellent storage. The bay windowed lounge sits to the front and enjoys superb natural light, generous proportions and attractive period detailing. To the rear, the large dining kitchen provides an ideal everyday living and entertaining space, complete with ample room for a dining table. This level also includes two well sized bedrooms, one particularly spacious double and a further generous room, along with a modern shower room and additional shelving.
The upper floor is a real highlight. Bedroom one is exceptionally generous in scale, offering a bright and versatile space. A further bedroom is also located on this level, along with a useful landing area and a large walk in cupboard providing excellent storage options. A unique feature in the property is the upper level opening overlooking the floor below, positioned directly beneath a skylight, which brings additional natural light into the lower landing and enhances the feeling of openness between the two floors.
The property enjoys a superb position right beside Queen’s Park, one of Glasgow’s most desirable and vibrant Southside neighbourhoods. The area offers an excellent mix of cafés, restaurants, independent shops and everyday amenities along Victoria Road and Pollokshaws Road. Queen’s Park itself provides beautiful green space, walking routes and leisure facilities just moments from the doorstep. Transport links are also excellent, with Queen’s Park train stations within easy reach, offering quick and direct access to Glasgow City Centre.
EPC Rating: C
Council Tax Band: D
- COUNCIL TAXA payment made to your local authority in order to pay for local services like schools, libraries, and refuse collection. The amount you pay depends on the value of the property.Read more about council Tax in our glossary page.
- Band: D
- PARKINGDetails of how and where vehicles can be parked, and any associated costs.Read more about parking in our glossary page.
- Ask agent
- GARDENA property has access to an outdoor space, which could be private or shared.
- Ask agent
- ACCESSIBILITYHow a property has been adapted to meet the needs of vulnerable or disabled individuals.Read more about accessibility in our glossary page.
- Ask agent
Albert Road, Queens Park, Glasgow
Add an important place to see how long it'd take to get there from our property listings.
__mins driving to your place
Affordability
Get an instant, personalised result:
- Show sellers you’re serious
- Secure viewings faster with agents
- No impact on your credit score
Notes
Staying secure when looking for property
Ensure you're up to date with our latest advice on how to avoid fraud or scams when looking for property online.
Visit our security centre to find out moreDisclaimer - Property reference SHA260241. The information displayed about this property comprises a property advertisement. Rightmove.co.uk makes no warranty as to the accuracy or completeness of the advertisement or any linked or associated information, and Rightmove has no control over the content. This property advertisement does not constitute property particulars. The information is provided and maintained by Rettie, Shawlands. Please contact the selling agent or developer directly to obtain any information which may be available under the terms of The Energy Performance of Buildings (Certificates and Inspections) (England and Wales) Regulations 2007 or the Home Report if in relation to a residential property in Scotland.
*This is the average speed from the provider with the fastest broadband package available at this postcode. The average speed displayed is based on the download speeds of at least 50% of customers at peak time (8pm to 10pm). Fibre/cable services at the postcode are subject to availability and may differ between properties within a postcode. Speeds can be affected by a range of technical and environmental factors. The speed at the property may be lower than that listed above. You can check the estimated speed and confirm availability to a property prior to purchasing on the broadband provider's website. Providers may increase charges. The information is provided and maintained by Decision Technologies Limited. **This is indicative only and based on a 2-person household with multiple devices and simultaneous usage. Broadband performance is affected by multiple factors including number of occupants and devices, simultaneous usage, router range etc. For more information speak to your broadband provider.
Map data ©OpenStreetMap contributors.







