Woodlands Drive, Woodlands, Glasgow, G4

Letting details
- Let available date:
- 17/06/2026
- Deposit:
- £4,500A deposit provides security for a landlord against damage, or unpaid rent by a tenant.Read more about deposit in our glossary page.
- Min. Tenancy:
- Ask agent How long the landlord offers to let the property for.Read more about tenancy length in our glossary page.
- Furnish type:
- Furnished
- Council Tax:
- Ask agent
- PROPERTY TYPE
Flat
- BEDROOMS
4
- BATHROOMS
1
- SIZE
Ask agent
Key features
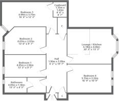
- 4 Double Bedrooms
- Separate Lounge
- West End Location
- HMO Approved
- Student Accomidation
- Close to Glasgow Uni
Description
The accommodation comprises a welcoming hallway leading to four generously proportioned double bedrooms, all fully furnished. The bright and spacious open-plan living and kitchen area features a dining table and chairs, breakfast bar, and comfortable seating, making it ideal for both relaxing and entertaining. The modern fitted kitchen offers ample storage along with an integrated hob and oven.
The main bathroom is fitted with a contemporary three-piece suite, including a shower over the bath, wash hand basin, and WC. The property has also been freshly decorated throughout.
Further benefits include gas central heating, an HMO licence, and a highly convenient location close to Glasgow University.
Woodlands Drive is ideally situated in Glasgow’s sought-after West End, positioned between the City Centre and the University of Glasgow, with a wide range of local amenities nearby.
The property is available from mid June 2026. Please submit all viewing requests online, and a member of our team will be in touch. EPC rating: C. Landlord Registration Number: 299846/260/07491.
- COUNCIL TAXA payment made to your local authority in order to pay for local services like schools, libraries, and refuse collection. The amount you pay depends on the value of the property.Read more about council Tax in our glossary page.
- Band: D
- PARKINGDetails of how and where vehicles can be parked, and any associated costs.Read more about parking in our glossary page.
- On street
- GARDENA property has access to an outdoor space, which could be private or shared.
- Private garden
- ACCESSIBILITYHow a property has been adapted to meet the needs of vulnerable or disabled individuals.Read more about accessibility in our glossary page.
- Ask agent
Woodlands Drive, Woodlands, Glasgow, G4
Add an important place to see how long it'd take to get there from our property listings.
__mins driving to your place



Notes
Staying secure when looking for property
Ensure you're up to date with our latest advice on how to avoid fraud or scams when looking for property online.
Visit our security centre to find out moreDisclaimer - Property reference P18. The information displayed about this property comprises a property advertisement. Rightmove.co.uk makes no warranty as to the accuracy or completeness of the advertisement or any linked or associated information, and Rightmove has no control over the content. This property advertisement does not constitute property particulars. The information is provided and maintained by CAIRN LETTING & ESTATE AGENCY, Glasgow. Please contact the selling agent or developer directly to obtain any information which may be available under the terms of The Energy Performance of Buildings (Certificates and Inspections) (England and Wales) Regulations 2007 or the Home Report if in relation to a residential property in Scotland.
*This is the average speed from the provider with the fastest broadband package available at this postcode. The average speed displayed is based on the download speeds of at least 50% of customers at peak time (8pm to 10pm). Fibre/cable services at the postcode are subject to availability and may differ between properties within a postcode. Speeds can be affected by a range of technical and environmental factors. The speed at the property may be lower than that listed above. You can check the estimated speed and confirm availability to a property prior to purchasing on the broadband provider's website. Providers may increase charges. The information is provided and maintained by Decision Technologies Limited. **This is indicative only and based on a 2-person household with multiple devices and simultaneous usage. Broadband performance is affected by multiple factors including number of occupants and devices, simultaneous usage, router range etc. For more information speak to your broadband provider.
Map data ©OpenStreetMap contributors.




