
Wilkin Drive, Tiptree, Colchester

- PROPERTY TYPE
Terraced
- BEDROOMS
4
- BATHROOMS
2
- SIZE
Ask agent
- TENUREDescribes how you own a property. There are different types of tenure - freehold, leasehold, and commonhold.Read more about tenure in our glossary page.
Freehold
Key features
- FOUR BEDROOMS
- EN-SUITE SHOWER ROOM
- FAMILY BATHROOM
- LOUNGE
- DINING ROOM
- FITTED KITCHEN
- CLOAKROOM
- CONSERVATORY
- GAS CENTRAL HEATING
- NO CJAIN
Description
We are delighted to offer this Four bedroom family home benefiting from an En-Suite shower room to the principle bedroom, garage and driveway and enclosed rear garden. NO CHAIN!!!
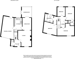
ENTRANCE HALL Stairs to first floor, radiator.
CLOAKROOM Low level WC, wash basin, radiator, obscure double glazed window to front.
LOUNGE 14' 5" x 12' 5" (4.39m x 3.78m) Double glazed window to front, two radiators, electric fire, archway through to dining room.
DINING ROOM 11' 2" x 8' 1" (3.4m x 2.46m) Double glazed French doors to rear, radiator.
CONSERVATORY 9' 8" x 8' 6" (2.95m x 2.59m) Double glazed windows, French doors to garden.
KITCHEN 11' 2" x 7' 2" (3.4m x 2.18m) One and a half bowl single drainer sink unit with cupboards under, roll top work surfaces, built in oven, hob and extractor fan, space for washing machine and fridge freezer, radiator, wall mounted gas boiler concealed in cupboard space, double glazed window to rear, door to garage.
LANDING Access to loft space, radiator, airing cupboard.
BEDROOM ONE 12' 0" x 9' 10" (3.66m x 3m) Double glazed window to rear, radiator.
EN-SUITE SHOWER ROOM Tiled shower, low level WC, wash basin, radiator.
BEDROOM TWO 10' 7" x 10' 5" (3.23m x 3.18m) Double glazed window to front, radiator, built in mirrored wardrobes, access to second loft.
BEDROOM THREE 15' 7" x 11' 0" (4.75m x 3.35m) Double glazed window to front, fitted wardrobes and shelving, radiator.
BEDROOM FOUR 8' 7" x 6' 9" (2.62m x 2.06m) Double glazed window to rear, radiator.
BATHROOM White suite comprising of panelled bath with shower attachment and guard, low level WC, wash basin, radiator, obscure double glazed window to rear.
OUTSIDE To the front aspect there is a block paved driveway providing off road parking leading to garage with up and over door, personal door to garden, space for washing machine and tumble dryer.
Brochures
John Alexander - ...- COUNCIL TAXA payment made to your local authority in order to pay for local services like schools, libraries, and refuse collection. The amount you pay depends on the value of the property.Read more about council Tax in our glossary page.
- Ask agent
- PARKINGDetails of how and where vehicles can be parked, and any associated costs.Read more about parking in our glossary page.
- Garage,Off street
- GARDENA property has access to an outdoor space, which could be private or shared.
- Yes
- ACCESSIBILITYHow a property has been adapted to meet the needs of vulnerable or disabled individuals.Read more about accessibility in our glossary page.
- Ask agent
Energy performance certificate - ask agent
Wilkin Drive, Tiptree, Colchester
Add an important place to see how long it'd take to get there from our property listings.
__mins driving to your place
Get an instant, personalised result:
- Show sellers you’re serious
- Secure viewings faster with agents
- No impact on your credit score

Affordability
Notes
Staying secure when looking for property
Ensure you're up to date with our latest advice on how to avoid fraud or scams when looking for property online.
Visit our security centre to find out moreDisclaimer - Property reference 103646014624. The information displayed about this property comprises a property advertisement. Rightmove.co.uk makes no warranty as to the accuracy or completeness of the advertisement or any linked or associated information, and Rightmove has no control over the content. This property advertisement does not constitute property particulars. The information is provided and maintained by John Alexander Tiptree, Tiptree. Please contact the selling agent or developer directly to obtain any information which may be available under the terms of The Energy Performance of Buildings (Certificates and Inspections) (England and Wales) Regulations 2007 or the Home Report if in relation to a residential property in Scotland.
*This is the average speed from the provider with the fastest broadband package available at this postcode. The average speed displayed is based on the download speeds of at least 50% of customers at peak time (8pm to 10pm). Fibre/cable services at the postcode are subject to availability and may differ between properties within a postcode. Speeds can be affected by a range of technical and environmental factors. The speed at the property may be lower than that listed above. You can check the estimated speed and confirm availability to a property prior to purchasing on the broadband provider's website. Providers may increase charges. The information is provided and maintained by Decision Technologies Limited. **This is indicative only and based on a 2-person household with multiple devices and simultaneous usage. Broadband performance is affected by multiple factors including number of occupants and devices, simultaneous usage, router range etc. For more information speak to your broadband provider.
Map data ©OpenStreetMap contributors.





