St. Germain Street, KA5
Letting details
- Let available date:
- 19/04/2026
- Let type:
- Long term
- Furnish type:
- Unfurnished
- PROPERTY TYPE
Retail Property (high street)
- BATHROOMS
1
- SIZE
Ask agent
Key features
- Available for Immediate Let
- High-visibility frontage
- Large scale retail ground floor
- Professional Back-of-House:
- Multi Storage first floor rooms
- Extensive upper-level storage rooms
- Triple-Tiered storage rooms
- Prime Location with exceptional connectivity,
Description
Permitted & Prohibited Use Restrictions:
A wide range of retail and food uses will be considered, including hot food takeaway. However, the property is not available for use as a convenience store, grocery store, or off-licence (alcohol sales), as the landlord operates a similar business nearby
Key Property Features:
* Large-Scale Retail Floor: A spacious, open-plan ground floor with high-visibility frontage, ideal for extensive clothing racks, merchandise displays, and a seamless customer experience.
* Professional Back-of-House: Just past the shop floor, the property includes a dedicated kitchen and break area, providing essential facilities for staff.
* Ground Floor Annex: A secondary storage area located behind the retail space for rapid stock access.
* First Floor Rooms: Extensive upper-level storage rooms, offering substantial space for surplus inventory, seasonal stock, or a private office hub.
*Triple-Tiered Storage Solutions:Ground Floor Annex: Secondary storage located directly behind the main floor for quick stock replenishment.
*First Floor Multi-Room Storage: Extensive upper-level rooms providing massive capacity for seasonal inventory, surplus stock, or use as a private office hub.
*Prime Location: Exceptional connectivity, specifically its direct link to the M77 motorway, which bridges the gap between Catrine's local community and the major commercial hubs of Glasgow and Kilmarnock.
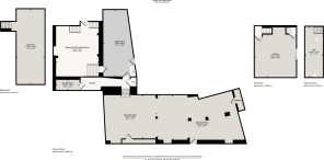
Room Sizes:
Main Shop Floor: 42'2 x 21'7"
1st Floor & Basement & 2nd Floor Entrance: 26'5 x 20'8"
Kitchen Area: 32'2" x 15'11"
Storage Room: 10'11 x 4'11"
Basement: 36'3" x 13'6"
3rd floor Room: 20'6" x 20'5"
Attic: 24'5" x 8'7"
St Germain Street is the bustling heart of Catrine, acting as the village's primary commercial lifeline. Its strategic location offers a perfect balance of local charm and accessibility, with the nearby M77 providing quick, direct links to Glasgow and Kilmarnock.
The street is defined by a steady flow of footfall and a community-focused atmosphere, anchored by essential local staples. Key businesses like the Premier Convenience Store, The Cotton Trail Cafe, and the Catrine Post Office ensure it remains a vital hub for both daily necessities and social connection.
Landlord Registration Number 574383/190/22081
Letting Agency Registration Number: LARN2512006.
For any further information or viewing requests please contact: Stefany Biernat
DW Shaw LTD
3, The Square
Cumnock
KA18 3BQ
St. Germain Street, KA5
NEAREST STATIONS
Distances are straight line measurements from the centre of the postcode- Auchinleck Station2.7 miles
Notes
Disclaimer - Property reference StGermainStreetCatrine. The information displayed about this property comprises a property advertisement. Rightmove.co.uk makes no warranty as to the accuracy or completeness of the advertisement or any linked or associated information, and Rightmove has no control over the content. This property advertisement does not constitute property particulars. The information is provided and maintained by DW Shaw, Cumnock. Please contact the selling agent or developer directly to obtain any information which may be available under the terms of The Energy Performance of Buildings (Certificates and Inspections) (England and Wales) Regulations 2007 or the Home Report if in relation to a residential property in Scotland.
Map data ©OpenStreetMap contributors.





