
Sunflower Close, Gorleston

- PROPERTY TYPE
Detached
- BEDROOMS
4
- BATHROOMS
3
- SIZE
Ask agent
- TENUREDescribes how you own a property. There are different types of tenure - freehold, leasehold, and commonhold.Read more about tenure in our glossary page.
Freehold
Key features
- Four bedroom detached family home
- Garage and driveway
- Offered with no onward chain
- Master bedroom offers en-suite shower room
- Enclosed rear garden
- Gas central heating
- Popular Badger build
- Cul-de-sac location
Description
Upon entering, you are welcomed by a bright entrance hall with stylish wood laminate flooring and a staircase rising to the first floor, setting the tone for the well-maintained interiors throughout. The generous lounge is filled with natural light from a front aspect window and features a charming fireplace, creating a warm and inviting space to relax. French doors lead through to the impressive open-plan kitchen/dining room, enhancing the sense of space and connectivity.
To the rear, the kitchen/dining area serves as the heart of the home, boasting a range of fitted units, integrated appliances including a gas hob and oven, and a central island ideal for both casual dining and entertaining. French doors open directly onto the garden, perfect for summer gatherings. A convenient ground floor WC completes the downstairs accommodation.
Upstairs, the property continues to impress with four well-proportioned bedrooms. The principal bedroom benefits from its own en-suite shower room, while the remaining bedrooms offer flexible space for family living, guests, or home working. A modern family bathroom features a stylish three-piece suite, including a bath with overhead shower and contemporary fittings.
Externally, the home offers excellent practicality and outdoor appeal. A paved driveway provides off-road parking and leads to a detached garage, while the enclosed rear garden is designed for low maintenance enjoyment, featuring a patio seating area, artificial lawn, and attractive raised borders—ideal for relaxing or entertaining.
This is a fantastic opportunity to secure a spacious and well-appointed family home in a desirable setting—early viewing is highly recommended to fully appreciate all that is on offer.
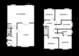
Entrance Hall
Composite entrance door giving access, wood laminate flooring, stairs leading to first floor, coved ceiling, double glazed window to side aspect, doors leading off to
Cloakroom
Low level w.c., hand wash basin, opaque double glazed window to side.
Lounge
18'6" x 11'4" (5.66m x 3.46m)
Double glazed window to front aspect, wood laminate flooring, coved ceiling, feature fireplace with decorative surround, French doors leading to
Kitchen / Diner
19'6" x 17'10" (5.96m x 5.45m)
Double glazed window to rear aspect, wood laminate flooring, coved ceiling, ceiling spotlights, French doors leading to the rear garden, range of wall and base storage units and drawers, worktops over, tiled splashbacks, inset sink and drainer with mixer tap, integrated appliances including a gas hob and oven, further space for additional appliances, central island with further storage, wall mounted combi boiler, storage cupboard, door back to hall.
First Floor Landing
Double glazed window to side aspect, access to loft, built-in storage cupboard, doors leading off to
Master Bedroom
10'9" x 10'7" (3.28m x 3.24m)
Double glazed window to front aspect, fitted carpet, radiator, coved ceiling, door to
Ensuite Shower Room
Low level w.c., hand wash basin, shower cubicle with mains wall mounted shower, vinyl flooring, part tiled walls, heated towel rail, opaque double glazed window to side.
Bedroom Two
11'7" x 8'5" (3.55m x 2.59m)
Double glazed window to rear aspect, fitted carpet, radiator, coved ceiling.
Bedroom Three
8'2" x 7'6" (2.49m x 2.31m)
Double glazed window to rear, fitted carpet, radiator, coved ceiling.
Bedroom Four
7'10" x 7'6" (2.41m x 2.31m)
Double glazed window to front aspect, fitted carpet, radiator, coved ceiling.
Bathroom
Low level w.c., hand wash basin set on a vanity unit with wall mounted mirrored cabinet over, panelled bath with shower over, heated towel rail, vinyl flooring, part tiled walls, opaque double glazed window to side.
Outside
To the side of the property there is a brick weave driveway leading to a detached garage providing off road parking. To the rear there is a generous sized enclosed garden with paved patio seating area, artificial lawn area, raised borders with mature shrubs and flower beds, pedestrian door giving access to garage, timber gate giving access to the front.
Disclaimer
Howards Estate Agents also offer a professional, ARLA accredited Lettings and Management Service. If you are considering renting your property in order to purchase, are looking at buy to let or would like a free review of your current portfolio then please call the Lettings Branch Manager on the number shown above.
Howards Estate Agents is the seller's agent for this property. Your conveyancer is legally responsible for ensuring any purchase agreement fully protects your position. We make detailed enquiries of the seller to ensure the information provided is as accurate as possible. Please inform us if you become aware of any information being inaccurate.
Brochures
Material InformationBrochure- COUNCIL TAXA payment made to your local authority in order to pay for local services like schools, libraries, and refuse collection. The amount you pay depends on the value of the property.Read more about council Tax in our glossary page.
- Ask agent
- PARKINGDetails of how and where vehicles can be parked, and any associated costs.Read more about parking in our glossary page.
- Yes
- GARDENA property has access to an outdoor space, which could be private or shared.
- Yes
- ACCESSIBILITYHow a property has been adapted to meet the needs of vulnerable or disabled individuals.Read more about accessibility in our glossary page.
- Ask agent
Sunflower Close, Gorleston
Add an important place to see how long it'd take to get there from our property listings.
__mins driving to your place
Get an instant, personalised result:
- Show sellers you’re serious
- Secure viewings faster with agents
- No impact on your credit score
Affordability
Notes
Staying secure when looking for property
Ensure you're up to date with our latest advice on how to avoid fraud or scams when looking for property online.
Visit our security centre to find out moreDisclaimer - Property reference 0382_HOW038206881. The information displayed about this property comprises a property advertisement. Rightmove.co.uk makes no warranty as to the accuracy or completeness of the advertisement or any linked or associated information, and Rightmove has no control over the content. This property advertisement does not constitute property particulars. The information is provided and maintained by Howards, Gorleston. Please contact the selling agent or developer directly to obtain any information which may be available under the terms of The Energy Performance of Buildings (Certificates and Inspections) (England and Wales) Regulations 2007 or the Home Report if in relation to a residential property in Scotland.
*This is the average speed from the provider with the fastest broadband package available at this postcode. The average speed displayed is based on the download speeds of at least 50% of customers at peak time (8pm to 10pm). Fibre/cable services at the postcode are subject to availability and may differ between properties within a postcode. Speeds can be affected by a range of technical and environmental factors. The speed at the property may be lower than that listed above. You can check the estimated speed and confirm availability to a property prior to purchasing on the broadband provider's website. Providers may increase charges. The information is provided and maintained by Decision Technologies Limited. **This is indicative only and based on a 2-person household with multiple devices and simultaneous usage. Broadband performance is affected by multiple factors including number of occupants and devices, simultaneous usage, router range etc. For more information speak to your broadband provider.
Map data ©OpenStreetMap contributors.





