
28 Pitairlie Road, Newbigging, Angus, DD5 3RH

- PROPERTY TYPE
Detached
- BEDROOMS
3
- BATHROOMS
1
- SIZE
1,399 sq ft
130 sq m
- TENUREDescribes how you own a property. There are different types of tenure - freehold, leasehold, and commonhold.Read more about tenure in our glossary page.
Freehold
Key features
- Close Proximity To Monifieth, Broughty Ferry and Monikie Country Park
- Peaceful Village Setting
- Three Double Bedrooms
- Excellent Local School Catchment Area
- Generous Ground Floor Accommodation
- Well-Maintained Private Garden
- Timber Shed, Garage & Summerhouse
Description
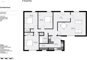
Positioned in the village of Newbigging, 28 Pitairlie Road offers a lovely sense of space both inside and out, with open rural surroundings adding to its appeal. The property is arranged on one level and combines generous public rooms with three bedrooms, making it a home that will suit a wide range of buyers.
The standout living space is the impressive main lounge and dining room, a particularly generous room with plenty of flexibility for both everyday living and entertaining. Its size allows for distinct seating and dining areas, while the stone feature wall and fireplace create a natural focal point and add character. Broad proportions and good natural light give the room a warm, welcoming feel, with plenty of scope for a new owner to personalise the space over time.
The kitchen sits to the rear and is well arranged with good storage, extensive worktop space including breakfast bar. It is a practical and comfortable room for day-to-day use, with a pleasant outlook over the garden and surrounding countryside, while the adjoining utility area adds further convenience.
The bedroom accommodation is well separated from the main living areas and includes three good-sized rooms, offering flexibility for family life, guests or home working. The bathroom is centrally placed and fitted with a three piece suite, complete with a shower over the bath.
Outside, the rear garden is neatly maintained and laid mainly to lawn, with established borders, summerhouse, a timber shed and a timber garage all adding to its appeal and practicality. It is an attractive, manageable outdoor space that complements the house well, while the wider setting adds to the overall sense of openness.
Curtains, blinds, carpets and light fittings to be included in the sale.
Brochures
Home Report- COUNCIL TAXA payment made to your local authority in order to pay for local services like schools, libraries, and refuse collection. The amount you pay depends on the value of the property.Read more about council Tax in our glossary page.
- Ask agent
- PARKINGDetails of how and where vehicles can be parked, and any associated costs.Read more about parking in our glossary page.
- Yes
- GARDENA property has access to an outdoor space, which could be private or shared.
- Private garden
- ACCESSIBILITYHow a property has been adapted to meet the needs of vulnerable or disabled individuals.Read more about accessibility in our glossary page.
- Ask agent
Energy performance certificate - ask agent
28 Pitairlie Road, Newbigging, Angus, DD5 3RH
Add an important place to see how long it'd take to get there from our property listings.
__mins driving to your place
Get an instant, personalised result:
- Show sellers you’re serious
- Secure viewings faster with agents
- No impact on your credit score
Affordability
Notes
Staying secure when looking for property
Ensure you're up to date with our latest advice on how to avoid fraud or scams when looking for property online.
Visit our security centre to find out moreDisclaimer - Property reference 3d1dbfda-9bcf-4d9d-98aa-e3105df1dde8. The information displayed about this property comprises a property advertisement. Rightmove.co.uk makes no warranty as to the accuracy or completeness of the advertisement or any linked or associated information, and Rightmove has no control over the content. This property advertisement does not constitute property particulars. The information is provided and maintained by Verdala, Dundee. Please contact the selling agent or developer directly to obtain any information which may be available under the terms of The Energy Performance of Buildings (Certificates and Inspections) (England and Wales) Regulations 2007 or the Home Report if in relation to a residential property in Scotland.
*This is the average speed from the provider with the fastest broadband package available at this postcode. The average speed displayed is based on the download speeds of at least 50% of customers at peak time (8pm to 10pm). Fibre/cable services at the postcode are subject to availability and may differ between properties within a postcode. Speeds can be affected by a range of technical and environmental factors. The speed at the property may be lower than that listed above. You can check the estimated speed and confirm availability to a property prior to purchasing on the broadband provider's website. Providers may increase charges. The information is provided and maintained by Decision Technologies Limited. **This is indicative only and based on a 2-person household with multiple devices and simultaneous usage. Broadband performance is affected by multiple factors including number of occupants and devices, simultaneous usage, router range etc. For more information speak to your broadband provider.
Map data ©OpenStreetMap contributors.






