
Daw Lane, Bentley, Doncaster

- PROPERTY TYPE
Terraced
- BEDROOMS
3
- BATHROOMS
1
- SIZE
Ask agent
- TENUREDescribes how you own a property. There are different types of tenure - freehold, leasehold, and commonhold.Read more about tenure in our glossary page.
Freehold
Description
A very spacious and well presented 3 double bedrooms terraced house on this popular well established roadway. Perfect for a first time buyer or investor, it has a gas central heating system via a modern combination type boiler. PVC double glazing and comprises: Entrance hall, 2 reception rooms, a large fitted kitchen and a ground floor wc. On the first floor there are 3 bedrooms and a large 3 piece bathroom. All newly fitted carpets fitted on the stairs and bedrooms. Outside to the rear there is an enclosed courtyard garden with store, plus access onto a rear lane. Well placed with access to local amenities, including a local supermarket, shops and schools. EARLY VIEWING RECOMMENDED.
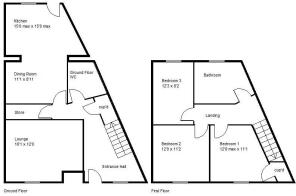
Accommodation - A new pvc door gives access through into the properties entrance hall.
Hallway - The hallway has laminate flooring, two large storage cupboards, central ceiling light, stairs leading to the first floor and doors off to the ground floor living accommodation.
Downstairs Wc - This comprises of a 2 piece white suite, low flush wc, wash hand basin, central heating radiator, vinyl style flooring and a central ceiling light.
Living Room - 5.052 x 3.556 (16'6" x 11'7") - A bright light spacious room, front facing with a pvc double glazed window, central heating radiator and central ceiling light.
Dining Kitchen - 4.57m max x 4.57m max (15'0" max x 15'0" max) - The extended kitchen comprises of a smart range of high and low base wall units, integrated fridge and freezer, space for a washing machine, a four ring ceramic hob with an electric oven and a complimentary stainless steel chimney style extractor hood, splashback tiling and a black marble effect rolled work surface over, 1½ bowl stainless steel sink with matching mixer tap.
The dining area, again this is of a good size and has a pvc double glazed window, double glazed door leading to the rear of the property, slate effect tiled floor, central heating radiator and a central ceiling light.
First Floor Landing - This has a cupboard and doors leading to the bedrooms and family bathroom.
Bathroom - 2.330 x 1.772 (7'7" x 5'9" ) - This comprises of a white 3 piece suite, low flush wc, wash hand basin and corner jacuzzi style bath, complimentary splashback tiling halfway on all four walls, laminate flooring, pvc double glazed window, central heating radiator and a central ceiling light.
Bedroom 1 - 4.090 x 3.562 (13'5" x 11'8") - This is a really good size room and has a storage cupboard which houses the combination type boiler, pvc double glazed window, central heating radiator and a central ceiling light.
Bedroom 2 Front - 3.56 x 3.410 (11'8" x 11'2") - This is a really good size bedroom, pvc double glazed, central heating radiator and a central ceiling light.
Bedroom 3 Rear - 3.751 x 2.513 (12'3" x 8'2") - A good size second double bedroom with a pvc double glazed, central heating radiator and a central ceiling light.
Outside - To the front of the property there is a walled garden area with timber gates.
Rear Garden - This has a small courtyard area with a seating area.
Agents Notes: - TENURE - FREEHOLD
SERVICES - All mains services are connected.
DOUBLE GLAZING - PVC double glazing, where stated. Age of units various.
HEATING - Gas radiator central heating. Age of boiler TBC.
COUNCIL TAX - Band A
BROADBAND - Ultrafast broadband is available with download speeds of up to 1800 mbps and upload speeds of up to 220 mbps.
MOBILE COVERAGE - Coverage is available with EE, Three, 02 and Vodafone.
VIEWING - By prior telephone appointment with horton knights estate agents.
MEASUREMENTS - Please note all measurements are approximate and for guidance purposes only, with a six inch tolerance. Therefore please do NOT rely upon them for carpet measurements, furniture and the like. Similarly, the floor plan is designed as a visual reference and is NOT a scale drawing.
PROPERTY PARTICULARS - We endeavour to make our property particulars accurate and reliable, however if there is a point that is especially important to you, please contact ourselves prior to exchange of contracts, so that we may further clarify that point. We DO NOT give any warranty to the suitability of any part, including fixtures and fittings of this property, prospective buyers are kindly asked to take specific advice from their professional advisors.
OPENING HOURS - Monday - Friday 9:00 - 5:30 Saturday 9:00 - 3:00 Sunday
INDEPENDENT MORTGAGE ADVICE - With so many mortgage options to choose from, how do you know your getting the best deal? Quite simply...YOU DON'T. Talk to an expert. We offer uncomplicated impartial advice. Call us today: .
FREE VALUATIONS - If you need to sell a house then please take advantage of our FREE VALUATION service, contact our Doncaster Office for a prompt and efficient service.
Brochures
Daw Lane, Bentley, DoncasterBrochure- COUNCIL TAXA payment made to your local authority in order to pay for local services like schools, libraries, and refuse collection. The amount you pay depends on the value of the property.Read more about council Tax in our glossary page.
- Band: A
- PARKINGDetails of how and where vehicles can be parked, and any associated costs.Read more about parking in our glossary page.
- Ask agent
- GARDENA property has access to an outdoor space, which could be private or shared.
- Yes
- ACCESSIBILITYHow a property has been adapted to meet the needs of vulnerable or disabled individuals.Read more about accessibility in our glossary page.
- Ask agent
Daw Lane, Bentley, Doncaster
Add an important place to see how long it'd take to get there from our property listings.
__mins driving to your place
Get an instant, personalised result:
- Show sellers you’re serious
- Secure viewings faster with agents
- No impact on your credit score



Affordability
Notes
Staying secure when looking for property
Ensure you're up to date with our latest advice on how to avoid fraud or scams when looking for property online.
Visit our security centre to find out moreDisclaimer - Property reference 34601059. The information displayed about this property comprises a property advertisement. Rightmove.co.uk makes no warranty as to the accuracy or completeness of the advertisement or any linked or associated information, and Rightmove has no control over the content. This property advertisement does not constitute property particulars. The information is provided and maintained by Horton Knights, Doncaster. Please contact the selling agent or developer directly to obtain any information which may be available under the terms of The Energy Performance of Buildings (Certificates and Inspections) (England and Wales) Regulations 2007 or the Home Report if in relation to a residential property in Scotland.
*This is the average speed from the provider with the fastest broadband package available at this postcode. The average speed displayed is based on the download speeds of at least 50% of customers at peak time (8pm to 10pm). Fibre/cable services at the postcode are subject to availability and may differ between properties within a postcode. Speeds can be affected by a range of technical and environmental factors. The speed at the property may be lower than that listed above. You can check the estimated speed and confirm availability to a property prior to purchasing on the broadband provider's website. Providers may increase charges. The information is provided and maintained by Decision Technologies Limited. **This is indicative only and based on a 2-person household with multiple devices and simultaneous usage. Broadband performance is affected by multiple factors including number of occupants and devices, simultaneous usage, router range etc. For more information speak to your broadband provider.
Map data ©OpenStreetMap contributors.





