Baldowrie Farm Cottage, Kettins, PH13

- PROPERTY TYPE
Cottage
- BEDROOMS
2
- BATHROOMS
1
- SIZE
697 sq ft
65 sq m
- TENUREDescribes how you own a property. There are different types of tenure - freehold, leasehold, and commonhold.Read more about tenure in our glossary page.
Freehold
Key features
- Kitchen
- Rural Location
- Beautiful Open Views
- Many Original Features
- Fully Enclosed Rear Garden
- Log Store
- Off Street Parking
- Full DG
- Oil CH
- Family Bathroom
Description
Externally the property has parking for 2 cars to the front and a private fully enclosed garden to the rear.
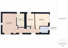
Lounge Diner - 5.36 x 3.83 m (17′7″ x 12′7″ ft)
A well-proportioned room with ample space for lounge and dining furniture, window to the front, decorative stone wall and open fire. Door to kitchen.
Kitchen - 3.77 x 2.12 m (12′4″ x 6′11″ ft)
Accessed from the lounge diner. A modern beech coloured kitchen with base and wall units and benefiting from an electric oven and hob with extractor above, free standing fridge, freezer, washing machine and dishwasher. Door to rear garden.
Bedroom One - 3.46 x 3.41 m (11′4″ x 11′2″ ft)
Good size room with side facing window. Ample space for free standing furniture.
Bedroom Two - 3.29 x 2.17 m (10′10″ x 7′1″ ft)
With rear facing window. Space for free standing furniture.
Bathroom - 2.39 x 1.77 m (7′10″ x 5′10″ ft)
This modern partially tiled shower room with white 3-piece suite, comprising W.C, wash hand basin and bath with overhead mains operated shower. Side facing window. Heated towel rail.
- COUNCIL TAXA payment made to your local authority in order to pay for local services like schools, libraries, and refuse collection. The amount you pay depends on the value of the property.Read more about council Tax in our glossary page.
- Ask agent
- PARKINGDetails of how and where vehicles can be parked, and any associated costs.Read more about parking in our glossary page.
- Yes
- GARDENA property has access to an outdoor space, which could be private or shared.
- Yes
- ACCESSIBILITYHow a property has been adapted to meet the needs of vulnerable or disabled individuals.Read more about accessibility in our glossary page.
- Ask agent
Energy performance certificate - ask agent
Baldowrie Farm Cottage, Kettins, PH13
Add an important place to see how long it'd take to get there from our property listings.
__mins driving to your place
Get an instant, personalised result:
- Show sellers you’re serious
- Secure viewings faster with agents
- No impact on your credit score
Affordability
Notes
Staying secure when looking for property
Ensure you're up to date with our latest advice on how to avoid fraud or scams when looking for property online.
Visit our security centre to find out moreDisclaimer - Property reference 668. The information displayed about this property comprises a property advertisement. Rightmove.co.uk makes no warranty as to the accuracy or completeness of the advertisement or any linked or associated information, and Rightmove has no control over the content. This property advertisement does not constitute property particulars. The information is provided and maintained by property@hodge, Blairgowrie. Please contact the selling agent or developer directly to obtain any information which may be available under the terms of The Energy Performance of Buildings (Certificates and Inspections) (England and Wales) Regulations 2007 or the Home Report if in relation to a residential property in Scotland.
*This is the average speed from the provider with the fastest broadband package available at this postcode. The average speed displayed is based on the download speeds of at least 50% of customers at peak time (8pm to 10pm). Fibre/cable services at the postcode are subject to availability and may differ between properties within a postcode. Speeds can be affected by a range of technical and environmental factors. The speed at the property may be lower than that listed above. You can check the estimated speed and confirm availability to a property prior to purchasing on the broadband provider's website. Providers may increase charges. The information is provided and maintained by Decision Technologies Limited. **This is indicative only and based on a 2-person household with multiple devices and simultaneous usage. Broadband performance is affected by multiple factors including number of occupants and devices, simultaneous usage, router range etc. For more information speak to your broadband provider.
Map data ©OpenStreetMap contributors.




