
Lyster Mews, Cobham, Surrey, Surrey, KT11

- PROPERTY TYPE
Apartment
- BEDROOMS
2
- BATHROOMS
2
- SIZE
Ask agent
- TENUREDescribes how you own a property. There are different types of tenure - freehold, leasehold, and commonhold.Read more about tenure in our glossary page.
Ask agent
Key features
- Two generous bedrooms
- Two bathrooms
- Close to local amenities
- Secure gated development
- Parking
- Access to loft space
- Second floor flat
- No onward chain
- Long Lease
Description
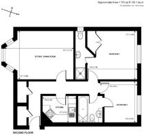
This bright and well-proportioned home offers a welcoming entrance hall leading through to a spacious open-plan living and dining area, finished in a neutral contemporary style and flooded with natural light from the bay window. The separate modern kitchen is well-equipped with a range of fitted units and integrated appliances, providing a practical yet stylish space.
The property comprises two well-sized bedrooms, including a generous principal bedroom, complemented by two bathrooms, one of which serves as an en-suite, offering flexibility for both homeowners and guests. A useful loft space provides additional storage, enhancing the practicality of the home.
Externally, the development benefits from secure gated access, well-maintained communal grounds, and allocated parking for residents. The location is particularly appealing, being within easy reach of Cobham High Street’s shops, cafés, and amenities.
Further benefits include a 96-year lease remaining and the advantage of being sold chain free, making it an ideal purchase for first-time buyers, downsizers, or investors alike.
Leasehold: 96 years remaining.
Service Charge: £1459.92 per annum
Ground Rent: £150 per annum
Brochures
Web Details- COUNCIL TAXA payment made to your local authority in order to pay for local services like schools, libraries, and refuse collection. The amount you pay depends on the value of the property.Read more about council Tax in our glossary page.
- Band: TBC
- PARKINGDetails of how and where vehicles can be parked, and any associated costs.Read more about parking in our glossary page.
- Allocated
- GARDENA property has access to an outdoor space, which could be private or shared.
- Ask agent
- ACCESSIBILITYHow a property has been adapted to meet the needs of vulnerable or disabled individuals.Read more about accessibility in our glossary page.
- Ask agent
Lyster Mews, Cobham, Surrey, Surrey, KT11
Add an important place to see how long it'd take to get there from our property listings.
__mins driving to your place
Get an instant, personalised result:
- Show sellers you’re serious
- Secure viewings faster with agents
- No impact on your credit score
Affordability
Notes
Staying secure when looking for property
Ensure you're up to date with our latest advice on how to avoid fraud or scams when looking for property online.
Visit our security centre to find out moreDisclaimer - Property reference COB260077. The information displayed about this property comprises a property advertisement. Rightmove.co.uk makes no warranty as to the accuracy or completeness of the advertisement or any linked or associated information, and Rightmove has no control over the content. This property advertisement does not constitute property particulars. The information is provided and maintained by Bourne Estate Agents, Cobham. Please contact the selling agent or developer directly to obtain any information which may be available under the terms of The Energy Performance of Buildings (Certificates and Inspections) (England and Wales) Regulations 2007 or the Home Report if in relation to a residential property in Scotland.
*This is the average speed from the provider with the fastest broadband package available at this postcode. The average speed displayed is based on the download speeds of at least 50% of customers at peak time (8pm to 10pm). Fibre/cable services at the postcode are subject to availability and may differ between properties within a postcode. Speeds can be affected by a range of technical and environmental factors. The speed at the property may be lower than that listed above. You can check the estimated speed and confirm availability to a property prior to purchasing on the broadband provider's website. Providers may increase charges. The information is provided and maintained by Decision Technologies Limited. **This is indicative only and based on a 2-person household with multiple devices and simultaneous usage. Broadband performance is affected by multiple factors including number of occupants and devices, simultaneous usage, router range etc. For more information speak to your broadband provider.
Map data ©OpenStreetMap contributors.






