
Clarendon Road, Worthing, BN14 8PU

- PROPERTY TYPE
Terraced
- BEDROOMS
4
- BATHROOMS
2
- SIZE
Ask agent
- TENUREDescribes how you own a property. There are different types of tenure - freehold, leasehold, and commonhold.Read more about tenure in our glossary page.
Ask agent
Key features
- Mid-Terraced Family Home
- Four Bedrooms
- Open Plan Kitchen/Diner
- Modern Fitted Kitchen
- Contemporary Bathroom Suite's
- Well Presented Throughout
- Close To Local Shops, Amenities & Train Station
- Off Street Parking
- Good School Catchment
- Vendor Suited
Description
We are delighted to offer for sale this well presented and spacious extended mid terraced home, situated in the highly sought after location of Broadwater close to local shops, amenities and train station. The property boasts four bedrooms, an extra office space, open plan kitchen diner, south facing living room, contemporary bathroom suite's, low maintenance rear garden, off road parking to the front and the vendor is suited with an onward purchase.
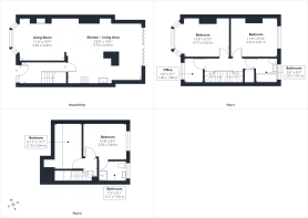
Internal A useful storm porch welcomes you at the front of the property, providing a practical space for storing shoes and hanging coats before entering the home. The ground floor has been thoughtfully opened up to create a flowing, open-plan layout while still maintaining a sense of distinct areas through clever design. At the front, the bay-fronted living room comfortably accommodates a full suite of furniture and benefits from a southerly aspect, allowing natural light to pour in throughout the day. To the rear, the property opens into a spacious kitchen/dining area, forming the true heart of the home and an ideal space for entertaining. The kitchen features a central island that subtly separates the dining area and is fitted with a range of sleek white gloss wall and base units. Beyond this, an extension provides an additional reception space, enhanced by a skylight and bi-folding doors that open out onto the rear garden. The first floor comprises two well-proportioned double bedrooms and a family bathroom, fitted with a contemporary three-piece suite including a bath with shower overhead, WC, and wash hand basin. This floor also benefits from a separate area that is perfectly suited for use as a home office. The second floor offers two further bedrooms, with the principal bedroom enjoying the added luxury of an en-suite, complete with a shower, WC, and wash hand basin.
External The front of the property offers ample off road parking via a block paved driveway with a dropped kerb. The rear garden has been cleverly landscaped to maximize the low maintenance lifestyle, being predominantly laid with faux lawn, planted boarders and a decked patio in which the bi folding doors open out onto.
Situated Positioned in this highly sought after and accessible location within easy reach of the A27 Upper Brighton Road and convenient access to neighbouring towns. Lyons Farm retail park, with its Sainsburys superstore and other outlets, is within half a mile, whilst Broadwater village centre is approximately three quarters of a mile away. The popular Bramber Primary School is only a short distance away.
Council Tax Band C
- COUNCIL TAXA payment made to your local authority in order to pay for local services like schools, libraries, and refuse collection. The amount you pay depends on the value of the property.Read more about council Tax in our glossary page.
- Band: C
- PARKINGDetails of how and where vehicles can be parked, and any associated costs.Read more about parking in our glossary page.
- Yes
- GARDENA property has access to an outdoor space, which could be private or shared.
- Yes
- ACCESSIBILITYHow a property has been adapted to meet the needs of vulnerable or disabled individuals.Read more about accessibility in our glossary page.
- Ask agent
Clarendon Road, Worthing, BN14 8PU
Add an important place to see how long it'd take to get there from our property listings.
__mins driving to your place
Get an instant, personalised result:
- Show sellers you’re serious
- Secure viewings faster with agents
- No impact on your credit score
Affordability
Notes
Staying secure when looking for property
Ensure you're up to date with our latest advice on how to avoid fraud or scams when looking for property online.
Visit our security centre to find out moreDisclaimer - Property reference S1688090. The information displayed about this property comprises a property advertisement. Rightmove.co.uk makes no warranty as to the accuracy or completeness of the advertisement or any linked or associated information, and Rightmove has no control over the content. This property advertisement does not constitute property particulars. The information is provided and maintained by Jacobs Steel, Worthing. Please contact the selling agent or developer directly to obtain any information which may be available under the terms of The Energy Performance of Buildings (Certificates and Inspections) (England and Wales) Regulations 2007 or the Home Report if in relation to a residential property in Scotland.
*This is the average speed from the provider with the fastest broadband package available at this postcode. The average speed displayed is based on the download speeds of at least 50% of customers at peak time (8pm to 10pm). Fibre/cable services at the postcode are subject to availability and may differ between properties within a postcode. Speeds can be affected by a range of technical and environmental factors. The speed at the property may be lower than that listed above. You can check the estimated speed and confirm availability to a property prior to purchasing on the broadband provider's website. Providers may increase charges. The information is provided and maintained by Decision Technologies Limited. **This is indicative only and based on a 2-person household with multiple devices and simultaneous usage. Broadband performance is affected by multiple factors including number of occupants and devices, simultaneous usage, router range etc. For more information speak to your broadband provider.
Map data ©OpenStreetMap contributors.






