Inworth Road, Kelvedon
- SIZE
Ask agent
- SECTOR
Storage facility to lease
Lease details
- Lease available date:
- Ask agent
Key features
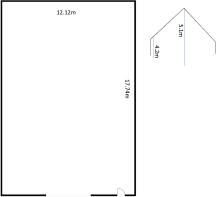
- 2,200 square feet
- Gated access
- Laser Security
- Water
- Electric
- CCTV
Description
Location
This unit is in a secure location with great access. The unit is closely linked to the A12 and only 6 miles from the A120.
Size
The Unit is Approximately 2,200 square feet with a roller shutter door and a personnel access door to the side.
The unit has just had a new concrete floor and sides put in (August last year).
Services
We understand that mains water and electricity are connected.
The unit is secure with gated access, laser security and CCTV.
Access Hours
The Unit will be accessible from 7am - 7pm (Monday - Friday) and 8am - 2pm (Saturday), unless otherwise arranged with the landlord.
Insurance
The Tenant is responsible for providing their own content's insurance.
Terms
To be agreed with the Landlord.
Notice
Whirledge & Nott does not have any authority to give representations or warranties in relation to the property. These particulars do not form part of any offer or contract. All descriptions, photographs and plans are for guidance only and should not be relied upon as statements or representations of fact. All measurements are approximate. No assumption should be made that the property has the necessary planning, building regulations or other consents. Whirledge & Nott has not carried out a survey nor tested any appliances, services or facilities. Purchasers must satisfy themselves by inspection or otherwise.
Viewing
Strictly by appointment Viewing of the property is entirely at the risk of the enquirer. Neither Whirledge & Nott nor the vendor accept any responsibility for any damage, injury or accident during viewing.
Brochures
Inworth Road, Kelvedon
NEAREST STATIONS
Distances are straight line measurements from the centre of the postcode- Kelvedon Station1.1 miles
- Witham Station4.0 miles
- Marks Tey Station4.4 miles
Notes
Disclaimer - Property reference 4434. The information displayed about this property comprises a property advertisement. Rightmove.co.uk makes no warranty as to the accuracy or completeness of the advertisement or any linked or associated information, and Rightmove has no control over the content. This property advertisement does not constitute property particulars. The information is provided and maintained by Whirledge and Nott, Commercial. Please contact the selling agent or developer directly to obtain any information which may be available under the terms of The Energy Performance of Buildings (Certificates and Inspections) (England and Wales) Regulations 2007 or the Home Report if in relation to a residential property in Scotland.
Map data ©OpenStreetMap contributors.





