
Beck Lodge, Park Gate, Southampton

Letting details
- Let available date:
- Ask agent
- Deposit:
- £2,307A deposit provides security for a landlord against damage, or unpaid rent by a tenant.Read more about deposit in our glossary page.
- Let type:
- Long term
- Furnish type:
- Unfurnished
- Council Tax:
- Ask agent
- PROPERTY TYPE
Retirement Property
- BEDROOMS
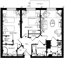
2
- BATHROOMS
2
- SIZE
776 sq ft
72 sq m
Key features
- ** Service Charges and Ground Rent are included in the rent **
- Modern fitted kitchen with integrated appliances
- Owners’ Lounge & coffee bar with regular social events
- Lodge Manager available 5 days a week
- 24 hour Careline system for safety and security
- Lift to all floors
- Beautifully landscaped gardens
- Owners’ private car park
- Guest Suite available for your friends and family to stay in
Description
Rent a BRAND NEW Churchill Living retirement apartment in Park Gate! Built by the award-winning Churchill Living, this stunning two bedroom BRAND NEW apartment is available to rent, on a long term basis, in this sought after development Beck Lodge.
Priced at £2,000, call today to book your appointment to view.
Photographs, images, and computer-generated visuals are indicative only and are potentially not of the specific property. They are intended to provide a general impression of the development or style and should not be relied upon as statements of fact.
Beck Lodge is a prestigious development of 46 one and two-bedroom retirement apartments found in Park Gate, Southampton.
Located in the borough of Fareham, Park Gate is situated close to Locks Heath and Segensworth close to the M27. The closest railway station is located in Swanwick with rail links all across the country. Local bus services operate to Fareham, Whiteley and Segensworth.
The area has a good selection of the amenities that you would expect to find locally including a Post Office, banks, independent traders, a delicatessen, doctors surgery and hairdressers. There is a Marks & Spencer food store opposite the development as well as a Sainsbury’s Local and Co-Op in the village centre.
The Lodge manager is on hand throughout the day to support the Owners and keep the development in perfect shape as well as arranging many regular events in the Owners’ Lounge from coffee mornings to games afternoons.
A Guest Suite is available for your friends and family to stay in. In addition, you are entitled to use the Guest Suites at all Churchill Living developments across the country. Prices are available from the Lodge Manager.
Beck Lodge has been designed with safety and security at the forefront. The apartment has an emergency Careline system installed, monitored by the onsite Lodge Manager during the day and 24 hours, 365 days a year by the Careline team. Careline integrated intruder alarm, secure video entry system and sophisticated fire and smoke detection systems throughout both the apartment and communal areas provide unrivalled peace of mind.
Beck Lodge is managed by the award-winning Churchill Estates Management, working closely with Churchill Living and Churchill Sales & Lettings to maintain the highest standards of maintenance and service for every lodge and owner.
Beck Lodge requires at least one apartment Owner to be over the age of 60 with any second Owner over the age of 55.
OVER 60's RETIREMENT APARTMENT
BRAND NEW APARTMENT
Council Tax Band C
Please check regarding Pets with Churchill Estates Management. Any consents given in relation to pets are subject to the terms of the lease and any further rules and regulations made by Churchill Estates Management.
INCLUDED IN RENT: Service charges include: Careline system, buildings insurance, water and sewerage rates, communal cleaning, utilities and maintenance, garden maintenance, lift maintenance, lodge manager and a contribution to the contingency fund.
Security Deposit
A security deposit equal to 5 week’s rent will be payable at the start of the tenancy. This covers damages or defaults on the part of the tenant during the tenancy. It will be reimbursed at the end of the tenancy subject to the details of the agreement and the findings of the inventory check out report.
Holding Deposit
A holding deposit equal to 1 weeks rent will be payable on acceptance of an application. This will be held and used towards the first months rent
Please note: The holding deposit will be withheld if the applicant(s) or any relevant person (including any guarantor(s)) withdraw from the tenancy, fail a Right-to-Rent check, provide materially significant false or misleading information, or fail to sign their tenancy agreement (and / or Deed of Guarantee) within 30 days (or other deadline as mutually agreed in writing).
Brochures
Beck Lodge, Park Gate, SouthamptonBrochure- COUNCIL TAXA payment made to your local authority in order to pay for local services like schools, libraries, and refuse collection. The amount you pay depends on the value of the property.Read more about council Tax in our glossary page.
- Ask agent
- PARKINGDetails of how and where vehicles can be parked, and any associated costs.Read more about parking in our glossary page.
- Yes
- GARDENA property has access to an outdoor space, which could be private or shared.
- Yes
- ACCESSIBILITYHow a property has been adapted to meet the needs of vulnerable or disabled individuals.Read more about accessibility in our glossary page.
- Ask agent
Energy performance certificate - ask agent
Beck Lodge, Park Gate, Southampton
Add an important place to see how long it'd take to get there from our property listings.
__mins driving to your place

Notes
Staying secure when looking for property
Ensure you're up to date with our latest advice on how to avoid fraud or scams when looking for property online.
Visit our security centre to find out moreDisclaimer - Property reference 34604505. The information displayed about this property comprises a property advertisement. Rightmove.co.uk makes no warranty as to the accuracy or completeness of the advertisement or any linked or associated information, and Rightmove has no control over the content. This property advertisement does not constitute property particulars. The information is provided and maintained by Churchill Sales & Lettings, Ringwood. Please contact the selling agent or developer directly to obtain any information which may be available under the terms of The Energy Performance of Buildings (Certificates and Inspections) (England and Wales) Regulations 2007 or the Home Report if in relation to a residential property in Scotland.
*This is the average speed from the provider with the fastest broadband package available at this postcode. The average speed displayed is based on the download speeds of at least 50% of customers at peak time (8pm to 10pm). Fibre/cable services at the postcode are subject to availability and may differ between properties within a postcode. Speeds can be affected by a range of technical and environmental factors. The speed at the property may be lower than that listed above. You can check the estimated speed and confirm availability to a property prior to purchasing on the broadband provider's website. Providers may increase charges. The information is provided and maintained by Decision Technologies Limited. **This is indicative only and based on a 2-person household with multiple devices and simultaneous usage. Broadband performance is affected by multiple factors including number of occupants and devices, simultaneous usage, router range etc. For more information speak to your broadband provider.
Map data ©OpenStreetMap contributors.





