
Station Road, Petersfield, GU32

- PROPERTY TYPE
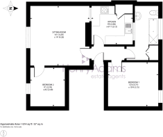
Flat
- BEDROOMS
2
- BATHROOMS
1
- SIZE
614 sq ft
57 sq m
Key features
- Desirable Town Centre Location
- Two Double Bedrooms
- Far Reaching Views to Butser Hill
- Walkable to Petersfield Mainline Station
- Spacious Living Area
- Garden to The Rear
- No Forward Chain
Description
Offered to the market with no onward chain, this well-presented property is ideally located in a highly desirable town centre position, within walking distance of Petersfield mainline station.
The accommodation is spacious and well laid out, benefiting from high ceilings which enhance the sense of light and space throughout. A generous living room is arranged separately from the kitchen, providing well-defined areas for everyday living and entertaining.
The property further offers two double bedrooms, both of good size, along with far-reaching views towards Butser Hill. To the rear is access to a garden area, adding useful outdoor space.
An excellent opportunity for first-time buyers, downsizers or investors, combining space, character and a central location with strong transport links.
EPC Rating: C
- COUNCIL TAXA payment made to your local authority in order to pay for local services like schools, libraries, and refuse collection. The amount you pay depends on the value of the property.Read more about council Tax in our glossary page.
- Band: B
- PARKINGDetails of how and where vehicles can be parked, and any associated costs.Read more about parking in our glossary page.
- Ask agent
- GARDENA property has access to an outdoor space, which could be private or shared.
- Private garden
- ACCESSIBILITYHow a property has been adapted to meet the needs of vulnerable or disabled individuals.Read more about accessibility in our glossary page.
- Ask agent
Station Road, Petersfield, GU32
Add an important place to see how long it'd take to get there from our property listings.
__mins driving to your place
Get an instant, personalised result:
- Show sellers you’re serious
- Secure viewings faster with agents
- No impact on your credit score
Affordability
Notes
Staying secure when looking for property
Ensure you're up to date with our latest advice on how to avoid fraud or scams when looking for property online.
Visit our security centre to find out moreDisclaimer - Property reference 28b6e4df-cf70-4743-a187-92faa3d7a168. The information displayed about this property comprises a property advertisement. Rightmove.co.uk makes no warranty as to the accuracy or completeness of the advertisement or any linked or associated information, and Rightmove has no control over the content. This property advertisement does not constitute property particulars. The information is provided and maintained by Henry Adams, Petersfield. Please contact the selling agent or developer directly to obtain any information which may be available under the terms of The Energy Performance of Buildings (Certificates and Inspections) (England and Wales) Regulations 2007 or the Home Report if in relation to a residential property in Scotland.
*This is the average speed from the provider with the fastest broadband package available at this postcode. The average speed displayed is based on the download speeds of at least 50% of customers at peak time (8pm to 10pm). Fibre/cable services at the postcode are subject to availability and may differ between properties within a postcode. Speeds can be affected by a range of technical and environmental factors. The speed at the property may be lower than that listed above. You can check the estimated speed and confirm availability to a property prior to purchasing on the broadband provider's website. Providers may increase charges. The information is provided and maintained by Decision Technologies Limited. **This is indicative only and based on a 2-person household with multiple devices and simultaneous usage. Broadband performance is affected by multiple factors including number of occupants and devices, simultaneous usage, router range etc. For more information speak to your broadband provider.
Map data ©OpenStreetMap contributors.





