Waterfield Meadows, North Walsham

- PROPERTY TYPE
Chalet
- BEDROOMS
2
- BATHROOMS
1
- SIZE
Ask agent
Key features
- Modern Chalet-Style House
- Within Development for Over 60’s
- Two/Three Bedroom Accommodation
- Modernised throughout
- Use of Communal Grounds, Laundry & Lounge
Description
The property provides versatile accommodation which is designed to be suitable as either a two or three bedroomed home, with both the dining room/bedroom and bathroom being situated on the ground floor. Other features include panelled electric heating, wood grain effect uPvc sealed unit double glazing, panel effect internal doors and a fitted kitchen built in oven and hob.
Each resident has a personal alarm system, which has a 24hr emergency link to a central desk. The residents have the use of the landscaped gardens and off road parking is also provided within the development. There is also a well-equipped residents lounge and laundry facilities are provided on site.
LOCATION North Walsham is a thriving North Norfolk market town offering a range of shopping facilities including a large Sainsbury's store, Waitrose, Lidl, all levels of schools including sixth form college, doctors' surgeries, restaurants and leisure facilities including the Victory swimming & fitness centre. The town also has a railway station providing regular services on the Norwich to Sheringham line. The sandy beaches of the North East Norfolk coast are about six miles from the town, the Norfolk Broads are about twelve miles to the south and the city of Norwich is approximately 17 miles distant.
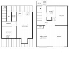
STORM PORCH Outside storage cupboard (also houses electricity meter), composite entrance door to:
ENTRANCE HALL Staircase to the first floor, laminate flooring, electric panel heater, wooden panelled doors leading to:
LIVING ROOM 14' 4" x 10' 10" (4.37m x 3.3m) Panelled electric heater, coved and textured ceiling, carpeted flooring, full fibre tv point, electric fireplace, uPvc sliding door accessing front patio area.
DINING ROOM/ GROUND FLOOR BEDROOM 14' 4" x 8' 7" (4.37m x 2.62m) Electric panelled heater, carpeted flooring, uPvc double glazed window, built in cupboard space, coved and textured ceiling.
KITCHEN 11' 9" x 7' 3" (3.58m x 2.21m) Fitted kitchen with modern slab wall and base units, built in oven and microwave, induction hob with extractor fan and black splashback, stainless steel double sink with mixer tap, tiled surround, wine fridge, built in fridge freezer, textured ceiling with L.E.D strip light.
SHOWER ROOM L.E.D light, vanity sink with mixer tap, electric shower with sliding door, close coupled wc, laminate flooring, electric towel heater, textured ceiling, tiled throughout.
FIRST FLOOR LANDING Electric panel heater, carpeted flooring, velux roof light, textured ceiling, large built in airing cupboard with instant hot water heater and shelving.
BEDROOM 1 9' 9" x 17' 5"min 20'5 max into bay (2.97m x 5.31m) Coved texture ceiling, electric panel heater, carpeted, built-in double wardrobe with panel effect double folding doors, window to rear, Velux roof light.
BEDROOM 2 9' 9" x 7' 7" (2.97m x 2.31m) Electric panel heater, Velux roof light, coved and textured ceiling.
CLOAKROOM Close coupled wc, sink vanity with mixer tap, laminate flooring, textured ceiling
OUTSIDE To the front and rear of the property are paved patio areas.
Residents' have use of the communal gardens and communal parking area.
FEATURES OF WATERFIELD MEADOWS Residents' Lounge
A spacious lounge is provided for the residents' use as and when they like. It is used as a meeting place, function room and games room. The lounge is heated, carpeted and furnished with kitchenette and WC facilities.
Laundry
The residents' lounge and laundry are normally open between 8:00am and 7:00pm and all residents have access via the electrically controlled door.
Personal Alarm System
Each resident has a personal alarm system, which is linked to a 24hr emergency link to a central desk.
Day to Day Maintenance
The day to day running of Waterfield Meadows is handled by a managing agent. The Waterfield Meadows residents collectively own the freehold of the site with each property owning a one 35th share of the freehold company, which is known as Nextfan Ltd.
Qualification
Purchasers at Waterfield Meadows must be of at least 60 years of age. If a couple are buying together, then one must be over 60, and the other over 55. Nextfan reserve the right to interview prospective purchasers.
The Service Charge
To cover the cost of the management service, residents pay a Service Charge which is assessed annually.
This includes:
- Buildings Insurance (but not contents)
- Gardening and Maintenance of Landscaped areas
- Provision for Re-decoration (external and communal areas)
- Window Cleaning
- Service Contracts (maintenance of personal alarms, laundry equipment)
- Sinking Fund for long term repairs and replacements (examples of which include the replacement windows and cavity wall insulation)
- Payment of general water rates on the former manager's flat, residents lounge and laundry.
After the end of each accounting year the amount of total expenditure for the last year is certified. In this way residents will know what has been spent and any adjustments are made in the following accounting year.
REFERRALS Acorn Properties are pleased to recommend a variety of local businesses to our customers.
In most instances, these recommendations are made with no financial benefit to Acorn Properties.
However, if we refer our clients to our trusted local Solicitors, Surveyors or Financial Services, Acorn Properties may receive a 'referral fee' from these local businesses.
If a referral to our trusted local solicitors is successful, Acorn Properties receive a referral fee of £100 - £180 following the successful completion of the relevant sale or purchase. There is no obligation for any of our clients to use our recommended solicitors, but we find the existing relationships we have with these firms can be beneficial to all parties.
For each successful Financial Services referral Acorn Properties will receive an introducer's fee which is between 25 - 30% of the net initial commission/broker fee received by the advisor. There is no obligation for our clients to use our recommended mortgage services.
For each successful Surveyors referral Acorn Properties will receive a fee of between £30 and £100. There is no obligation for our clients to use our recommended Surveyors.
- COUNCIL TAXA payment made to your local authority in order to pay for local services like schools, libraries, and refuse collection. The amount you pay depends on the value of the property.Read more about council Tax in our glossary page.
- Band: B
- PARKINGDetails of how and where vehicles can be parked, and any associated costs.Read more about parking in our glossary page.
- Off street
- GARDENA property has access to an outdoor space, which could be private or shared.
- Yes
- ACCESSIBILITYHow a property has been adapted to meet the needs of vulnerable or disabled individuals.Read more about accessibility in our glossary page.
- Ask agent
Waterfield Meadows, North Walsham
Add an important place to see how long it'd take to get there from our property listings.
__mins driving to your place
Get an instant, personalised result:
- Show sellers you’re serious
- Secure viewings faster with agents
- No impact on your credit score



Affordability
Notes
Staying secure when looking for property
Ensure you're up to date with our latest advice on how to avoid fraud or scams when looking for property online.
Visit our security centre to find out moreDisclaimer - Property reference 102987002821. The information displayed about this property comprises a property advertisement. Rightmove.co.uk makes no warranty as to the accuracy or completeness of the advertisement or any linked or associated information, and Rightmove has no control over the content. This property advertisement does not constitute property particulars. The information is provided and maintained by Acorn Properties, North Walsham. Please contact the selling agent or developer directly to obtain any information which may be available under the terms of The Energy Performance of Buildings (Certificates and Inspections) (England and Wales) Regulations 2007 or the Home Report if in relation to a residential property in Scotland.
*This is the average speed from the provider with the fastest broadband package available at this postcode. The average speed displayed is based on the download speeds of at least 50% of customers at peak time (8pm to 10pm). Fibre/cable services at the postcode are subject to availability and may differ between properties within a postcode. Speeds can be affected by a range of technical and environmental factors. The speed at the property may be lower than that listed above. You can check the estimated speed and confirm availability to a property prior to purchasing on the broadband provider's website. Providers may increase charges. The information is provided and maintained by Decision Technologies Limited. **This is indicative only and based on a 2-person household with multiple devices and simultaneous usage. Broadband performance is affected by multiple factors including number of occupants and devices, simultaneous usage, router range etc. For more information speak to your broadband provider.
Map data ©OpenStreetMap contributors.




