
Cleethorpe Road, Grimsby, N.E.Lincolnshire, DN31
- PROPERTY TYPE
Land
- SIZE
Ask agent
Key features
- Former nightclub/private members club with substantial accommodation
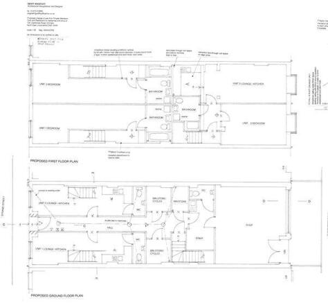
- Approx. 2,620 sq.ft. arranged over two floors
- Planning permission granted under ref: DM/0560/24/FUL
- Consent for shop and 3 residential units
- Prominent Cleethorpe Road frontage
- Area earmarked for redevelopment/regeneration
- Excellent opportunity for developers and investors
- For Sale by Modern Auction – T & C’s apply
- Subject to Reserve Price
- Buyers fees apply
Description
Step Inside:-
This is not a conventional home purchase, but a serious opportunity for those with vision. Formerly operating as a nightclub/private members club, the property now offers a substantial footprint arranged over two floors, with the existing layout presenting broad open-plan areas that lend themselves to comprehensive reconfiguration.
The accommodation currently extends to around 2,620 sq.ft. in total and includes a large principal ground floor space, additional store areas and first floor accommodation, offering the scale that many developers seek but seldom find in such a central location. Internally, the building is clearly in need of full refurbishment and redevelopment, however that is very much the appeal here: it is effectively a blank canvas for transformation.
Of particular note is the planning consent already secured under application reference DM/0560/24/FUL for change of use from private members club and restaurant to a shop and three residential units, together with associated internal and external works including a new shopfront. That planning permission was granted by North East Lincolnshire Council, subject to conditions, creating a ready-made route forward for purchasers looking to progress the scheme.
For builders and developers, the attraction lies in both the size and the direction of travel. Rather than beginning with a speculative concept, a buyer can acquire a building with a consented scheme already in place, allowing focus to shift toward delivery, cost planning and resale or retention strategy. The property’s town position and substantial internal proportions only strengthen that appeal.
Step Outside:-
From the street, the building occupies a prominent frontage along Cleethorpe Road, giving it strong visibility and a clear commercial presence. Its traditional façade sits within an established mixed-use parade, and the location feels well suited to the consented combination of retail at ground level with residential accommodation above.
The wider setting is also important. The property lies within an area that is earmarked for redevelopment and regeneration, which may further enhance long-term confidence in the location and future end values. For a buyer with foresight, this is the sort of asset that could be acquired now and repositioned to benefit from the ongoing evolution of the surrounding area.
Location:-
Cleethorpe Road occupies a convenient position close to Freeman Street, placing a range of amenities, transport connections and services within easy reach. This is an established urban setting with a mix of commercial and residential uses, making it a logical location for a mixed redevelopment scheme of this nature.
For developers, accessibility is always key, and this location offers straightforward access to the town centre, Freeman Street and the wider road network. The combination of central position, regeneration potential and granted planning permission makes this a noteworthy opportunity for those seeking a project with clear upside.
Auctioneer Comments:
This property is for sale by Modern Method of Auction allowing the buyer and seller to complete within a 56 Day Reservation Period. Interested parties’ personal data will be shared with the Auctioneer (iamsold Ltd).
If considering a mortgage, inspect and consider the property carefully with your lender before bidding. A Buyer Information Pack is provided, which you must view before bidding. The buyer is responsible for the Pack fee. For the most recent information on the Buyer Information Pack fee, please contact the iamsold team.
The buyer signs a Reservation Agreement and makes payment of a Non-Refundable Reservation Fee of 4.5% of the purchase price inc VAT, subject to a minimum of £6,600 inc. VAT. This Fee is paid to reserve the property to the buyer during the Reservation Period and is paid in addition to the purchase price. The Fee is considered within calculations for stamp duty.
Services may be recommended by the Agent/Auctioneer in which they will receive payment from the service provider if the service is taken. Payment varies but will be no more than £960 inc. VAT. These services are optional.
TO VIEW OR MAKE A BID – Contact DDM Residential Grimsby
Agents note to buyers
Prospective purchasers are advised that, in addition to the purchase price, further costs may be incurred when buying a property. These can include, but are not limited to, Stamp Duty Land Tax (SDLT), legal and conveyancing fees, survey costs, and mortgage arrangement fees. Buyers should ensure they seek appropriate financial advice and budget accordingly.
Brochures
ParticularsEnergy Performance Certificates
E.P.CCleethorpe Road, Grimsby, N.E.Lincolnshire, DN31
NEAREST STATIONS
Distances are straight line measurements from the centre of the postcode- Grimsby Docks Station0.2 miles
- New Clee Station0.5 miles
- Grimsby Town Station1.0 miles


Notes
Disclaimer - Property reference GRS260193. The information displayed about this property comprises a property advertisement. Rightmove.co.uk makes no warranty as to the accuracy or completeness of the advertisement or any linked or associated information, and Rightmove has no control over the content. This property advertisement does not constitute property particulars. The information is provided and maintained by DDM Residential, Grimsby. Please contact the selling agent or developer directly to obtain any information which may be available under the terms of The Energy Performance of Buildings (Certificates and Inspections) (England and Wales) Regulations 2007 or the Home Report if in relation to a residential property in Scotland.
Auction Fees: The purchase of this property may include associated fees not listed here, as it is to be sold via auction. To find out more about the fees associated with this property please call DDM Residential, Grimsby on 01472 404591.
*Guide Price: An indication of a seller's minimum expectation at auction and given as a Guide Price or a range of Guide Prices. This is not necessarily the figure a property will sell for and is subject to change prior to the auction.
Reserve Price: Each auction property will be subject to a Reserve Price below which the property cannot be sold at auction. Normally the Reserve Price will be set within the range of Guide Prices or no more than 10% above a single Guide Price.
Map data ©OpenStreetMap contributors.






