27 The Fells, Lennoxtown, G66 7ER

- PROPERTY TYPE
Detached
- BEDROOMS
4
- BATHROOMS
2
- SIZE
1,249 sq ft
116 sq m
- TENUREDescribes how you own a property. There are different types of tenure - freehold, leasehold, and commonhold.Read more about tenure in our glossary page.
Freehold
Description
This substantial detached villa is peacefully positioned within a well-established residential street at the foot of the Campsie Hills, enjoying superb open views across the surrounding countryside. Offering generous accommodation over two levels, the property represents an excellent opportunity for buyers seeking a spacious family home, with scope to upgrade and personalise to their own taste.
Set on a level plot, the house is surrounded by private, low-maintenance gardens to the front and rear. Its size, layout and enviable setting combine to create an ideal family home, with significant future potential.
Externally, the property is of traditional construction, finished in a mix of render and brick beneath a pitched tiled roof. To the front, a driveway leads to an internally accessed, extended, single-width garage, of double length. This, in turn, provides access to a covered carport and a useful rear parking or workshop area. The enclosed rear garden features a blend of patio and lawn, complemented by established planting and a timber summerhouse - an ideal space for both relaxing and entertaining while taking full advantage of the impressive views towards the Campsies.
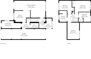
Internally, the accommodation is well laid out across two levels. The ground floor comprises a welcoming reception hallway, a bright front-facing lounge and a separate dining room. The kitchen is well-proportioned and fitted with a good range of storage units. An inner hallway leads to a convenient WC and utility room, and provides direct access to the garage.
Upstairs, the landing leads to four generously sized bedrooms and a family bathroom, complete with a three-piece suite. The bedrooms are bright and airy, with several enjoying open outlooks over the surrounding countryside.
Further features include gas central heating and double glazing. The integral garage offers excellent storage and, subject to the appropriate consents, could be converted into additional living space, as demonstrated in neighbouring properties.
Lennoxtown is a sought-after semi-rural village situated at the foot of the Campsie Fells, offering an attractive setting for family life. The village provides a range of local amenities including shops, cafés, healthcare facilities and schooling, while more extensive services can be found in nearby Kirkintilloch. Glasgow city centre is easily accessible by road, making this location ideal for those looking to enjoy a balance of countryside living and convenient city access.
EER Band - D
Local Area
Nestled at the foot of the Campsie Fells, Lennoxtown has a number of local shops and amenities. There are two local primary schools, with a further one in nearby Milton of Campsie. Secondary schooling can be found in Lenzie, Kirkintilloch and Kilsyth.
Lennoxtown is located approximately equidistant between the villages of Torrance and Strathblane and is surrounded by some beautiful countryside, offering a wealth of opportunity to explore and enjoy a generous choice of outdoor facilities and amenities, including walking, family cycling on the Strathkelvin railway path and other popular road cycling routes, horse riding, golf. There is also easy access to the Campsie Fells, Mugdock Country Park and Loch Lomond and The Trossachs National Park. Access to Glasgow's excellent motorway network is only a short drive away.
Brochures
Web Details- COUNCIL TAXA payment made to your local authority in order to pay for local services like schools, libraries, and refuse collection. The amount you pay depends on the value of the property.Read more about council Tax in our glossary page.
- Band: E
- PARKINGDetails of how and where vehicles can be parked, and any associated costs.Read more about parking in our glossary page.
- Garage
- GARDENA property has access to an outdoor space, which could be private or shared.
- Yes
- ACCESSIBILITYHow a property has been adapted to meet the needs of vulnerable or disabled individuals.Read more about accessibility in our glossary page.
- Ask agent
Energy performance certificate - ask agent
27 The Fells, Lennoxtown, G66 7ER
Add an important place to see how long it'd take to get there from our property listings.
__mins driving to your place
Get an instant, personalised result:
- Show sellers you’re serious
- Secure viewings faster with agents
- No impact on your credit score
Affordability
Notes
Staying secure when looking for property
Ensure you're up to date with our latest advice on how to avoid fraud or scams when looking for property online.
Visit our security centre to find out moreDisclaimer - Property reference BD4060. The information displayed about this property comprises a property advertisement. Rightmove.co.uk makes no warranty as to the accuracy or completeness of the advertisement or any linked or associated information, and Rightmove has no control over the content. This property advertisement does not constitute property particulars. The information is provided and maintained by Corum, Bearsden. Please contact the selling agent or developer directly to obtain any information which may be available under the terms of The Energy Performance of Buildings (Certificates and Inspections) (England and Wales) Regulations 2007 or the Home Report if in relation to a residential property in Scotland.
*This is the average speed from the provider with the fastest broadband package available at this postcode. The average speed displayed is based on the download speeds of at least 50% of customers at peak time (8pm to 10pm). Fibre/cable services at the postcode are subject to availability and may differ between properties within a postcode. Speeds can be affected by a range of technical and environmental factors. The speed at the property may be lower than that listed above. You can check the estimated speed and confirm availability to a property prior to purchasing on the broadband provider's website. Providers may increase charges. The information is provided and maintained by Decision Technologies Limited. **This is indicative only and based on a 2-person household with multiple devices and simultaneous usage. Broadband performance is affected by multiple factors including number of occupants and devices, simultaneous usage, router range etc. For more information speak to your broadband provider.
Map data ©OpenStreetMap contributors.







