St. James Road, WF4

- PROPERTY TYPE
Town House
- BEDROOMS
3
- BATHROOMS
1
- SIZE
Ask agent
Key features
- Three bedroom townhouse
- Car parking space
- EPC - B
- Council Tax Band - B
- Convenient commuter links with M1 and M62.
- Great local amenities
- South facing garden
- Well presented
- Flooring throughout
- Integrated appliances includes dishwasher and fridge freezer
Description
The home is ideally located being five minutes from junction 39 of the M1 leading to the M62 at junction 29. Wakefield train station is only a few miles away and provides access to Leeds and other major towns and cities.
Wakefield offers a wide range of shops, retail parks and leisure facilities. There is a local primary school within walking distance of the development.
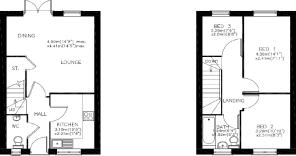
The property comprises of a living/dining room, cloakroom and fitted kitchen which includes a built in oven, hob and extractor hood. The living/dining room has French doors which lead to the rear garden.
Accommodation
Entrance hall
Front door opens in to entrance hall leading to cloakroom, kitchen, living/dining room and staircase to the first floor landing.
WC
Ground floor toilet and wash hand basin.
Living/Dining room 14'9" x 14'5" (4.5m x 4.4m)
Living/dining room with French doors to the rear garden.
Kitchen 10'5" x 7'4" (3.1m x 2.25m)
Kitchen with built in oven, hob and extractor hood
Bedroom one 14'1" x 7'11" (4.3m x 2.4m)
Double bedroom with double glazed window to the rear of the property.
Bedroom two 10'10" x 8'3" (3.3m x 2.5m)
Double bedroom with double glazed window to the front of the property
Bedroom three 7'6" x 6'8" (2.3m x 2.0m)
Single bedroom with double glazed window to the rear of the property
Bathroom
Comprises of a modern white three piece suite with shower over the bath, pedestal wash hand basin and toilet.
Dimensions indicated are for guidance only and are not intended to be used for sizing, ordering appliances, furniture, carpets or curtains.
Price Information
Three-bedroom townhouse £200,000
Minimum Share (50%) £100,000
50% share price is £100,000 rent each month is £TBC
75% share price is £150,000 rent each month is £TBC
Other Monthly Fees Payable
Management Fee £5.65
Service Charge £4.69
Buildings Insurance £9.80
- COUNCIL TAXA payment made to your local authority in order to pay for local services like schools, libraries, and refuse collection. The amount you pay depends on the value of the property.Read more about council Tax in our glossary page.
- Ask agent
- PARKINGDetails of how and where vehicles can be parked, and any associated costs.Read more about parking in our glossary page.
- Allocated
- GARDENA property has access to an outdoor space, which could be private or shared.
- Rear garden
- ACCESSIBILITYHow a property has been adapted to meet the needs of vulnerable or disabled individuals.Read more about accessibility in our glossary page.
- Ask agent
St. James Road, WF4
Add an important place to see how long it'd take to get there from our property listings.
__mins driving to your place
Get an instant, personalised result:
- Show sellers you’re serious
- Secure viewings faster with agents
- No impact on your credit score
Affordability
Notes
Staying secure when looking for property
Ensure you're up to date with our latest advice on how to avoid fraud or scams when looking for property online.
Visit our security centre to find out moreDisclaimer - Property reference 23STJARD. The information displayed about this property comprises a property advertisement. Rightmove.co.uk makes no warranty as to the accuracy or completeness of the advertisement or any linked or associated information, and Rightmove has no control over the content. This property advertisement does not constitute property particulars. The information is provided and maintained by Vico Homes, Re sales. Please contact the selling agent or developer directly to obtain any information which may be available under the terms of The Energy Performance of Buildings (Certificates and Inspections) (England and Wales) Regulations 2007 or the Home Report if in relation to a residential property in Scotland.
*This is the average speed from the provider with the fastest broadband package available at this postcode. The average speed displayed is based on the download speeds of at least 50% of customers at peak time (8pm to 10pm). Fibre/cable services at the postcode are subject to availability and may differ between properties within a postcode. Speeds can be affected by a range of technical and environmental factors. The speed at the property may be lower than that listed above. You can check the estimated speed and confirm availability to a property prior to purchasing on the broadband provider's website. Providers may increase charges. The information is provided and maintained by Decision Technologies Limited. **This is indicative only and based on a 2-person household with multiple devices and simultaneous usage. Broadband performance is affected by multiple factors including number of occupants and devices, simultaneous usage, router range etc. For more information speak to your broadband provider.
Map data ©OpenStreetMap contributors.




