
High Street, CAMBERLEY

- PROPERTY TYPE
Character Property
- BEDROOMS
3
- BATHROOMS
2
- SIZE
Ask agent
- TENUREDescribes how you own a property. There are different types of tenure - freehold, leasehold, and commonhold.Read more about tenure in our glossary page.
Freehold
Key features
- AUCTION SALE
- 19 May 2026
- EPC Rating - n/a
- To view: 5/5, 7/5, 12/5, 14/5, 18/5 at 1:10pm
Description
SUMMARY
AUCTION SALE 19 May 2026 - Freehold three floor mid terrace building arranged as ground floor restaurant/take away together with two self-contained flats above,
Rear parking area for 6 cars,
Investment
DESCRIPTION
Freehold three floor mid terrace building arranged as ground floor restaurant/take away together with two self-contained flats above.
Rear parking area for 6 cars
Investment
3D Tour: Click Here
Location:
The property sits in the heart of Camberley’s High Street, between its junctions with Princess Way and Pembroke Broadway. Nearby multiple retailers to McDonald’s, Subway, Wetherspoons, Betfred and Ladbrooks book makers, Santander and Barclays banks and The Entertainer Toy Shop amongst many others. Public transport links include Camberley mainline rail station which provides some direct services to London Waterloo, together with a network of local bus services serving the surrounding vicinity. Road links include the A30 and M3. Recreational pursuits can be enjoyed locally at the open spaces of Watchetts Recreation Ground and London Road Recreation Ground.
Description:
Freehold three floor mid terrace building arranged as ground floor restaurant/take away together with two self-contained flats above.
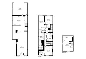
Accommodation:
Unit: BBQ Pit
Floor: Ground
Accommodation: Front restaurant area, two kitchen areas, office, WC, store cupboard, rear covered area with two commercial freezers
Tenancy/Rent: Let on a lease for a term beginning on and including 4th March 2016 ending on and including 3rd March 2036 at a rent of £23,000 plus VAT per annum
EPC Rating: B
Council Tax Band: N/A
Gross Internal Area (Source EPC): Approx 106 sq m (1,140 sq ft)
Unit: Flat 1
Floor: First and Second
Accommodation: Second floor: One room
First floor: One bedroom with en-suite, shower room/WC, kitchen, hallway
Tenancy/Rent: The property is let on an AST (holding over) at a rent of £890 per calendar month.
EPC Rating: C
Council Tax Band: B
Gross Internal Area (Source EPC): Approx 69 sq m (742 sq ft)
Unit: Flat 2
Floor: First
Accommodation: One bedroom, reception room, kitchen bathroom/WC
Tenancy/Rent: The property is let on an AST for a term of 12 months from 23rd September 2025 at a rent of £920 per calendar month.
EPC Rating: D
Council Tax Band: B
Gross Internal Area (Source EPC): Approx 54 sq m (581 sq ft)
Outside: Rear parking area for 6 cars
Rent reserved:
£44,720 per annum
Note:
VAT is applicable to the sale
Potential:
The building may be suitable for a rear extension to provide additional accommodation subject to planning permission and consents.
To view:
Tuesday 5th May at 1:10pm
Thursday 7th May at 1:10pm
Tuesday 12th May at 1:10pm
Thursday 14th May at 1:10pm
Monday 18th May at 1:10pm
Please arrive at the time stated
Important Notice:
For each Lot, a contract documentation fee of £1,800 (inclusive of VAT) is payable to Barnard Marcus Auctions by the buyer. The seller may charge additional fees payable upon completion. If applicable, such fees are detailed within the Special Conditions of Sale. Buyers are deemed to bid in full knowledge of this.
The Guide Price quoted must not be relied upon by prospective purchasers as a valuation or assessment of value of the property. It is intended to provide purchasers with an indication of the region at which the reserve may be set at the time of going to press. The guide price may be subject to variation and interested parties are advised to make regular checks for variations and should be aware that the reserve price may be either below or above the quoted guide price.
Prospective purchasers should also be aware that the eventual sale price may be above or below the guide level dependent upon competition, and should therefore not presume the guide to be indicative of the final expected sale price or the price the property is available at.
When setting the guide price, the auctioneers have given consideration to the seller’s instructions in respect of their indicated reserve price at the time of instruction. The reserve price, (the level below which the property will not be sold), remains confidential between the seller and the auctioneer. The guide price therefore, is intended to indicate the region at which the reserve price is intended to be set. The seller will confirm their final reserve price close to the auction date and if appropriate the auctioneers may adjust the guide price to reflect this.
Whilst Barnard Marcus make every effort to ensure the safety and security of viewers at properties, we have not carried out a detailed Health & Safety inspection of properties in our auctions and cannot therefore guarantee the safety and security of viewers.
Prospective purchasers and bidders attend properties entirely at their own risk. Particular care should be taken when accessing cellars, attics, exterior areas and outbuildings and boundaries. All non-conducted inspections of vacant sites should be made in daylight hours only and entry into such sites is entirely at the viewers risk.
1. MONEY LAUNDERING REGULATIONS: Intending purchasers will be asked to produce identification documentation at a later stage and we would ask for your co-operation in order that there will be no delay in agreeing the sale.
2. General: While we endeavour to make our sales particulars fair, accurate and reliable, they are only a general guide to the property and, accordingly, if there is any point which is of particular importance to you, please contact the office and we will be pleased to check the position for you, especially if you are contemplating travelling some distance to view the property.
3. Photographs and Measurements: Some images may have been taken by a wide angled lens camera. These approximate room sizes are only intended as general guidance. You must verify the dimensions carefully before ordering carpets or any built-in furniture.
4. Services: Please note we have not tested the services or any of the equipment or appliances in this property, accordingly we strongly advise prospective buyers to commission their own survey or service reports before finalising their offer to purchase.
5. THESE PARTICULARS ARE ISSUED IN GOOD FAITH BUT DO NOT CONSTITUTE REPRESENTATIONS OF FACT OR FORM PART OF ANY OFFER OR CONTRACT. THE MATTERS REFERRED TO IN THESE PARTICULARS SHOULD BE INDEPENDENTLY VERIFIED BY PROSPECTIVE BUYERS OR TENANTS. NEITHER SEQUENCE (UK) LIMITED NOR ANY OF ITS EMPLOYEES OR AGENTS HAS ANY AUTHORITY TO MAKE OR GIVE ANY REPRESENTATION OR WARRANTY WHATEVER IN RELATION TO THIS PROPERTY.
1. MONEY LAUNDERING REGULATIONS: Intending purchasers will be asked to produce identification documentation at a later stage and we would ask for your co-operation in order that there will be no delay in agreeing the sale.
2. General: While we endeavour to make our sales particulars fair, accurate and reliable, they are only a general guide to the property and, accordingly, if there is any point which is of particular importance to you, please contact the office and we will be pleased to check the position for you, especially if you are contemplating travelling some distance to view the property.
3. Photographs and Measurements: Some images may have been taken by a wide angled lens camera. These approximate room sizes are only intended as general guidance. You must verify the dimensions carefully before ordering carpets or any built-in furniture.
4. Services: Please note we have not tested the services or any of the equipment or appliances in this property, accordingly we strongly advise prospective buyers to commission their own survey or service reports before finalising their offer to purchase.
5. THESE PARTICULARS ARE ISSUED IN GOOD FAITH BUT DO NOT CONSTITUTE REPRESENTATIONS OF FACT OR FORM PART OF ANY OFFER OR CONTRACT. THE MATTERS REFERRED TO IN THESE PARTICULARS SHOULD BE INDEPENDENTLY VERIFIED BY PROSPECTIVE BUYERS OR TENANTS. NEITHER SEQUENCE (UK) LIMITED NOR ANY OF ITS EMPLOYEES OR AGENTS HAS ANY AUTHORITY TO MAKE OR GIVE ANY REPRESENTATION OR WARRANTY WHATEVER IN RELATION TO THIS PROPERTY.
Brochures
PDF Property ParticularsFull Details- COUNCIL TAXA payment made to your local authority in order to pay for local services like schools, libraries, and refuse collection. The amount you pay depends on the value of the property.Read more about council Tax in our glossary page.
- Band: C
- PARKINGDetails of how and where vehicles can be parked, and any associated costs.Read more about parking in our glossary page.
- Yes
- GARDENA property has access to an outdoor space, which could be private or shared.
- Ask agent
- ACCESSIBILITYHow a property has been adapted to meet the needs of vulnerable or disabled individuals.Read more about accessibility in our glossary page.
- Ask agent
Energy performance certificate - ask agent
High Street, CAMBERLEY
Add an important place to see how long it'd take to get there from our property listings.
__mins driving to your place
Affordability
About Barnard Marcus, Hammersmith Auctions
Sovereign House, 361 King Street Hammersmith London W6 9NA



Get an instant, personalised result:
- Show sellers you’re serious
- Secure viewings faster with agents
- No impact on your credit score
Notes
Staying secure when looking for property
Ensure you're up to date with our latest advice on how to avoid fraud or scams when looking for property online.
Visit our security centre to find out moreDisclaimer - Property reference AUC0050732. The information displayed about this property comprises a property advertisement. Rightmove.co.uk makes no warranty as to the accuracy or completeness of the advertisement or any linked or associated information, and Rightmove has no control over the content. This property advertisement does not constitute property particulars. The information is provided and maintained by Barnard Marcus, Hammersmith Auctions. Please contact the selling agent or developer directly to obtain any information which may be available under the terms of The Energy Performance of Buildings (Certificates and Inspections) (England and Wales) Regulations 2007 or the Home Report if in relation to a residential property in Scotland.
Auction Fees: The purchase of this property may include associated fees not listed here, as it is to be sold via auction. To find out more about the fees associated with this property please call Barnard Marcus, Hammersmith Auctions on 020 3866 9305.
*Guide Price: An indication of a seller's minimum expectation at auction and given as a Guide Price or a range of Guide Prices. This is not necessarily the figure a property will sell for and is subject to change prior to the auction.
Reserve Price: Each auction property will be subject to a Reserve Price below which the property cannot be sold at auction. Normally the Reserve Price will be set within the range of Guide Prices or no more than 10% above a single Guide Price.
*This is the average speed from the provider with the fastest broadband package available at this postcode. The average speed displayed is based on the download speeds of at least 50% of customers at peak time (8pm to 10pm). Fibre/cable services at the postcode are subject to availability and may differ between properties within a postcode. Speeds can be affected by a range of technical and environmental factors. The speed at the property may be lower than that listed above. You can check the estimated speed and confirm availability to a property prior to purchasing on the broadband provider's website. Providers may increase charges. The information is provided and maintained by Decision Technologies Limited. **This is indicative only and based on a 2-person household with multiple devices and simultaneous usage. Broadband performance is affected by multiple factors including number of occupants and devices, simultaneous usage, router range etc. For more information speak to your broadband provider.
Map data ©OpenStreetMap contributors.





