Moor Lane, Gotham, NG11
- PROPERTY TYPE
Land
- BEDROOMS
4
- BATHROOMS
4
- SIZE
206,150 sq ft
19,152 sq m
Key features
- FULL Planning permission 24/01400/FUL
- Open plan kitchen and dining area
- Garden Room
- All Bedrooms Ensuite
- Newly constructed Parking Barn
- Approximately 3500 square feet
- Excellent Communication Links
- Spacious plot measuring 0.44Acres
- Delightful rural Setting
- Grand design opportunity
Description
The Orchard Red Roofs, Moor Lane
Exceptional Self-Build Opportunity with Full Planning Permission in an Idyllic Village Setting
Property Overview
The Orchard adjacent to Red Roofs, Moor Lane, presents an outstanding and rare opportunity to acquire a substantial building plot with full planning permission for a stylish, individually designed dwelling. Occupying approximately 0.44 acres, this site offers the discerning buyer the chance to create a bespoke home of around 3,500 square feet in a sought-after rural location on the edge of the village.
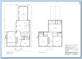
The proposed dwelling is an impressive four-bedroom, three-bathroom detached residence designed to offer spacious and versatile living across a generous plot. The heart of the home is a stunning open-plan kitchen and dining area, complete with an integrated kitchen island that is perfect for hosting family meals or entertaining guests. With three well-proportioned reception rooms, this property provides ample space for both relaxation and more formal gatherings. The layout incorporates multiple en-suite bathrooms, ensuring privacy and convenience for residents and guests alike. A dedicated study room provides an ideal environment for home working or creative pursuits, catering to modern lifestyles.
Plot Details
The plot is generously proportioned at 0.44 acres, providing ample space for a substantial family residence whilst maintaining privacy and a sense of openness. Full planning consent has been granted for a dramatic, architect-designed dwelling that seamlessly blends traditional and contemporary styles. The proposed property will be thoughtfully positioned within the plot to maximise both natural light and the far-reaching views across open fields, ensuring a tranquil and picturesque living environment.
Location and Connectivity
Set on the periphery of the village, The plot enjoys an enviable setting with uninterrupted views over adjacent open countryside. The location offers excellent communication links, being within easy reach of Nottingham and the major road networks of the M1 and M42. For those requiring frequent travel, East Midlands and Birmingham airports are accessible, while the nearby Parkway railway station offers a direct service to London is just 10 minutes away, making this an ideal base for commuters and international travellers alike.
Existing Structures
A significant feature of this site is the existing newly constructed oak garage barn, built at an approximate cost of £100,000. This quality structure provides semi covered garaging for two vehicles and includes practical ground floor rooms, lending versatility for storage, workshop use, or potential office. The barn adds immediate utility and value to the plot while complementing the proposed new dwelling.
Self-Build Opportunity
Opportunities of this calibre are seldom available. The current owner is willing to oversee the construction process, supporting purchasers through the self-build journey to ensure quality and continuity. This level of assistance, coupled with the rarity of a plot with such comprehensive permission and readiness, enhances the appeal for those seeking to realise their dream home with professional guidance.
Neighbourhood and Surroundings
The Orchard ,Red Roofs is situated on the edge of the village, enjoying a peaceful setting bordered by open fields and neighbouring single-storey dwellings. The locality is characterised by a harmonious blend of traditional homes and striking contemporary properties. The plot’s proposed design ensures wonderful vistas and an abundance of natural light.
Design and Planning
Current planning consent allows for a home that harmoniously marries traditional elements with contemporary design flair. The plans allow the use of high-quality materials throughout, promising a visually dramatic and enduring property in a truly enviable location. The balance of classic and modern aesthetics will create a distinctive home tailored to 21st-century living. Planning permission 24/01400/FUL
Rushcliffe Borough Council
Conclusion
The Orchard Red Roofs, Moor Lane, represents a truly unique and exciting self-build opportunity in a prestigious village setting. With full planning permission, existing quality structures, and the option of owner support throughout the build, this is a chance to create a bespoke home of distinction. Early viewing is strongly recommended to appreciate the full potential of this exceptional plot.
Parking - Garage
Parking - Driveway
Moor Lane, Gotham, NG11
NEAREST STATIONS
Distances are straight line measurements from the centre of the postcode- NET Tram Park and Ride Tram Stop2.3 miles
- Clifton South Tram Stop2.3 miles
- Clifton South Tram Park And Ride Tram Stop2.3 miles
Notes
Disclaimer - Property reference 2c48a3a3-6f2e-4179-ac66-8b31694ebd5c. The information displayed about this property comprises a property advertisement. Rightmove.co.uk makes no warranty as to the accuracy or completeness of the advertisement or any linked or associated information, and Rightmove has no control over the content. This property advertisement does not constitute property particulars. The information is provided and maintained by Newton Fallowell, Loughborough. Please contact the selling agent or developer directly to obtain any information which may be available under the terms of The Energy Performance of Buildings (Certificates and Inspections) (England and Wales) Regulations 2007 or the Home Report if in relation to a residential property in Scotland.
Map data ©OpenStreetMap contributors.








