
Sparkford Close, Winchester

- PROPERTY TYPE
Terraced
- BEDROOMS
6
- BATHROOMS
2
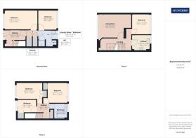
- SIZE
1,330 sq ft
124 sq m
- TENUREDescribes how you own a property. There are different types of tenure - freehold, leasehold, and commonhold.Read more about tenure in our glossary page.
Freehold
Key features
- Six bed student house
- Seperate shower room & bathroom
- Off road parking
- Spacious lounge & separate kitchen
- Gas central heating & double glazing
- 0.2 mile walk to University of Winchester
- Bills package available as optional extra, paid separately to the rent
- EPC: C (74)
- Council tax: Exempt for full time students
Description
We are pleased to present this six bedroom student house in Winchester. The property comprises entrance hall, kitchen, living room, bathroom, shower room plus a additional toilet, five double bedrooms, single bedroom and utility area. There is double glazing, gas central heating and an HMO License for six people.
Externally, the property includes a rear garden and off road parking for four cars.
A large Sainsburys supermarket is located in Badger Farm, as well as local shops in Stanmore just a short walk away, providing a most pleasant setting for tenants to live during their education.
The property is currently let until 06/08/2026 at a rent of £3,300.00 pcm with renewal agreed until 06/08/2027 at £3,465.00
Additional Information/ Notes:
Photos: Require updating as now tenanted.
Tenure: Freehold
We are pleased to present a six bedroom student house in Winchester. The property comprises entrance hall, kitchen, living room, bathroom, shower room, five double bedrooms, single bedroom and utility area.
Material Information - Southampton - Tenure Type; Freehold
Council Tax Banding; D
Aml - Agents are required by law to conduct anti-money laundering checks on all those buying a property.
We outsource the initial checks to partner suppliers Coadjute who will contact you once you have had an offer accepted on a property you wish to buy.
The cost of these checks is £54inc vat per person. This is a non-refundable fee.
These charges cover the cost of obtaining relevant data, any manual checks and monitoring which might be required.
This fee will need to be paid and the checks completed in advance of the office issuing a memorandum of sale on the property you would like to buy.
Brochures
Sparkford Close, Winchester- COUNCIL TAXA payment made to your local authority in order to pay for local services like schools, libraries, and refuse collection. The amount you pay depends on the value of the property.Read more about council Tax in our glossary page.
- Band: D
- PARKINGDetails of how and where vehicles can be parked, and any associated costs.Read more about parking in our glossary page.
- Off street
- GARDENA property has access to an outdoor space, which could be private or shared.
- Yes
- ACCESSIBILITYHow a property has been adapted to meet the needs of vulnerable or disabled individuals.Read more about accessibility in our glossary page.
- Ask agent
Sparkford Close, Winchester
Add an important place to see how long it'd take to get there from our property listings.
__mins driving to your place
Get an instant, personalised result:
- Show sellers you’re serious
- Secure viewings faster with agents
- No impact on your credit score
Affordability
Notes
Staying secure when looking for property
Ensure you're up to date with our latest advice on how to avoid fraud or scams when looking for property online.
Visit our security centre to find out moreDisclaimer - Property reference 34611339. The information displayed about this property comprises a property advertisement. Rightmove.co.uk makes no warranty as to the accuracy or completeness of the advertisement or any linked or associated information, and Rightmove has no control over the content. This property advertisement does not constitute property particulars. The information is provided and maintained by Hunters, Southampton. Please contact the selling agent or developer directly to obtain any information which may be available under the terms of The Energy Performance of Buildings (Certificates and Inspections) (England and Wales) Regulations 2007 or the Home Report if in relation to a residential property in Scotland.
*This is the average speed from the provider with the fastest broadband package available at this postcode. The average speed displayed is based on the download speeds of at least 50% of customers at peak time (8pm to 10pm). Fibre/cable services at the postcode are subject to availability and may differ between properties within a postcode. Speeds can be affected by a range of technical and environmental factors. The speed at the property may be lower than that listed above. You can check the estimated speed and confirm availability to a property prior to purchasing on the broadband provider's website. Providers may increase charges. The information is provided and maintained by Decision Technologies Limited. **This is indicative only and based on a 2-person household with multiple devices and simultaneous usage. Broadband performance is affected by multiple factors including number of occupants and devices, simultaneous usage, router range etc. For more information speak to your broadband provider.
Map data ©OpenStreetMap contributors.





