
Eaglesham Road, East Kilbride, South Lanarkshire, G75 8WS

- PROPERTY TYPE
Detached
- BEDROOMS
4
- SIZE
Ask developer
- TENUREDescribes how you own a property. There are different types of tenure - freehold, leasehold, and commonhold.Read more about tenure in our glossary page.
Ask developer
Key features
- Part Exchange Xtra
- Detached family home
- Single detached garage
- Open-plan kitchen/dining/family area
- Great for entertaining
- Utility room
- Spacious lounge
- 4 double bedrooms with main bedroom en suite
- Modern family bathroom
- Good storage space
Description
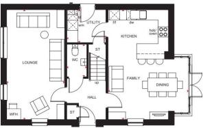
The Ralston is a stylish family home with no shortage of space and light. The bright, modern kitchen includes a dining area, adjoining utility space and glazed bay with French doors leading to the garden. There is also a bright, elegant lounge and downstairs WC. Upstairs are 4 spacious double bedrooms, the main bedroom en suite and family bathroom.
Room Dimensions
- Bathroom - 2116mm x 1900mm (6'11" x 6'2")
- Bedroom 1 - 5302mm x 3562mm (17'4" x 11'8")
- Bedroom 2 - 3719mm x 3123mm (12'2" x 10'2")
- Bedroom 3 - 3753mm x 2629mm (12'3" x 8'7")
- Bedroom 4 - 3194mm x 2560mm (10'5" x 8'4")
- Ensuite 1 - 2024mm x 1642mm (6'7" x 5'4")
- Kitchen / Family / Dining - 6448mm x 4716mm (21'1" x 15'5")
- Lounge - 6448mm x 3395mm (21'1" x 11'1")
- Utility - 2290mm x 1933mm (7'6" x 6'4")
- WC - 1902mm x 1167mm (6'2" x 3'9")
- COUNCIL TAXA payment made to your local authority in order to pay for local services like schools, libraries, and refuse collection. The amount you pay depends on the value of the property.Read more about council Tax in our glossary page.
- Ask developer
- PARKINGDetails of how and where vehicles can be parked, and any associated costs.Read more about parking in our glossary page.
- Yes
- GARDENA property has access to an outdoor space, which could be private or shared.
- Yes
- ACCESSIBILITYHow a property has been adapted to meet the needs of vulnerable or disabled individuals.Read more about accessibility in our glossary page.
- Ask developer
Energy performance certificate - ask developer
- Brand-new luxury development
- Upgraded specification as standard
- East Kilbride town centre just 3.7 miles away
- An array of local shops, restaurants and pubs nearby
Eaglesham Road, East Kilbride, South Lanarkshire, G75 8WS
Add an important place to see how long it'd take to get there from our property listings.
__mins driving to your place
Get an instant, personalised result:
- Show sellers you’re serious
- Secure viewings faster with agents
- No impact on your credit score
About David Wilson Homes
DWH @ Eaglesham View is a blossoming community of desirable, high specification homes. Families will appreciate the ease of access to East Kilbride's town centre and close proximity to a range of parks, play areas and sports facilities. You'll also be surrounded by stunning green open spaces, offering the ideal routes for leisurely walks.
Affordability
Notes
Staying secure when looking for property
Ensure you're up to date with our latest advice on how to avoid fraud or scams when looking for property online.
Visit our security centre to find out moreDisclaimer - Property reference 4_H882191. The information displayed about this property comprises a property advertisement. Rightmove.co.uk makes no warranty as to the accuracy or completeness of the advertisement or any linked or associated information, and Rightmove has no control over the content. This property advertisement does not constitute property particulars. The information is provided and maintained by David Wilson Homes. Please contact the selling agent or developer directly to obtain any information which may be available under the terms of The Energy Performance of Buildings (Certificates and Inspections) (England and Wales) Regulations 2007 or the Home Report if in relation to a residential property in Scotland.
*This is the average speed from the provider with the fastest broadband package available at this postcode. The average speed displayed is based on the download speeds of at least 50% of customers at peak time (8pm to 10pm). Fibre/cable services at the postcode are subject to availability and may differ between properties within a postcode. Speeds can be affected by a range of technical and environmental factors. The speed at the property may be lower than that listed above. You can check the estimated speed and confirm availability to a property prior to purchasing on the broadband provider's website. Providers may increase charges. The information is provided and maintained by Decision Technologies Limited. **This is indicative only and based on a 2-person household with multiple devices and simultaneous usage. Broadband performance is affected by multiple factors including number of occupants and devices, simultaneous usage, router range etc. For more information speak to your broadband provider.
Map data ©OpenStreetMap contributors.






