Alsancak, Girne, north of Cyprus
- PROPERTY TYPE
Villa
- BEDROOMS
4
- BATHROOMS
4
- SIZE
3,014 sq ft
280 sq m
Key features
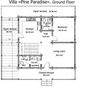
- Total area: 280 m² Plot size: 1,400+ m²
- 4+1 wooden villa-Larch wooden gazebo
- Storage room and mezzanine
- Approved project for a private swimming pool
- Fully furnished, including white goods and air conditioning
- Large private garden Olive grove with 7 olive trees
Description
(Licensed agency with 11 years of experience)
This exclusive property located in Alsancak, one of Kyrenia's most prestigious villa areas, is situated in a distinguished neighborhood filled with large, luxurious villas and virtually no vacant plots. The location offers high privacy, prestige, and long-term investment value.
Location Advantages
Easy access to all parts of Kyrenia
Supermarkets, shops, pharmacies, restaurants, and banks within walking distance
Sandy beaches just 1.2 km away (15-20 minutes on foot)
Merit 5-star hotel chain 1.2 km away
Quiet and elite villa district
Property Details
4+1 wooden villa
4 bathrooms (one with a 2-meter bathtub)
Total area: 280 m²
Plot size: 1,400+ m²
Fully furnished, including white goods and air conditioning
Construction & Features
Laminated wood structure (Siberian pine and black pine)
Unique and exclusive project in Cyprus
Spacious and bright rooms
Underfloor heating in bedrooms, bathrooms, and kitchen
Storage room and mezzanine
Multiple verandas and balconies
Sea and mountain views
Outdoor Area
Large private garden
Olive grove with 7 olive trees
Passion fruit garden
High-quality Siberian pine perimeter fence
Larch wooden gazebo
Separate storage/utility building
Approved project for a private swimming pool
Why Choose Cyprus Riviera Properties & Investment?
Cyprus Riviera Properties & Investment is a licensed property firm registered under License No: 17098, with over 11 years of experience in Bellapais, Kyrenia, Northern Cyprus real estate market.
We provide full transparency in all title deed transactions, legal processes, and additional costs, guiding our clients to the most suitable properties according to their needs and budget. Our professional team supports the buying process from start to finish and continues to offer after-sales service.
For our foreign clients, we offer a 3-day free tour + accommodation with one of our Cyprus Riviera experts to view the regions and properties. Travel packages are charged only if the purchase is made through Cyprus Riviera Properties & Investment.
0% commission from the buyer
For more information, please contact us at .
Contact us today to schedule an appointment!
Nina Ratib:
Alsancak, Girne, north of Cyprus
NEAREST AIRPORTS
Distances are straight line measurements- Ercan(Local)20.5 miles
Notes
This is a property advertisement provided and maintained by Cyprus Riviera Properties & Investment, Kyrenia (reference 525079) and does not constitute property particulars. Whilst we require advertisers to act with best practice and provide accurate information, we can only publish advertisements in good faith and have not verified any claims or statements or inspected any of the properties, locations or opportunities promoted. Rightmove does not own or control and is not responsible for the properties, opportunities, website content, products or services provided or promoted by third parties and makes no warranties or representations as to the accuracy, completeness, legality, performance or suitability of any of the foregoing. We therefore accept no liability arising from any reliance made by any reader or person to whom this information is made available to. You must perform your own research and seek independent professional advice before making any decision to purchase or invest in overseas property.






