
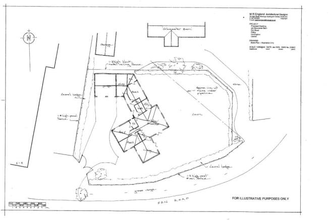
Land Adjacent to Gloucester Barn, Fen Road, Pidley, Huntingdon, Cambridgeshire, PE28 3DD
- PROPERTY TYPE
Plot
- SIZE
Ask agent
Key features
- PRE-PLANNING PERMISSION WITHOUT OBJECTION
- PROPOSED 3 BED DETACHED BUNGALOW
- PRESTIGIOUS VILLAGE LOCATION
- DOUBLE GARAGE
- CLOSE PROXIMITY TO THE GOLF CLUB COMPLEX
- PLANNING REF 25/00259/OUT
- EN-SUITE FACILITIES TO BEDS 1 AND 2
- STUDY
- KITCHEN BREAKFAST / DINING ROOM
Description
Land Adjacent to Gloucester Barn, Fen Road, Pidley, Huntingdon, Cambridgeshire, PE28 3DD
NEAREST STATIONS
Distances are straight line measurements from the centre of the postcode- Huntingdon Station7.4 miles
Notes
Disclaimer - Property reference GGG_GGG_LFSYCL_563_742502009. The information displayed about this property comprises a property advertisement. Rightmove.co.uk makes no warranty as to the accuracy or completeness of the advertisement or any linked or associated information, and Rightmove has no control over the content. This property advertisement does not constitute property particulars. The information is provided and maintained by Giggs & McGrath, St Ives. Please contact the selling agent or developer directly to obtain any information which may be available under the terms of The Energy Performance of Buildings (Certificates and Inspections) (England and Wales) Regulations 2007 or the Home Report if in relation to a residential property in Scotland.
Map data ©OpenStreetMap contributors.





